查看完整案例


收藏

下载
© Tony Phillips
托尼·菲利普斯
架构师提供的文本描述。普罗维登斯邻里中心于2016年4月竣工,位于里普利山谷的中心,四周环绕着公园,可以俯瞰远处的山脉。普罗维登斯中心将作为城镇社区中心运作-包括慷慨的公共和私人社区客房、画廊空间、媒体室以及40家西咖啡厅。
Text description provided by the architects. Completed in April 2016, the Providence Neighbourhood Centre is situated in the heart of the Ripley Valley, surrounded by parklands with views to mountain ranges beyond. The Providence Centre will function as the towns Community Centre – and includes generous public and private Community Rooms, Gallery Spaces, Media Room as well as Forty West café.
© Scott Burrows
C.斯科特·布伦斯
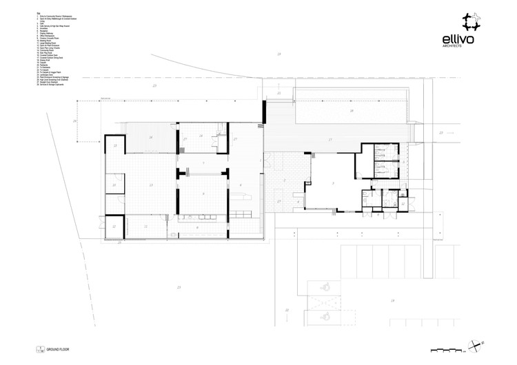
Floor Plan
© Scott Burrows
C.斯科特·布伦斯
该建筑物的开放式设计允许公共空间或私人空间,并考虑了折叠门和墙壁的选择和放置,这些折叠门和墙可以打开或关闭,以创造各种房间大小。慷慨的遮荫木甲板悬臂向飞溅的‘n’发挥公园。
The building’s open plan design allows spaces to be either public or private, with considered selection and placement of folding doors and walls which can be opened or closed to create a variety of room sizes. Generous shaded timber decks cantilever toward the Splash ‘n’ Play parklands.
© Tony Phillips
托尼·菲利普斯
建筑设计从现有的背景中汲取灵感,并以自然与工业材料调色板为特色。原始结构和现代结构的平衡,如砖、木材和暴露的金属结构,使建筑具有相对的个性。慷慨的屋顶悬臂为咖啡厅和娱乐甲板提供遮阳,而高层屋顶和天窗允许自然照明流经大楼。通过建筑物的开放式平面设计,可以看到Ripley山谷和周围的景观,在可能的情况下,整个建筑都有全高度的窗户。未来使用的设计是设计的核心,考虑了结构元素和材料的放置和选择。
The building design draws inspiration from the existing context and features a natural vs. industrial material palette. A balance of raw and modern textures such as brick, timber and exposed metal structure give the building a relatable personality. Generous roof cantilevers provide shading to the café and entertainment deck, while high level roofing and skylights allows natural lighting to flow through the building. Views toward the Ripley Valley and surrounds are maximised through the building’s open plan design with full height windows where possible throughout. Design for future-use was core to the design with considered placement and selection of structural elements and materials.
© Scott Burrows
C.斯科特·布伦斯
Architects Ellivo Architects
Location Providence Parade, South Ripley QLD 4306, Australia
Category Community Center
Area 600.0 m2
Project Year 2016
Photographs Scott Burrows, Tony Phillips
Manufacturers Loading...
客服
消息
收藏
下载
最近


















