查看完整案例


收藏

下载
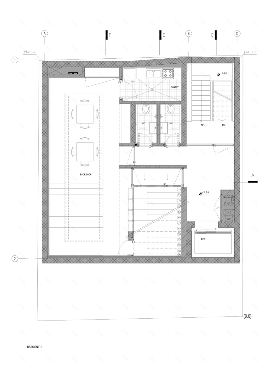
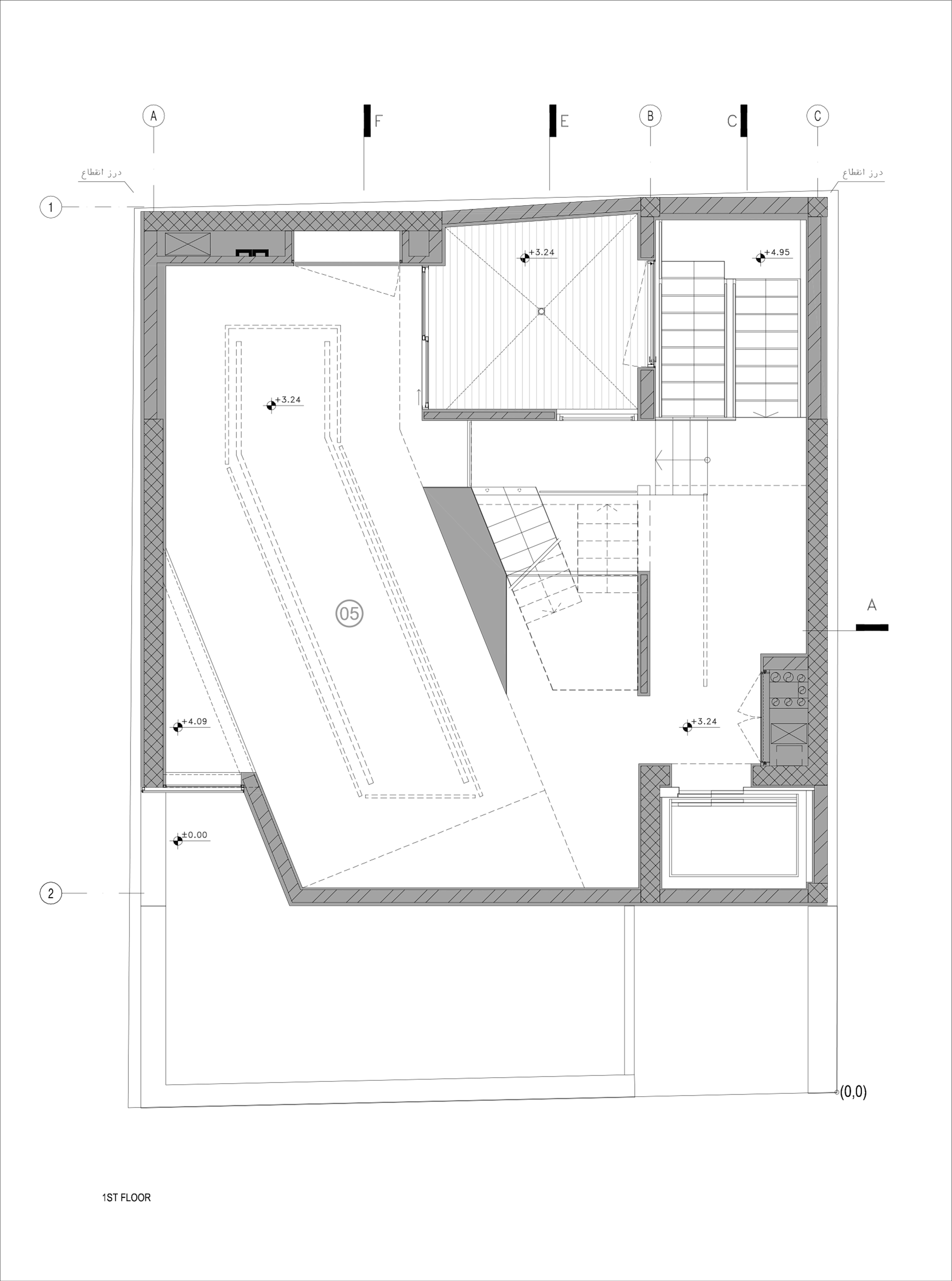
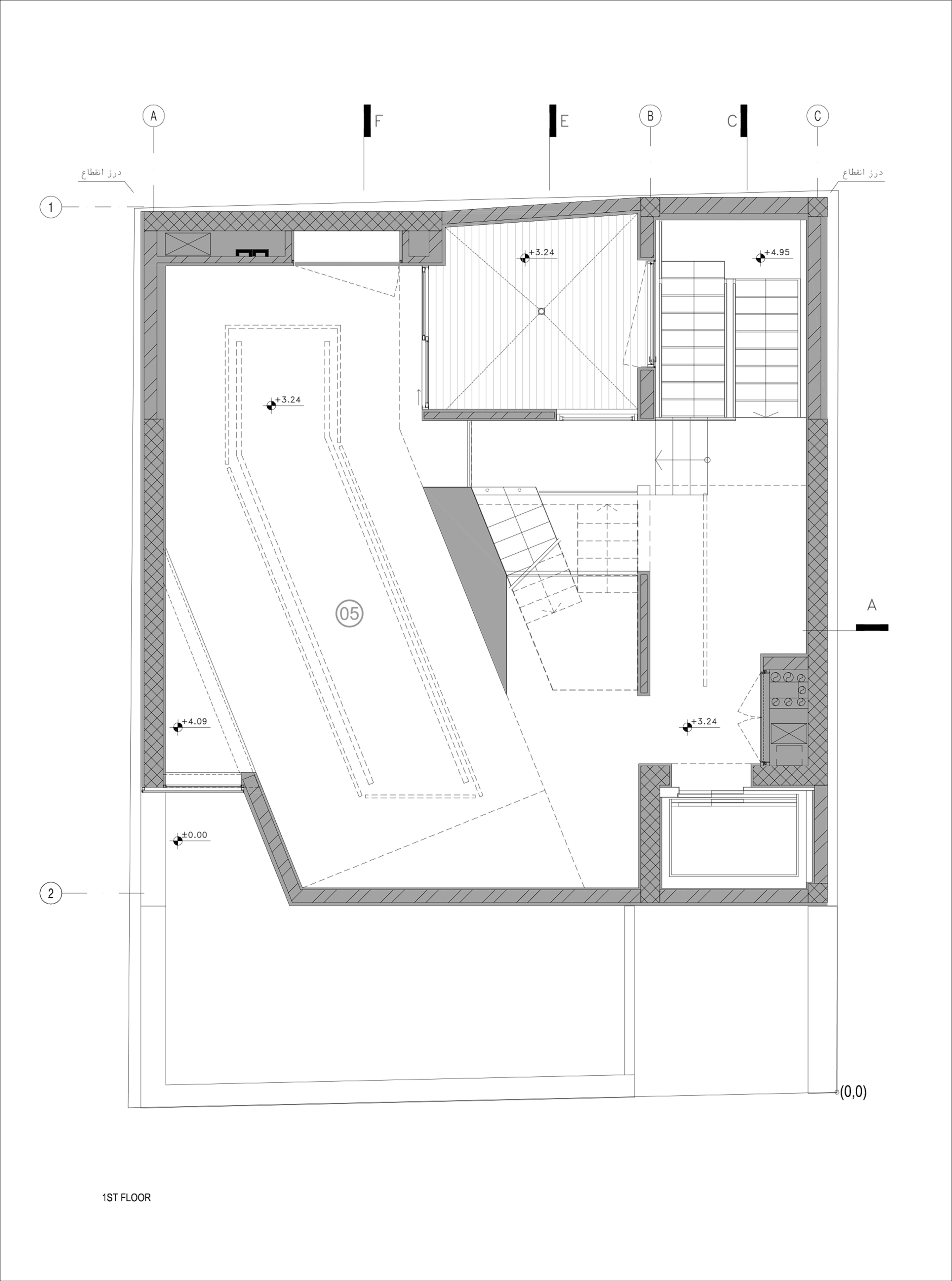
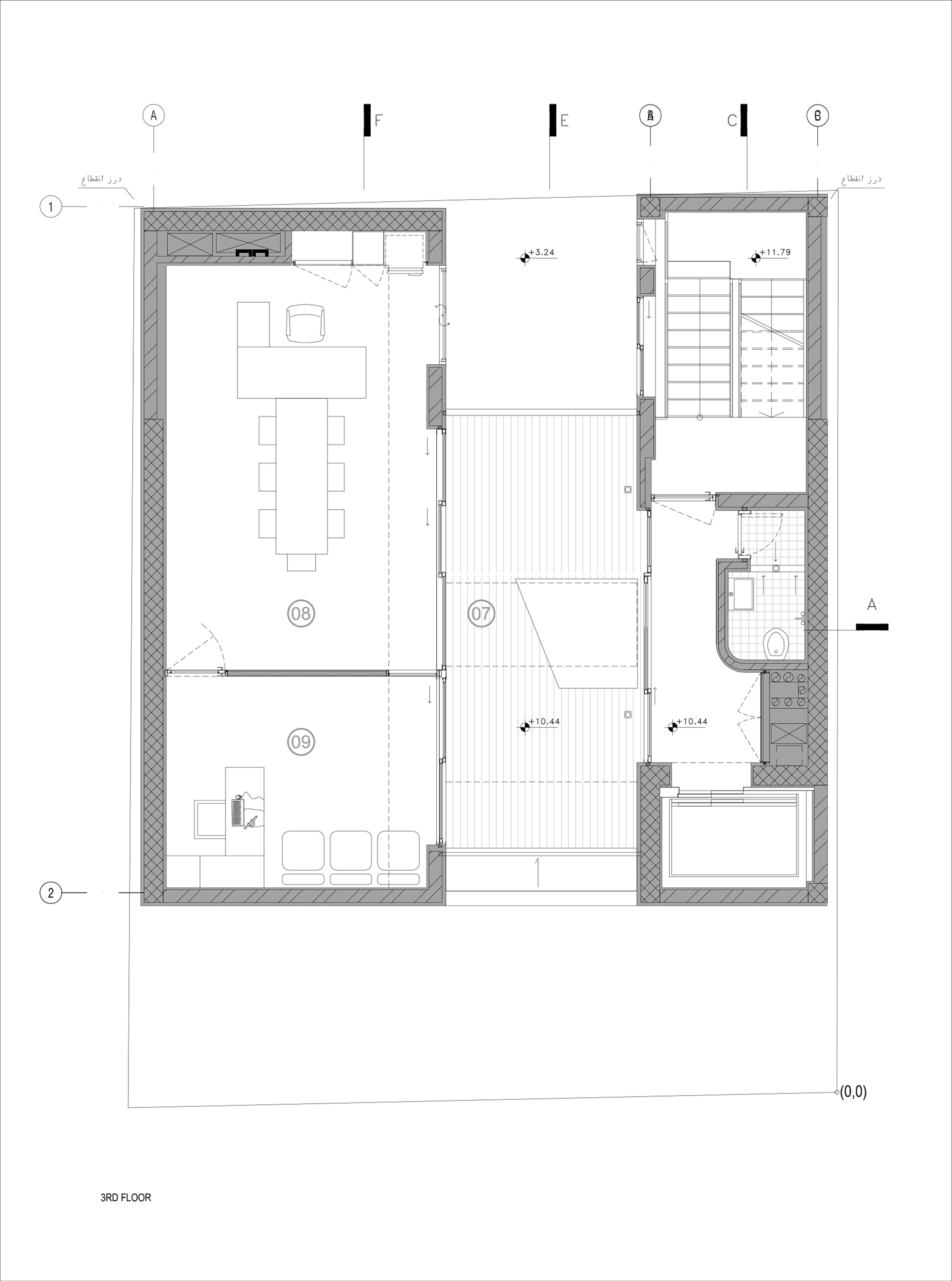
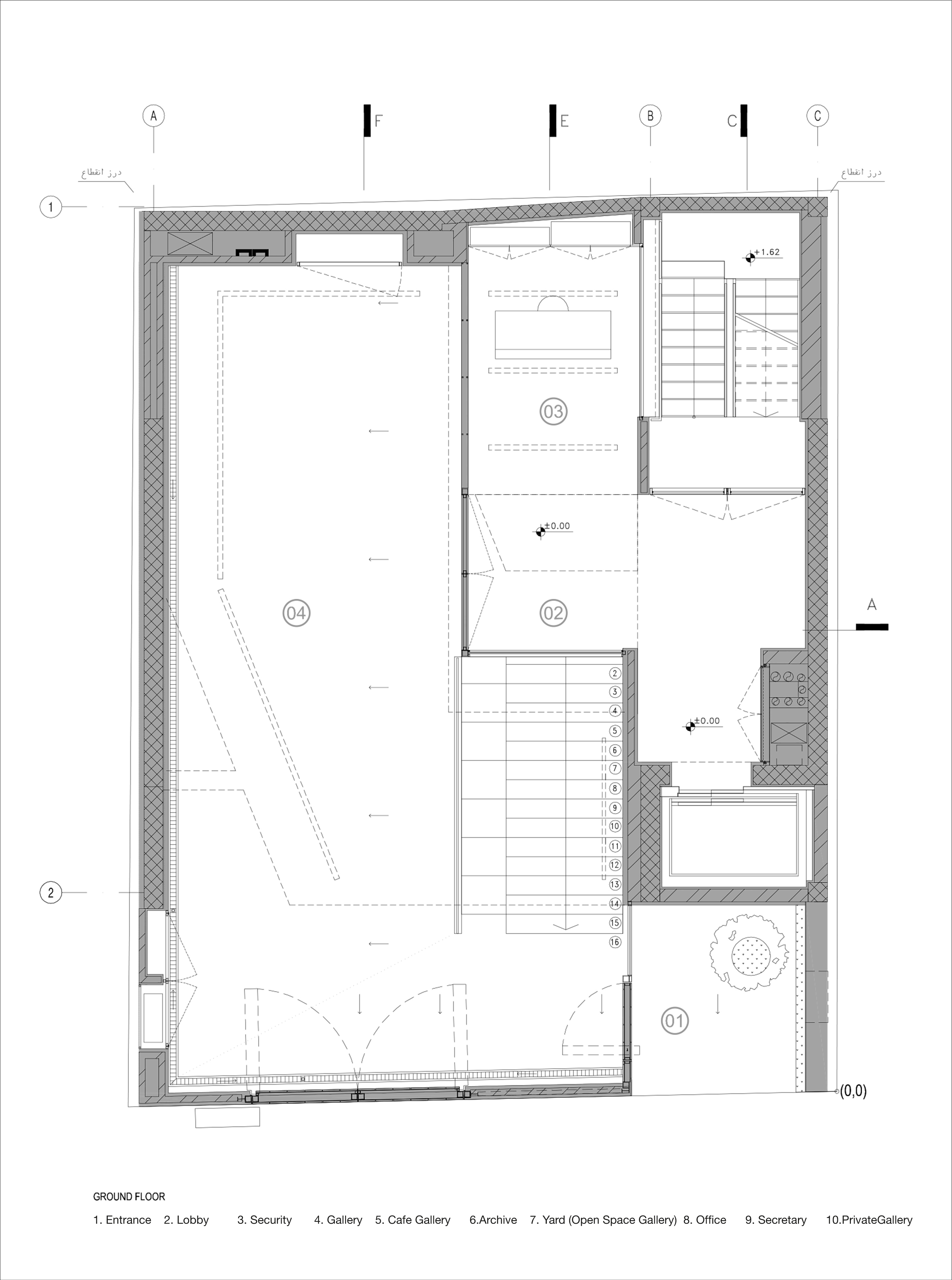
白图库是一种建筑练习,在为艺术作品展创造一个形成空间时,重新调整“补填”类型学的潜力和局限性。
项目内部和外部在外形和配置上的明显和故意的差异,突出了类型学和程序二重奏并置所面临的挑战。
该项目同时具有外向性和内向性:
从内部,空间是围绕着最大限度的截面连续性的核心理念组织的。连续体向外延伸,同时保持在内部。空间截面孔隙度允许分层的透视视图,它提供了观众。
从外部和乍一看,该项目被认为是一个自主和坚实的对象和抽象欧几里得形式的组成,具有最大程度的不透明度。这与周围居住环境的密集形态是一致的。
就像博物馆和画廊的历史前身“橱柜”一样,白色画廊似乎是一个令人费解的代表性空间,除非你进入它的表象空间…,否则不会被解码。
گالری سفید، تمرینی در باز خوانی پتانسیل ها و تحدیدهای تایپولوژی "میان-بافتی" برای عملکرد یک گالری هنری است.
تمایزعامدانه در ماهیت سازماندهی فضایی و تبیین فرمال درون و برون پروژه ، تاکید بر پیچیدگی های نهادینه همخوان سازی دوگانه تایپولوژی و عملکرد دارد.
پروژه در آن واحد درون گرا و برون گرا است:
در داخل ، سازماندهی فضا حول ایده اصلی امتداد حداکثری در مقطع شکل گرفته است. این نظام ممتد فضایی بواسطه تجوف لحاظ شده در مقطع پروژه به سمت بیرون تسری می یابد. فضای مقطع-محور و سیال شرایط بروز و ظهور دید های پرسپکتیوی متنوعی از فضا های داخلی را فراهم می کند.
از بیرون و در نگاه اول ، ساختار فرمال پروژه ساختاری صلب و منتزع از احجام مجرد اقلیدوسی و همخوان با بافت متراکم مسکونی پیرامون خود است.
همچون "کابینت های نگهداری اشیائ غریب،" که می توان آن ها را پیشکسوتان موزه ها و گالری های هنری دانست، گالری سفید به عنوان فضایی برای بازنمودن، سرشار از ابهاماتی است که معمای آن بدون ورود به درون آن به عنوان فضایی باز نموده شده، میسر نخواهد بود...
客户:Farid Akhavi
项目经理:Nazanin Javaheri
物理模型助理:Shervin Daneshi,Momen Faghihi
施工:[班次]工艺实践
建筑助理:Homayoun Homavandi
钢铁厂工程:Hesamodin Raoufpanah
结构顾问:Pedram Mosahebi Mohammadi(Sarvin结构顾问)
机械顾问:Pedram Mosahebi Mohammadi(Sarvin结构顾问)
电气顾问:Vahid Ghasemi,Reza Nazari
BMS顾问:Hooshmand Ava公司。
摄影师:阿里·达格
Firm [SHIFT] Process Practice
Type Cultural › Gallery
STATUS Built
YEAR 2016
SIZE 5000 sqft - 10,000 sqft
keywordsarchitecture, architecture news, interiors, interior design, portfolio, spec, brands, marketplace, products White Gallery
关键词建筑,建筑新闻,室内设计,组合,规格,品牌,市场,产品白色画廊
客服
消息
收藏
下载
最近
























































