查看完整案例


收藏

下载
架构师提供的文本描述。越南南部中部沿海地区长期以来一直由一层楼高的房屋构成,这些房屋简约而迷人。我们也不例外。
Text description provided by the architects. The Vietnam South Central Coastal area has long been shaped by one-storey houses, which are simple but glamorous. We are not an exception.
© Quang Tran
3.广川
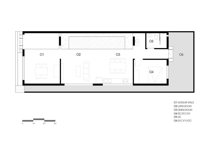
从20世纪60年代开始,修复一座祖传房屋的协议对设计团队来说是一个巨大的挑战。在业主的信任下,我们提出了一个大胆的构想,既要保留传统特色,又要把传统特色与现代特色和谐地结合起来。为了实现这一目标,我们重组了内部空间,并简化了房子的功能。一般来说,房子是按照三分之一(1:3)的规则划分的,隔离了传统和现代。
The agreement to renovate an ancestral house from the 1960s was a huge challenge for the design team. Trusted by the homeowner, we have come up with a bold idea, which is not only to preserve the traditional speciality, but also to harmoniously combine it with the modern features into the construction. In order to pursue that target, we have reorganized the inner spaces, as well as simplified the house function. Generally, the house is divided following the rule of thirds (1:3), segregating tradition and modernity.
在崇拜空间里,房主想要利用旧的室内。
In the worship space, the homeowner wants to make use of the old interior.
© Quang Tran
3.广川
利用家具将居住空间与室内花园和大天窗相结合,增强了自然光的提供,在营造舒适的居住空间中发挥了巨大的作用。
The living space is separated by using the furniture, combining with an inner garden and a big skylight, which enhances the provision of natural light and plays a big role in creating of a comfortable living space.
First Floor Plan
一层平面图
我们还考虑过尝试正面解决方案,这可能带来一些新的东西,但不太不同周围的邻居。
We have also considered experimenting the facade solution, which may bring something new but not too different from the surrounding neighborhood.
© Quang Tran
3.广川
TP楼代表了传统建筑和地方建筑与现代建筑的完美结合,既熟悉又不受欢迎。
TP House represents a perfect combination of the traditional and local architecture with the modern one, familiar but not so popular.
© Quang Tran
3.广川
产品描述:对于纺丝窗系统、主门等门面装饰细节,我们考虑使用当地的品卡多木作为最有可能的材料。这种木材可以很容易地在任何当地木匠的商店,并一直被用于房屋建设。此外,平卡多木具有柔韧性和防水性,多年来已证明其耐用性,并成为当地房屋的特长。
Product Description. For the spinning windows system, main door and some other decorative details on the facade, we have considered using the local Pyinkado wood as the most possible material. This type of wood can be easily found at any local carpenter’s shops and has long been applied in house construction. Moreover, with flexibility and water-proofing, Pyinkado wood has proved its durability through years and become a speciality of local houses.
Architects Sawadeesign Studio
Location Tuy Phong District, Vietnam
Category Houses
Architects in Charge Đoàn Sĩ Nguyên, Huỳnh Huy Tiến, Lê Đình Mạnh, Nguyễn Ngọc Minh Quang
Area 96.0 m2
Project Year 2017
Photographs Quang Tran
Manufacturers Loading...
客服
消息
收藏
下载
最近
























