查看完整案例


收藏

下载
项目经理Icon项目管理承包商Lipman Pty Ltd结构工程师泰勒汤姆森照明施坦森机械施泰文森维斯坦森电子施泰文森液压机械工程师阿尔普几何专家AR-MA拥有GPT集团制造商装货.=多规格少规格
Project Manager Icon Project Management Contractor Lipman Pty Ltd Structural Engineers Taylor Thomson Whitting Lighting Steensen Varming Mechanical Steensen Varming Electrical Steensen Varming Hydraulics Arup Geometry Specialists AR-MA Owner The GPT Group Manufacturers Loading... More Specs Less Specs
© Brett Boardman
布雷特·博德曼
架构师提供的文本描述。在对行人和通勤者来说都是最繁忙的十字路口之一,我们试图将悉尼典型的街道遮阳篷重新解读为一个充满活力和顺应城市环境的十字路口。该设计吸引了想象力,反映了一个前瞻性客户的身份;同时结合现代设计和完成,以补充商业塔的装饰艺术风格。
Text description provided by the architects. In one of the busiest intersections for both foot-traffic and commuters, we have sought to reinterpret the typical Sydney street awning to one that is dynamic and responsive to its urban context. The design captures the imagination and reflects the identity of a forward thinking client; while incorporating contemporary design and finishes that complement the art deco style of the commercial tower.
© Brett Boardman
布雷特·博德曼
通过这个项目,我们寻求创造一个变革性的空间,一个城市、街道和室内工作场所之间的过渡空间,通过形式、光和材料可以提升和激励。
With this project we have sought to create a transformative space; a space of transition between the city street and interior workplace that through form light and material can uplift and inspire.
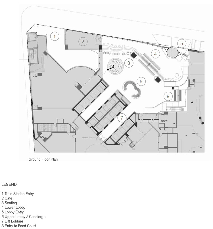
Ground Floor Plan
它是一种有机建筑,由一系列折叠铝钻石组成,将现有建筑和街道包裹成一个新的联锁空间。雕塑艺术作品与柱廊、遮阳和立面的建筑元素之间的区别是模糊的,以创造一个新的动态身份。
It is an organic architecture assembled from a series of folded aluminium diamonds that wrap the existing building and the street into a new interlocking space. The distinctions between sculptural artwork and architectural elements of colonnade, awning and facade are blurred to create a new dynamic identity.
© Brett Boardman
布雷特·博德曼
街道和大厅之间的区别也是通过折叠钻石表面模糊和连接起来的。这些轻轻弯曲的平面反映了自然日光和温暖的综合照明与每一颗钻石刷铝是独特的轮廓和尺寸,创造了一个不断变化的基调,内部的大厅和外部公共领域。
The distinction between the street and lobby are also blurred and connected through the folding diamond surfaces. These gently curving planes reflect both natural daylight and warm integrated lighting with each diamond of brushed aluminium is unique in its profile and dimensions, creating an ever-changing tone to the interior of the lobby and exterior public domain.
为了实现设计远景,复杂的面板表面需要一个基于规则的,系统的方法,通过设计和建设,因为每个钻石形状的面板是独特的形式。遮阳篷被悬挂在现有的建筑物上,这样它就显得失重了。
To achieve the design vision, the complex panelised surface required a rule-based, systematic approach through design and construction, as each diamond-shaped panel is unique in its form. The awning is suspended from the existing building so that it appears weightless.
© Brett Boardman
布雷特·博德曼
产品描述:我们选择了ALUCOBOND+刷过铝,这是一种硬质的、但又灵活的菱形面板的正面材料,每个面板都有其独特的形状,因为它的反射特性符合现场条件,并补充了阴影和光的设计概念。
Product Description. We selected ALUCOBOND® PLUS brushed aluminium, a rigid, yet flexible facade material for the diamond shaped panels, each unique in their form, for it’s reflective characteristics which respond to site conditions and complements the design concept of shadow and light.
© Brett Boardman
布雷特·博德曼
Architects fjmt
Location HSBC Centre, Sydney NSW 2000, Australia
Category Renovation
Area 3800.0 m2
Project Year 2016
Photographs Brett Boardman
Manufacturers Loading...
客服
消息
收藏
下载
最近




















