查看完整案例


收藏

下载
架构师提供的文本描述。在房子花园的尽头,在一个现有的游泳池旁边,一座独立而开放的建筑被下令建造。该地区提供了出色的地理支持,其中包含并构成了独特的绿色环境,这是圣地亚哥以东山脉前地区的典型特征。
Text description provided by the architects. An isolated and open construction, next to an existing swimming pool, was ordered at the end of the house garden. The place is presented with an outstanding geographical support, which contains and frames a privileged green environment, typical of the pre-mountain range area east of Santiago.
© Diego Elgueta
C.Diego Elgueta
项目战略将Pergola作为建筑参考;这种轻盈和自主的框架是对自然和多种活动的整体支持。
The project strategy refers to the pergola as an architectural reference; That light and autonomous frame as an integral support of nature and multiple activities.
© Diego Elgueta
C.Diego Elgueta
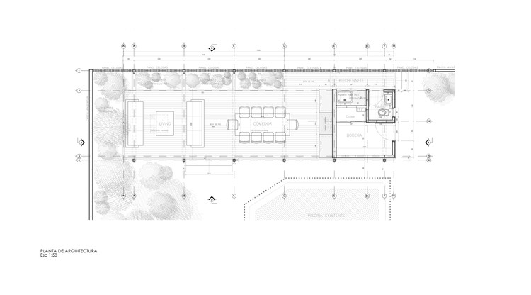
考虑到这些前提,该项目提出了一个由6个混合结构桁架组成的由100×100x3白漆钢柱和2x8“俄勒冈松梁组成的混合结构桁架组成的5个模块的总称,这些构件位于一块石基上,使项目在自然地形水平上有了新的层。
Taking into account these premises, the project proposes as a general party a sequence of 5 modules configured through 6 mixed structural trusses composed of a system of 100x100x3 white painted steel pillars and composed beams of 2x8" Oregon Pine worked in commercial formats, which stand on a stone base that gives the project a new layer over the natural terrain level.
该项目设想了两个方案领域,分别由中央混凝土墙横向连接到包含格栅设备的体积。
The project contemplates two programmatic areas, which are divided and articulated by a central concrete wall transversal to the volume that contains the grill`s equipment.
© Diego Elgueta
C.Diego Elgueta
娱乐活动的一个透光和半透明的区域,包括关闭一个1“x4”的俄勒冈州松树百叶窗和一个密封的服务模块,该模块不耦合,并与既定的调制分离,后者是小厨房、浴室和酒窖。
A permeable and translucent area of recreation contained by the closure of a 1 "x 4" Oregon Pine louver that accompanies the volume throughout its length, and a sealed service module uncoupled and detached from the established modulation, which houses the kitchenette, Bathroom and wine cellar.
© Diego Elgueta
C.Diego Elgueta
同时,作为这一做法的条件,在今后的展馆组成中确立了一定的灵活性,通过结构框架的重复,可以构成游戏室或水疗中心的一个新的方案单元,而不破坏框架的组成单位。
At the same time, as a conditioning of the approach, a certain flexibility is established in the future composition of the pavilion, which by the repetition of the structural framework, can constitute a new programmatic unit of a playroom or spa, without breaking the composition Unit of the skeleton.
© Diego Elgueta
C.Diego Elgueta
对于锚定结构件,细节的相遇是通过一个金属细木工装配的联合作为特征和形象的一部分的项目。
For the anchoring of the structural pieces the detail of the encounter is worked through a metallic joinery that assembles the Union as part of the character and image of the project.
© Diego Elgueta
C.Diego Elgueta
作为东方方向的补充,透明设备与天窗和百叶窗一起工作,以寻找不同的光线和自然通风区域,并通过切割甲板和地板平台来寻找某些开口,从而形成内部播种机。
Complementing the East orientation established, the transparencies are worked integrally with skylights and louvers in search of different areas of light and natural ventilation, and certain openings by cutting of the deck and the floor platform that give rise to an interior planter.
© Diego Elgueta
C.Diego Elgueta
相对于物质而言,是受青睐的高贵材料,易于维护和持久。结构和托盘是俄勒冈州松木,干燥和穿衣在室内和处理过的额外无色防水清漆。在铺装方面,选用了洛伦齐尼的WPC灰灰色桥面.作为天花板包覆,1“x4”木板松材,用白色清漆处理的Arauco湿地,钉在萝卜,锚定在主钢梁形成一个刚性隔膜与OSB木板的屋顶。
In relation to the materialities are favored noble materials, easy to maintain and long lasting. The structure and pallets are Oregon Pine lumber dried and dressed in chambers and treated with Wetproff extra colorless waterproofing varnish. In the case of pavement, WPC gray-gray deck of Lorenzini was chosen. As ceiling cladding, 1"x 4” wood board pine is used, of Arauco treated with white varnish Wetproff, nailed on rafters which are anchored to the main steel beams forming a rigid diaphragm with the OSB wood board of the roof.
© Diego Elgueta
C.Diego Elgueta
客服
消息
收藏
下载
最近






















