查看完整案例


收藏

下载
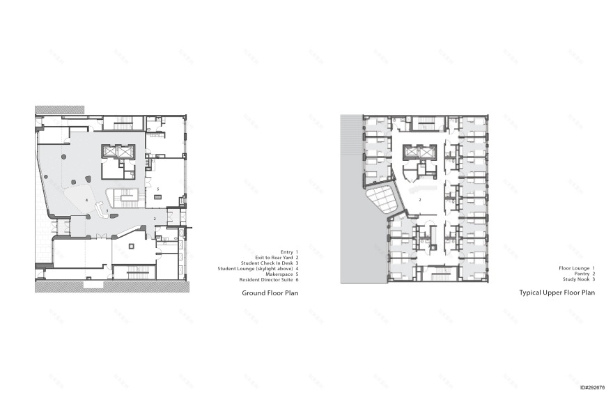
这个新的住宅大厅的设计是为了在即将到来的第一年培养一种探索和发明的文化,它有目的地将共享的和公共的生活、学习和创造空间融为一体。规范住宅类型的破坏表现在垂直庭院或“空塔”周围。这种独特的外部表现方式集中在每一层的学生社区活动中。空塔既是建筑物的一个组织概念,也是一种独特的形式,它被配置在立面上,将开口的尺寸扩展到建筑物上层的休息室,并在一层休息室中心的天窗周围压缩。
这座建筑位于离校园大门大约一个街区的地方,位于克林顿山社区内。主楼层从街道向后倾斜,入口通过一个一层楼的讲台。在这个讲台上,学生可以使用中心活动空间进行社交或学习活动,也可以利用邻近的工作室空间,包括工作室资源。塔的上层由14间房间组成,每个房间可容纳两名学生。共用的、分隔的浴室分布在整个地板上。每一层的中央休息室都有一个办公柜台和供社区使用的家具。塔外主要由砖和弯曲的不锈钢面板组成。这些材料的目的是积极参与历史性的砖块校园和社区,同时将庭院和休息室的独特形式。
该项目是作为两家建筑公司和该研究所之间的创新合作而设计的,为学生的社会和智力发展提供了重要机会,并促进了一种对普拉特的学术和社会使命至关重要的发明与合作文化。
Firm Hanrahan Meyers Architects LLP
Type Educational › Other University
STATUS Under Construction
SIZE 25,000 sqft - 100,000 sqft
BUDGET $10M - 50M
keywords:architecture, architecture news, interiors, interior design, portfolio, spec, brands, marketplace, products Pratt Student Residence : Void Tower
关键词:建筑、建筑、新闻、室内、室内设计、组合、规格、品牌、市场、产品普拉特学生住宅:虚空塔
客服
消息
收藏
下载
最近




















