查看完整案例


收藏

下载
© Workshop Architecten
(三)建筑工作坊
架构师提供的文本描述。位于阿姆斯特丹南部Zuider Amstelkanaal河岸上的一座平房,最初是用封闭的正面对着滨水建造的。
Text description provided by the architects. A bungalow, located on the banks of the Zuider Amstelkanaal in the south of Amsterdam, was originally built with a closed facade facing the waterfront.
自从装修之后,它对运河有着慷慨的看法。前车库被改造成2间卧室和一个浴室,并以这样一种方式连接到平房,让人能看到整个建筑。这个观光线从南西立面延伸到一个新的海湾窗户,在那里曾经是一个车库门。
Since the renovation it has generous views over the canal. The former garage is transformed into 2 bedrooms and a bathroom, and is connected to the bungalow in such a way that one can see through the whole building. This sightline extends from the south west facade to a new bay window, that is situated where there used to be a garage door.
© Workshop Architecten
(三)建筑工作坊
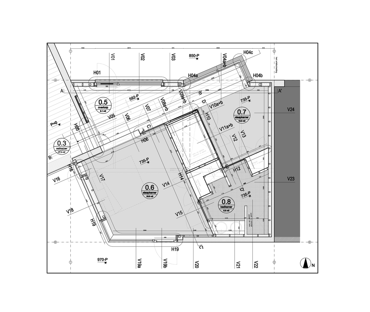
First Floor Plan
一层平面图
© Workshop Architecten
(三)建筑工作坊
经过一系列精确的干预,1955年起的一座杂乱无章的平房被改造成了一个独特的阿姆斯特丹家庭住宅。一座被剥落到其本质的房子:砖瓦已经被简化为3堵墙,用来支撑木质屋顶。这些墙矗立在一个新的混凝土基础上,形成了通往入口的坡道和西侧和南侧的梯田。
By a number of precise interventions, an incoherent bungalow from 1955, has been transformed into a unique Amsterdam family home. A house that has been stripped down to its essence: the brickwork has been reduced to 3 walls that carry the wooden roof. The walls stand on a new concrete base that forms a ramp to the entrance and terraces on the west and south side.
© Workshop Architecten
(三)建筑工作坊
Architects Workshop Architecten
Location Amsterdam, The Netherlands
Category Refurbishment
Architect in Charge Workshop Architecten
Area 250.0 m2
Project Year 2016
Manufacturers Loading...
客服
消息
收藏
下载
最近

















