查看完整案例


收藏

下载
© Chad Mellon
(乍得梅隆)
作为一个有胆量的企业家和设计爱好者,我正在寻找一块土地来建造一个全新的现代度假租房,这将完全是我自己的设计。我在盖尔内维尔小镇上发现了一片美丽的阳光明媚的土地,周围是一片古老的红树林,后院还有一片巨大的红树林。
As an entrepreneur and design lover with lots of guts, I was looking for a piece of land to build a new modern vacation rental home that will be totally my own design. I found a beautiful flat sunny lot in the small town of Guerneville, surrounded by old redwoods and with a giant one in my back yard.
© Chad Mellon
(乍得梅隆)
我从一开始就设想了这座房子:它应该是一座木制的房子,但它有着非常现代的吸引力,高高的倾斜的天花板,巨大的窗户,开阔的客厅。
I envisioned the house from the beginning: It should be a wooden house but with a very modern appeal, high and tilted ceiling, huge windows, open space living room.
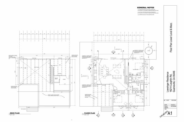
Floor Plans
平面图
Sections - Elevation
剖面-高程
这所房子有一个主要的居住空间/厨房,两边都有巨大的窗户和一个高倾斜的天花板,从前面的13英尺到后面的20英尺,面向大树和大山。主层有三间卧室。现代金属楼梯通向美丽的阁楼,俯瞰主空间和山。这房子有两个大甲板,一个在后面面对着大院子和大树,另一个在前面,坐在棚子里,看着我们为我女儿建的一座小树屋。
The house has a main living space/kitchen with huge windows in both sides and a high tilted ceiling, ranging from 13 feet at the front to 20 feet in the back, facing the huge tree and the mountain. There are three bedrooms on the main level. Modern metal staircase leads to a beautiful mezzanine over looking the main space and the mountain. The house has two large decks, one in the back facing the large yard and the huge tree, and another one in the front, for shed sitting, looking at a small tree house we built for my daughter.
© Chad Mellon
(乍得梅隆)
我的朋友建筑师拉维特·卡普兰(RavitKaplan)为许可证准备了计划。获得许可后,我负责室内设计和材料选择:雪松的护栏、混凝土地板、布隆贝格窗户、SF的利奥·克劳迪奥橱柜的厨房、浴室的设计(其中之一的地板是黑色的)、教承包商如何做闪光灯门(通过从互联网上自己学习),以及一直到景观和园艺。我选择的大多是中性的颜色和直线。
My friend Architect Ravit Kaplan prepared the plans for the permit. After getting the permit, I managed the interior design and materials choices: Cedar for the sidings, concrete floors, Blomberg Windows, Kitchen from Leo Claudio cabinets in SF, designing the bathrooms (one of them with dramatic black penny floor), teaching the contractor how to do flash doors (by learning it myself from the internet), and all the way to the landscape and gardening. I chose mostly neutral colors and straight lines.
© Chad Mellon
(乍得梅隆)
一开始,我想到的是一座黑房子,但当我看到雪松的美丽时,我决定让它变得自然。
In the beginning I was thinking of a black house but after I saw the beauty of the cedar, I decided to leave it natural.
© Chad Mellon
(乍得梅隆)
这是一个伟大的全年,每周几次驾驶从旧金山到盖尔内维尔(在俄罗斯河地区,1.5小时的车程,从SF)来管理这个项目。我和一个当地的承包商和当地的工人一起工作,我计划再和他们一起工作。我等不及下一个项目了!
It was a great full year of driving several times a week from San Francisco to Guerneville (In Russian River area, 1.5 hours drive from SF) to manage the project. I worked with a local contractor and local workers and I’m planning to work with all of them again. I can’t wait for the next project!
© Chad Mellon
(乍得梅隆)
Design Shevi Loewinger, Ravit Kaplan
Location Guerneville, United States
Category Houses
Area 1500.0 ft2
Project Year 2016
Photographs Chad Mellon
Manufacturers Loading...
客服
消息
收藏
下载
最近



















