查看完整案例


收藏

下载
© Tsvetomir Dzhermanov
c.Tsvetomir Dzhermanov
架构师提供的文本描述。重建和扩建现有的1945年以前的时代建筑,目的是为客房提供餐厅和娱乐区,作为该财产的自然环境和未来体育设施的补充。
Text description provided by the architects. The restoration and extension of the existing pre- 1945 era building aims to provide a guest house with restaurant and recreation zone as a supplement of the property’s natural setting and future sport facilities.
© Tsvetomir Dzhermanov
c.Tsvetomir Dzhermanov
该项目的场地位于依斯卡尔河(Iskar River)和维托沙山(Vitosha Hill)之间的11英亩果园上,距索非亚市中心12公里。业主们买下了这块地皮,拥有1945年以前的一座建筑,由于其战略位置,德俄军队将其用作军事基地。该项目的要求是扩大现有的建筑与新的建筑结构,为客房提供空间,厨房与餐厅沙龙,休息室,娱乐区,健身房和小水疗单位。
The site for the project is located on eleven acres of orchard land nestled between the Iskar River and Vitosha Mountain, 12 kilometers from the city center of Sofia. The owners purchased the plot with an existing pre- 1945 era building, which was used as a military quarters by the German and Russian Armies due to its strategic location. The program requirements are to extend the existing building with a new built structure providing space for guest rooms, kitchen with restaurant saloon, lounge, recreation zone, gym and small spa unit.
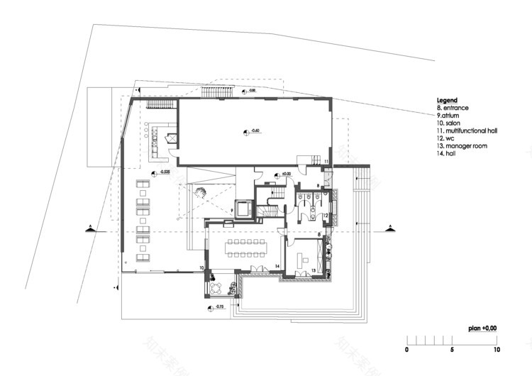
Ground Floor
Floor Plan
Floor Plan
该方案设想了地点的独特性、与自然的关系以及计划中的未来体育设施。这座古老的房子以其简朴的外观和正面、平铺的高山屋顶和深邃的屋檐,表达了人们熟悉的山家形象。这座整体建筑以其强大的外观,周围环绕着古老的树木,需要一种敏感的设计方法。新创建的卷通过现有外观的新开口连接,合并新旧之间的内部空间。一个有玻璃屋顶的两层中庭为底层的中心部分提供了白天的光线,一个全景电梯正在通往顶层露台。新旧建筑的立面具有相同的灰泥结构和白色,所以旧的和新的之间的配置是通过体积组成来表现的。新楼的北面有两层。第二间客房可容纳客房,部分由悬臂延伸至绿色环境。南侧是“沙龙”-一间明亮的大房间,敞开着滑动的门窗,可以俯瞰毗邻的花园。这一多功能区域可用于不同的场景,如餐厅、活动场所、会议室等。在中庭的二楼,有一个小型健身房,有水疗设施,还有一个两层的大型露台。楼顶有一个小的“观景台”露天酒吧和游泳池,可以看到维托沙山,地下室里有酒窖和厨房。这座老建筑的内部依靠史料。
The program envisages the uniqueness of the location, the relation to the nature and the planned future sport facilities. The old house with its simple look and facades, tiled alpine roof and deep eaves expresses the familiar image of a mountain home. The monolithic building with its strong presence in the property, surrounded by age-old trees demands a sensitive design approach. The new created volume is connected through new openings in the existing façade merging the interior spaces between old and new. A two story atrium with glazed roof provides day light to the central part of the ground floor and a panoramic elevator is going to the top terrace. The façades of the old and new buildings have the same plaster structure and white color therefore the disposition between old and new is displayed by the volume composition. On its north side the new building has two levels. The second one accommodates the guest rooms and partly cantilevered it extends towards the green surrounding. On the south side is located the “salon” - a large bright room, wide open with sliding façade glazing which provides views towards the adjacent garden. This multifunctional area is foreseen for different scenarios such as restaurant, event place, conference room etc. On the second floor over the atrium is located a small gym with spa facilities and a large terrace on two levels. On top of the building is located a small “belvedere” open air bar and swimming pool with amazing view to Vitosha mountain. In the basement are situated the wine cellar and the kitchen. The interior of the old building is leaning on historical materials
© Tsvetomir Dzhermanov
c.Tsvetomir Dzhermanov
-木制地板、砖墙、水磨石楼梯和走廊、阁楼翻新,旧屋顶木结构完全修复。在新的扩展中,木材、裸露混凝土和钢等天然材料暗示了连续性,并为不同的场景提供了环境。
– wooden floorings, brick walls, terrazzo stairs and corridors, the attic is refurbished and the old roof’s wooden structure is fully restored. In the new extension natural materials like wood, exposed concrete and steel suggest continuity and provide environment for different scenarios.
© George Palov
乔治·帕罗夫
产品说明:扩建建筑的大量玻璃是用雷纳铝系统CP 155完成的。南面有一个大尺度(300×300厘米的CP155 LS)电梯和滑动单元,允许将内部空间与相邻的花园合并。滑动玻璃门的重量约为400公斤,但门易于操作。根据制造商的说法,这应该是保加利亚安装的最大的电梯和滑梯系统。
Product Description. The generous glazing of the extension building is done with Reynaers Aluminum system CP155. The south façade has a large scale (300x300cm CP155 LS) lift and slide element allowing to merge the inner space with the adjacent garden. The sliding glass door has a weight of around 400 kg nevertheless the door is easy to handle. According the manufacturer this should be the largest lift and slide system mounted in Bulgaria.
© Tsvetomir Dzhermanov
c.Tsvetomir Dzhermanov
Architects Bureau XII
Location Sofia, Bulgaria
Category Houses
Architects in Charge Peter Torniov, Milena Filcheva
Area 1206.0 m2
Project Year 2016
Photographs George Palov, Tsvetomir Dzhermanov
Manufacturers Loading...
客服
消息
收藏
下载
最近


























