查看完整案例


收藏

下载
© Ben Rahn/A-Frame Studio
本·拉恩/A帧演播室
架构师提供的文本描述。作为一家六口之家的周末之家,Compass House的名字来源于客户想要制定一条新的路线,从在英国的长期停留过渡到在加拿大的生活。为了实现这一点,家庭的设计超越了普通的家庭节目,创造了一个精神共鸣的地方,引导和提高了一个人对周围环境的体验。通过它的位置,聚集,构造和物质,它平衡亲密和扩张,光明和黑暗,土地和天空。(鼓掌)
Text description provided by the architects. Designed as a weekend home for a family of six, Compass House takes its name from the clients’ desire to chart a new course as they transition from an extended stay in the United Kingdom to life back in Canada. To achieve this, the design of the home transcends ordinary domestic programming, creating a place of spiritual resonance that orients and heightens one’s experience of the surrounding environment. Through its siting, massing, tectonics and materiality, it balances intimacy and expansiveness, light and dark, land and sky.
© Ben Rahn/A-Frame Studio
本·拉恩/A帧演播室
© Ben Rahn/A-Frame Studio
本·拉恩/A帧演播室
位于尼亚加拉悬崖上,指南针大厦的选址工具确立了方向。这座房子坐落在土地组成特征的交汇处:西边是森林,南边是一座小山,北边和东面有100英亩的田地。从公路上退下来,四周环绕着一丛树木,提供了防风林和一种封闭的感觉。从现有的农场小巷走过来,白色的外观有助于记录季节,在夏季的绿色田野中很明显,并融成一片冬日渐弱的白雪景观。
Located on the Niagara Escarpment, Compass House’s siting instrumentally establishes orientation. The house sits at the nexus of the land’s constituent characteristics: forests to the west, a hill to the south, and 100 acres of fields to the north and east. Set back from the road, it is surrounded by a thicket of trees to provide windbreak and a sense of enclosure. On approach from the existing farm lane, the white exterior helps register the seasons, distinct amidst the green fields of summer, and melding into a winter landscape of waning light and snow.
© Ben Rahn/A-Frame Studio
本·拉恩/A帧演播室
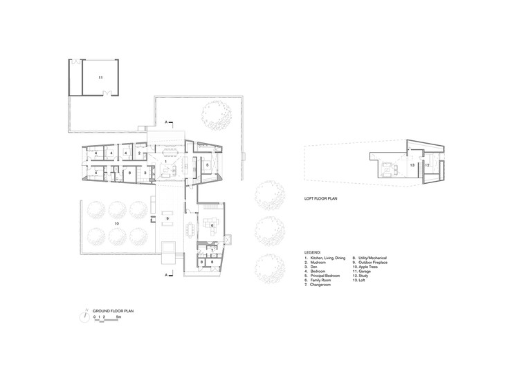
Floor Plan
© Ben Rahn/A-Frame Studio
本·拉恩/A帧演播室
景观操作帮助嵌入和连接房屋与其网站:建造与现场发现的土石,低挡土墙创造了一个基础平台的房子和增强的截面动力。两个垂直的翅膀包围了一个紧密缩放的室外庭院。作为对建筑物低矮水平的回应,室外壁炉的图腾形式增加了一个关键的垂直对位点,就像在高耸的屋顶平面上明智地放置天窗一样,它允许柔和的光洗来照亮室内。眼睛向上拉,与天空、太阳和云的大环境建立了一种强化的精神关系。
Landscape manipulations help embed and connect the house to its site: constructed with fieldstone found on the property, low retaining walls create a foundational plinth for the house and an enhanced sectional dynamic. Two perpendicular wings enclose an intimately scaled outdoor courtyard. In response to the building’s low-lying horizontality, the totemic form of the outdoor fireplace adds a critical vertical counterpoint, as do the judiciously placed skylights in the soaring pitched roof planes of the house, which allow soft washes of light to illuminate the interior. The eye is drawn upward, establishing an intensified and spiritual relationship to a larger environment of sky, sun and clouds.
© Ben Rahn/A-Frame Studio
本·拉恩/A帧演播室
主要住宅的形式创新的历史先例,长屋-一种固有的有效类型,发现在整个欧洲和北美部分地区。随着狭长的脚印,所有的房间和空间享受明显的自然光和通风。这一长度还允许均衡和有效地分配节目,计划的中心是一个规模大但关系密切的家庭空间-包括厨房、餐厅和生活区,而且卧室两边都很舒适。
The form of the main residence innovates on the historical precedent of the longhouse—an inherently efficient typology found throughout Europe and parts of North America. With an elongated narrow footprint, all rooms and spaces enjoy pronounced natural light and ventilation. The length also allows for a balanced and effective distribution of programming, with a generously scaled yet intimate family space—including kitchen, dining and living areas—at the centre of the plan, and bedrooms comfortably separated on either end.
© Ben Rahn/A-Frame Studio
本·拉恩/A帧演播室
内部,地板和墙壁由白色橡木和结白色雪松是质感和温暖。相比之下,主空间上方的天花板是白色的,膨胀的,似乎是无边无际的。物质性的明显差异与外面的陆、空交汇相呼应。在外观上,该公司致力于建造一种持久的建筑,这体现在使用低维护的建筑材料,如水泥板、铝窗和钢屋顶。这座房子建造得很优雅,将世世代代。该项目的第一阶段已经通过了LEED黄金认证,其对可持续性的承诺进入了第二阶段,其设计优先考虑了自然采光、被动通风、高绝缘值和减少建筑废物。地面地热系统的提供推进了已经非常出色的能源性能的目标。
Inside, floors and walls made from white oak and knotty white cedar are textured and warm. In contrast, the ceiling above the main space is white, expansive and seemingly boundless. The distinct difference in materiality echoes the meeting of land and sky outside. On the exterior, the firm’s commitment to an architecture that endures is manifest in the use of low-maintenance construction materials such as cement-board siding, aluminum windows and a steel roof. Built to age gracefully, the house will sustain for generations. Phase One of the project is already LEED Gold-certified, and its commitment to sustainability carries into Phase Two with a design that prioritizes natural daylighting, passive ventilation, high insulation values and construction waste reduction. The provision of an in-ground geothermal system furthers the goal of what is already exceptional energy performance.
© Ben Rahn/A-Frame Studio
本·拉恩/A帧演播室
Architects Superkül
Location Mulmur, Canada
Category Houses
Architects in Charge Meg Graham (Principal), Andre D’Elia (Principal) Anya Moryoussef (Associate), Wendy Wisbrun (Associate)
Area 4300.0 m2
Project Year 2015
Photographs Ben Rahn/A-Frame Studio
Manufacturers Loading...
客服
消息
收藏
下载
最近






















