查看完整案例


收藏

下载
广文Glinow设计办公室赢得纽约平价住房挑战
广文Glinow设计办公室因其纽约可负担住房挑战赛参赛作品获得一等奖。
这个奖项是在2017年在Javits中心举行的纽约建筑博览会上举行的,由生动的蜜蜂饲养者们颁发。
广文Glinow设计办公室
2016年,李奇光和艾莉森·冯·格里诺共同在芝加哥成立了广文Glinow设计办公室。
项目描述
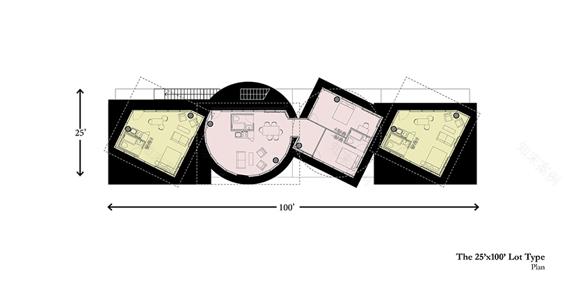
桌面公寓
桌面公寓的出现是由于使用了一些简单的模块元素,这些元素集合在一起,在居民、邻居和公众之间创造了一种新的生活方式。
使用三种不同的桌面形状,它们在堆叠时故意不对齐,在各单元之间的板子上产生孔。由此产生的垂直庭院空间形成了一个空间,作为公共流通的空间,带来光和空气。
Firm Kwong Von Glinow Design Office
Type Residential › Multi Unit Housing
STATUS Concept
keywords:architecture, architecture news, interiors, interior design, portfolio, spec, brands, marketplace, products The Table Top Apartments
关键词:建筑、建筑新闻、室内设计、组合、规格、品牌、市场、产品-桌面公寓
客服
消息
收藏
下载
最近




















