查看完整案例


收藏

下载
Firm WestStandard
Type Residential › Private House
STATUS Built
YEAR 2011
SIZE 3000 sqft - 5000 sqft
BUDGET $500K - 1M
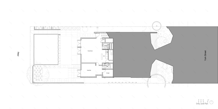
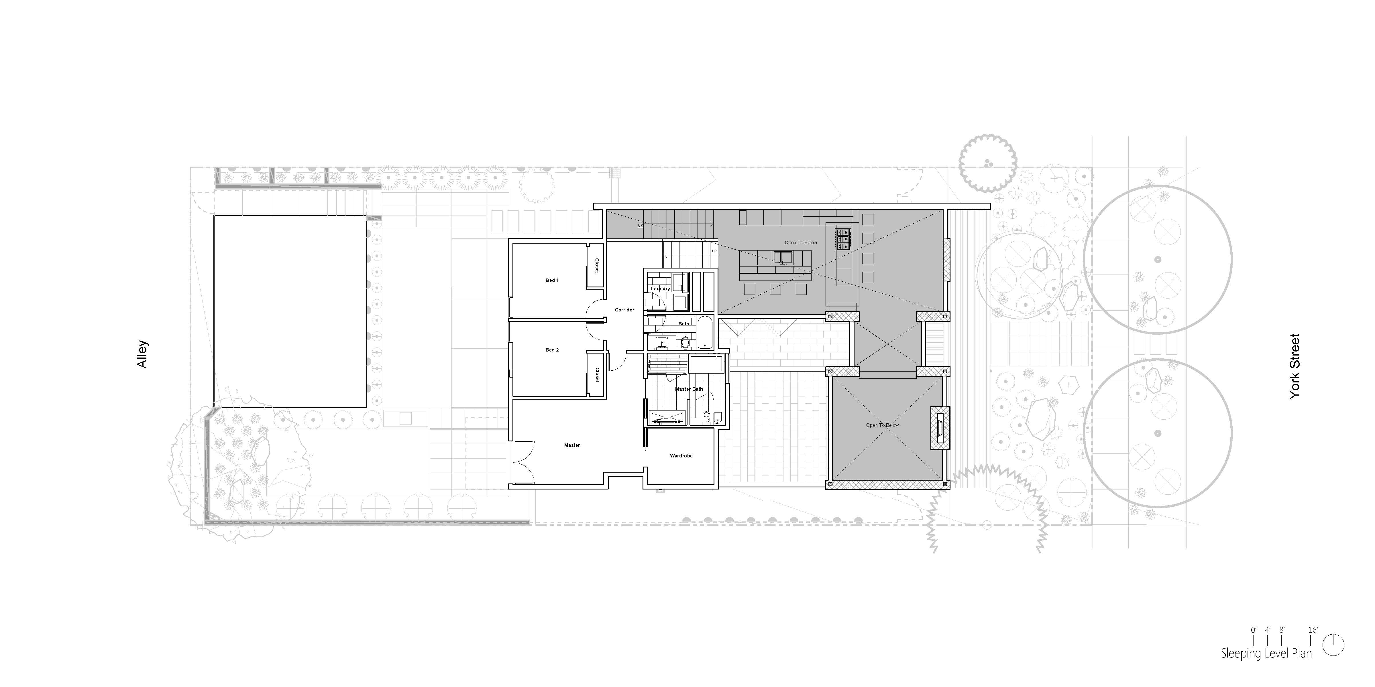
keywords:architecture, architecture news, interiors, interior design, portfolio, spec, brands, marketplace, products 1443 York Street
关键词:建筑,建筑新闻,室内设计,组合,规格,品牌,市场,产品1443约克街
客服
消息
收藏
下载
最近


















