查看完整案例


收藏

下载
© Jill Tate Photography
(三)吉尔·塔特摄影
架构师提供的文本描述。客户们爱上了莫佩斯市郊那处美丽的场地,我们也是如此;陡峭的斜坡和林间的边沿,这是一个美妙而富有挑战性的背景,一个简短的家庭住宅,同时也体现了一处森林之地的隐蔽处的令人兴奋的感觉。
Text description provided by the architects. The clients had fallen in love with the beautiful site on the outskirts of the market town of Morpeth, and so did we; steeply sloping and edged by woodland, it is a wonderful, challenging context with a brief to create a family home sympathetic to the setting whilst embodying the excitement of a woodland hideaway.
© Jill Tate Photography
(三)吉尔·塔特摄影
这座建筑与场地轮廓相适应,与私人南面的厨房露台分开,北面的花园开发场地唯一平坦的部分,提供更多的隐私和与自然环境的联系。
The building adapts to the sites contours, with arrival separated from private south facing kitchen-terrace, with the garden to the north exploiting the only flat section of the site and offering further privacy and connection to natural context.
© Jill Tate Photography
(三)吉尔·塔特摄影
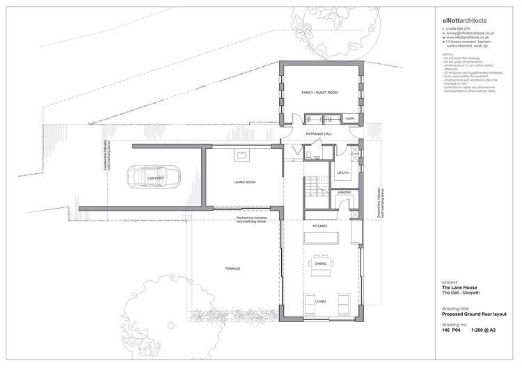
Ground Floor Plan
© Jill Tate Photography
(三)吉尔·塔特摄影
这里有一种有意丰富的材料调色板;就像托马斯·布伊克木刻或周围的林地纹理一样,这座建筑是由不同的纹理和表面组成的;自然而精确地控制在较低的部分和未经处理的木材上面。
There is an intentionally rich palette of materials; like a Thomas Bewick woodcut or the woodland texture around it, the building is made of different grains and surfaces; natural but under precise control with slate shingle cladding to the lower sections and untreated timber above.
© Jill Tate Photography
(三)吉尔·塔特摄影
First Floor Plan
一层平面图
© Jill Tate Photography
(三)吉尔·塔特摄影
十字形布局将网站划分为不同的隐私区域,材料处理使之呈现出一系列单层体积,减少了对网站的影响,同时也创造了一种有趣的关系;石板和砖块属于地球,而木材元素属于树林和天空,就像漂浮在上面的树屋一样。
The cruciform arrangement divides the site into areas of varying privacy and the material treatments give the appearance of a series of single-storey volumes, reducing the impact on the site whilst creating a playful relationship; slate and brick belong to the earth while the timber elements are of the woods and sky, like a treehouse floating above.
由于地面条件困难,而且包括附近城镇的供水总管道在内,该地点一直没有得到开发。这就需要大量的工作才能将这些服务重新安置在相对狭窄的站点上,而最初的设计正是为了适应这一需求而发展起来的。因此,需要大量堆积如山的地基解决办法,这进一步限制了预算。
The site had remained undeveloped for several years due to the difficult ground conditions and the fact that services, including the water main for the nearby town, ran straight through the site. This required extensive works to relocate these services on the relatively narrow site, and the original design evolved to accommodate this. An extensively piled foundation solution was therefore required and this restricted the budget further.
© Jill Tate Photography
(三)吉尔·塔特摄影
戴尔项目拥有一切,充满了重大问题,客户、设计团队、承包商和建筑师共同努力,创造出一座质量最高的建筑。该项目以和谐的方式融入现场,开发了新的细节和使用传统技能材料的方法。这个计划似乎毫不费力,但却是完美地磨练了场地和家庭使用家庭的方式。这是一个所有参与其中的人都感到无比自豪的项目。
The Dell project has it all; fraught with significant problems, the client, design team, contractor and architect worked together to create a building of the highest quality. Settling harmoniously into its site, the project develops new detailing and ways of using materials with traditional skills. The planning appears effortless but is perfectly honed to the site and the way the family use the home. It is a project with which all those involved are incredibly proud.
© Jill Tate Photography
(三)吉尔·塔特摄影
Architects Elliott Architects
Location Northumberland, United Kingdom
Category Houses
Architects in Charge Lynsey Elliott, Ben Elliott
Area 220.0 m2
Project Year 2016
Photographs Jill Tate Photography
Manufacturers Loading...
客服
消息
收藏
下载
最近
































