查看完整案例


收藏

下载
© Peter Clarke
彼得·克拉克
Floor Plan
架构师提供的文本描述。大门大楼坐落在墨尔本大学的历史流经大动脉,锡巷分局的显眼处。这座新建筑从三一学院校园的中心与大学形成了戏剧性的视觉联系。给McIldowie合作伙伴的简报是,网关大楼作为三一学院和大学之间的一个新的接口。自1872年以来,三一学院附属于墨尔本大学,是著名而成功的基础研究项目的所在地-这是一个学术“门户”,每年有多达1800名国际学生准备进入墨尔本大学的本科课程。根据McIldowiePartners总监StevenMcIldowie的说法,网关大楼无缝地反映了墨尔本在砖石和青石砌体方面的历史,同时也是现代和创新的本身。“传统上,教育建筑往内看,我们的目标是向三一学院展示连接学院和大学的人流,”McIldowie说。
Text description provided by the architects. The Gateway Building sits prominently along Melbourne University’s historic circulation artery, the Tin Alley precinct. The new building forms a dramatic visual connection to the University from the centre of the Trinity College campus. The brief given to McIldowie Partners, was for the Gateway Building to serve as a new interface between Trinity College and the University. Affiliated with Melbourne University since 1872, Trinity College is home to the prestigious and successful Foundation Studies program – an academic ‘gateway’ that prepares up to 1,800 international students for entry into the University’s undergraduate courses each year. According to Director of McIldowie Partners, Steven McIldowie, the Gateway Building seamlessly reflects Melbourne’s history in brick and bluestone masonry whilst being contemporary and innovative in its own right. “Where traditionally, education buildings look inwards, we aimed to showcase Trinity College to the pedestrian flow linking the College and the University,” says McIldowie.
© Peter Clarke
彼得·克拉克
他说:“上层是由纹理砖和深色玻璃组成的复杂组合,在现代解读维多利亚时代建筑的过程中,创造了一种有趣的̧模式。”一个透明的玻璃中庭贯穿整个建筑,以增加自然光和通风,创造了一个功能和视觉链接之间的两个街道地址的网站。内部,有限的调色板和多面的木材板创造了平静,诱人,充满光线的空间,反映了温暖和永恒的感觉。广泛的计算机建模和复杂的结构框架被要求设计木材板,整个中央中庭和最先进的,300个座位的礼堂使用。这些空间的大部分材料都是为了它们的声学完整性而选择的;为了优化这些空间内的声音,减少每个定义的空间之间的噪音排放。这座新大楼是基础研究项目的总部,该项目以前是在卡尔顿各地租用的大楼中进行的。
“The upper levels are an intricate composition of textured brick and dark glazing creating an intriguing façade in a modern interpretation of the surrounding Victorian architecture,” he says. A clear-glazed atrium cuts through the building to increase natural light and ventilation throughout, creating a functional and visual link between the two street addresses for the site. Internally, a restrained colour palette and faceted timber panelling create calm, inviting, light-filled spaces that reflect warmth and a sense of timelessness. Extensive computer modelling and a complex structural framework were required to design the timber panelling, used throughout the central atrium and state-of- the-art, 300-seat auditorium. Much of the materials for these spaces were selected for their acoustic integrity; to optimise the sound within and reduce noise-bleed between each of the defined spaces. The new building serves as the headquarters to the Foundation Studies program, which was previously accommodated in leased buildings across Carlton.
© Peter Clarke
彼得·克拉克
基础研究目前由一个有300个座位的演讲厅、25个补习室、5个戏剧工作室、音乐室和一个物理实验室提供服务,而三一学院的大量文化藏品和档案则存放在一个新的画廊空间和专门建造的展览中。据三一学院典狱长肯·亨奇克利夫教授说,这座建筑对学院文化产生了重大影响。Hinchcliff教授说:“门户大楼已经把1800名基础研究学生带回了三一校园,那里现在的归属感要大得多。”
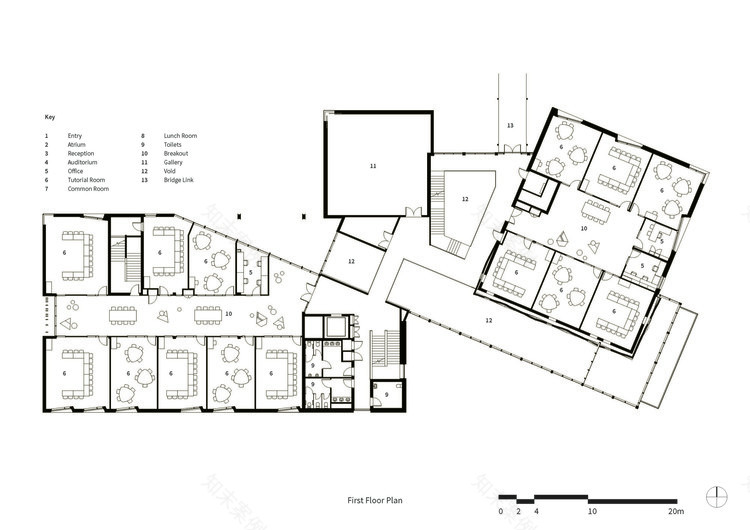
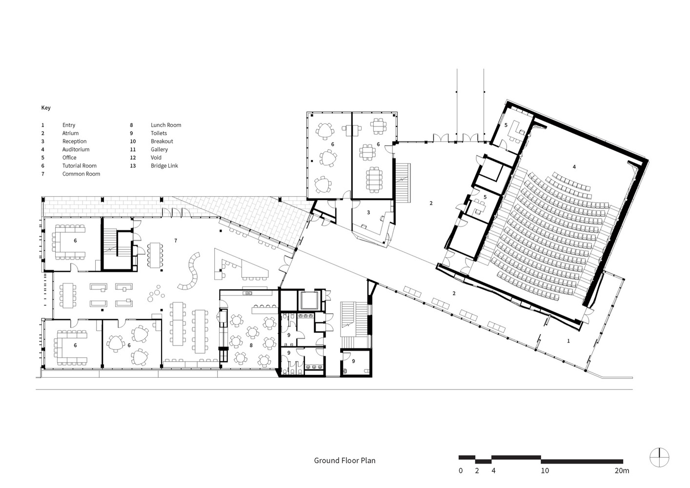
Foundation Studies is now served by a 300-seat lecture theatre, 25 tutorial rooms, five drama studios, music rooms and a physics lab, while Trinity College’s extensive cultural collections and archives are housed in a new gallery space and purpose- built displays. According to Trinity College Warden, Professor Ken Hinchcliff, the building has had a significant impact on the college’s culture. “The Gateway Building has brought 1,800 Foundation Studies students back to the Trinity campus, where there is now a much greater sense of belonging,” said Professor Hinchcliff.
© Peter Clarke
彼得·克拉克
“一流的设施取得了惊人的成功,其使用需求激增就证明了这一点。这座建筑已为学生、居民、教职员、大学校友以及更广泛的墨尔本大学社区所接受。“从城市规划的角度来看,这一成功的基础设施实际上模糊了三一学院与大学之间的界限。门户大楼创造了一种独特的、渗透的联系,亨奇克利夫教授认为,这是“为三一学院学生重新启用田巷分局和提高学院经验”的责任所在。
“The first-class facilities have been stunningly successful, as evidenced by a surge in their demand for use. The building has been embraced by students, residents, staff and college alumni, as well as the broader University of Melbourne community,” he continued. From an urban planning perspective, this successful infrastructure has effectively blurred the boundary between Trinity College and the University. The Gateway Building has created a uniquely permeable connection, which Professor Hinchcliff believes is responsible for “re-energising the Tin Alley precinct and enhancing the collegiate experience for Trinity College students.”
© Peter Clarke
彼得·克拉克
Architects McIldowie Partners
Location Parkville VIC 3010, Australia
Category Higher Education
Architect in Charge McIldowie Partners
Area 600.0 m2
Project Year 2016
Photographs Peter Clarke
Manufacturers Loading...
客服
消息
收藏
下载
最近
























