查看完整案例


收藏

下载

翻译
McIldowie Partners was tasked with bridging two grades at the Melbourne Ladies College with the Nicholas Learning Centre in Melbourne, Australia.
From a plinth of grey bluestone to the light and open roof garden, with sight lines in all directions, the eastern walls of MLC’s Nicholas Learning Centre are carefully and deliberately curved, softly scribed along the hard edge of the sporting oval. The handcrafted brick ‘skin’ in pale shades and progressive tones brings warmth and connectivity between the formal and informal campus context. From within, the curved skin is punctuated by a fenestration framing views, expressing open connection beyond the College, reflecting the MLC theme of educating world-ready women.
The Nicholas Learning Centre for Years 7 and 8 girls is the first project emerging from the 2015 College Masterplan – a vision for the 10-year development of the Kew campus of Methodist Ladies College, in Melbourne’s inner east.
Situated between MLC traditional primary and secondary schools the new building brings together previously separated Years 7 & 8 to create of a school within a school, alongside the new landscape heart of the campus, the Principal’s Terrace.
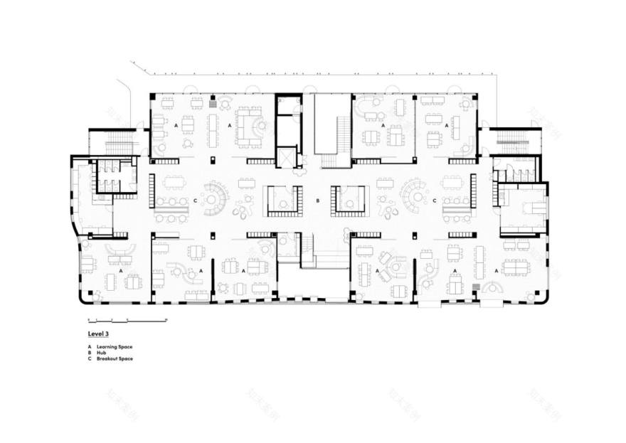
Arising from the demolition of two cramped wings of the previous Nicholas building, the new Centre provides four levels of learning spaces, a level each for Years 7 and 8, both with 10 learning spaces or home rooms. A shared innovative learning zone at the top of the building flows into the popular roof-garden for outdoor learning and at the building’s base, a formal administrative floor welcomes parent and visitors.
The western edge of the new building— once ‘Grove Avenue’ a remnant of the evolution of the campus from a suburban street—is softened and opened to provide a gracious welcome to a natural flow of students and visitors into the new heart of the campus, the Principal’s Terrace. This has become a natural gathering place, overlooked by the Centre’s verandahs, providing shade, and an invitation to outdoor learning.
The west façade is predominantly glazed to take advantage of the garden setting beyond and to flood the learning spaces with natural light. A series of coloured triangular aluminium battens emphasize the horizontal gesture of the balcony, such that the building engages intimately with the human scale of the terrace beyond. Each batten also rotates, so students can participate in the architecture, creating a sense of playfulness appropriate for the middle years setting.
The deep overhanging balcony, as well as the natural stack ventilation system which provides fresh air to the learning spaces and ensure that comfortable temperatures are maintained throughout the day. A series of display units in each learning space inform staff and students when conditions are suitable for natural ventilation, which has been embraced as a learning tool from staff and students alike.
Working in close collaboration with the school’s academic staff, the design of the learning spaces are driven by the concept of the learning community, which aims to balance access into the heart of the campus with wellbeing and best practice learning.
As a result, the building is broken down into a series clusters, 5 learning spaces around a shared breakout space, nurturing students in the transition from junior to secondary schools by building strong bonds between peers and staff through a homeroom based wellbeing model, strengthening a sense of identity and ownership over the spaces.
Playfulness throughout the design encourages the girls to enter the new environment with a sense of wonder as well as purpose. Colour is used to bring spaces together, and to provide a contrast between floor levels. At the micro level, intimate nooks open up for private reflection and research, contiguous with the broader learning environment.
The design supports a variety of learning settings through agile furniture and provides porosity between spaces through oversized glass sliding doors and operable walls. This enables students to access multiple areas within the learning environment and to shift seamlessly between different modes of learning. From independent learning to collaborative group work, or from more directed learning to reflection. By encouraging students to choose where and how they learn, the design aims to empower students to be the authors of their own learning.
Purposeful learning settings such as presentation booths with video conferencing, a green screen filming studio, maker spaces and a seminar room are provided in a more open manner. The roof terrace flows seamless from this collection of spaces to form a hub for project based collaborative work and provides a platform for innovative teaching and learning practices as distinct from the flexible spaces provided below.
Architect: McIldowie Partners
Photography: Peter Bennetts
24 Images | expand images for additional detail
客服
消息
收藏
下载
最近


























