查看完整案例


收藏

下载
米兰中心两个年轻收藏家的房子
由Co.Arch工作室进行的一个项目
在Via San Marco,靠近Brera米兰艺术区的室内装修。
所面临的挑战是创造一个环境,使重要的当代艺术作品和古董家具能够在60年代后期的米兰建筑中协调一致。
这个项目的灵感来源于米兰建筑大师们的室内装饰,恢复了Portalupi和Bottoni所使用的迷人材料,以及Gio Ponti的几何而冷静的装饰。Co.Arch的建筑方案旨在实现一个理性和实用的家居空间,但却是极其复杂和精致的家具和材料。
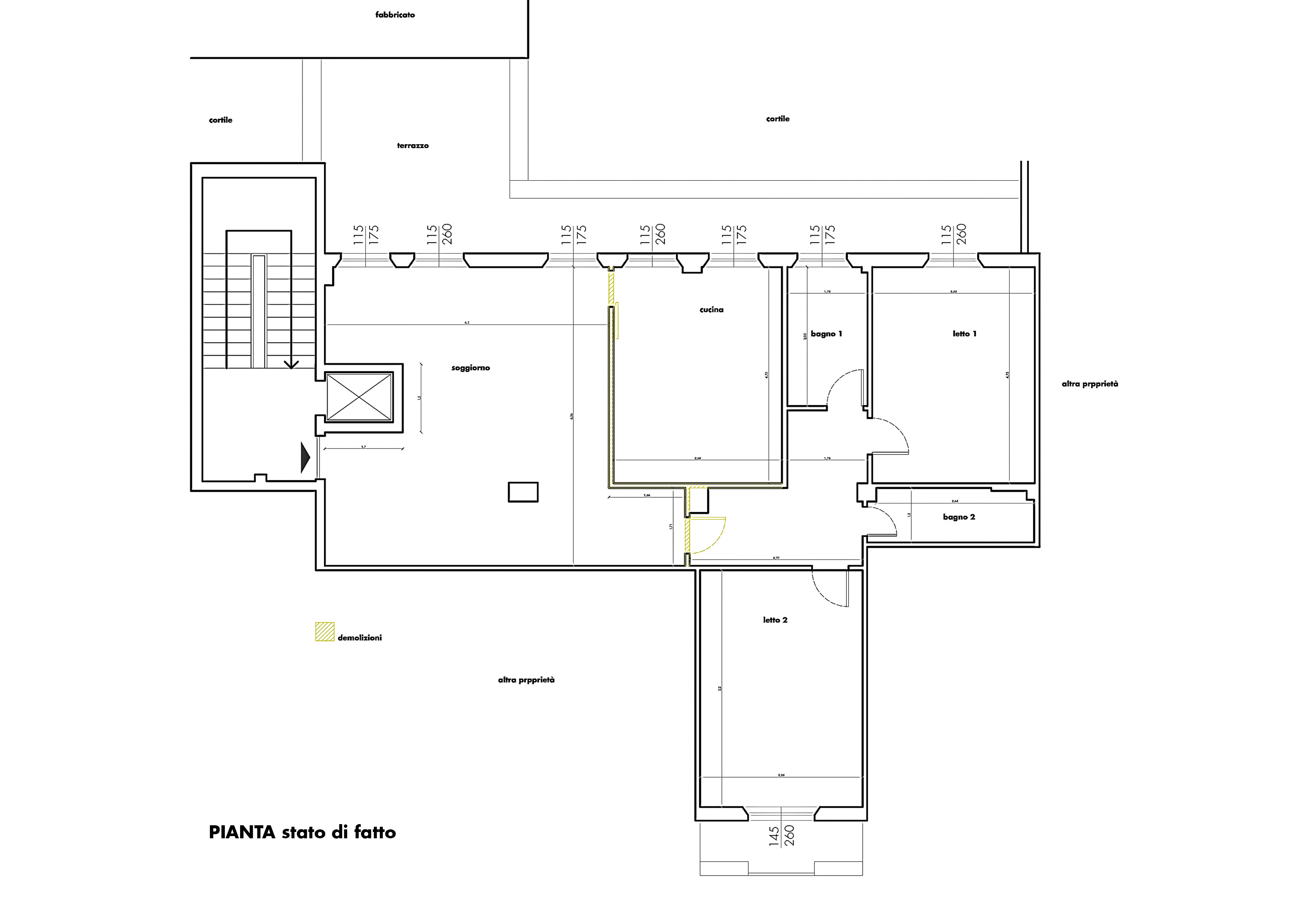
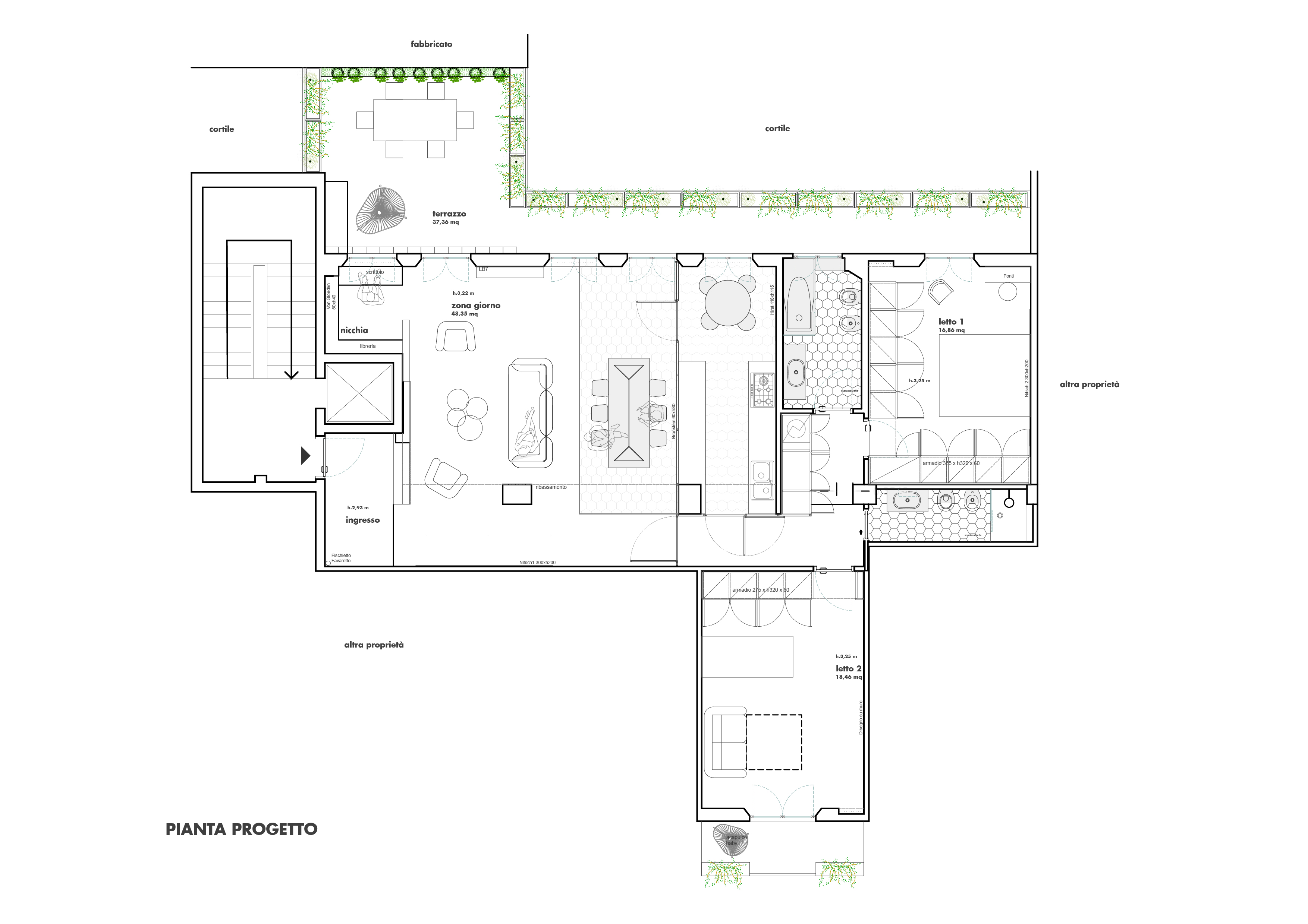
最重要的概念之一是纹理的断裂:它决定保留现有的木地板,在蓝白水泥瓷砖中插入一个新的木地板,使材料保持相当清晰,就像划定区域的地毯一样。
居住区域已经扩大,保持一个简单和技术厨房,而不损害舒适。
在客厅的柱子已经被加强和光学减轻了黄铜的完成,这让人想起皮耶罗波托尼的内部。
为该项目设计的餐桌诞生了SM 22,这是在2016年米兰设计周(Milano Design Week)上展出的一系列家具,受到教室家具的启发,它被漆成胶合板,以回忆水泥瓷砖的颜色,用一种油漆的钢结构来搭配60年代的椅子。在桌子上方,两盏绳灯由弗洛斯框架,两幅画由巴勃罗·布朗斯坦在木墙上画。
对于新家具,几乎所有的Taylored,它被选择使用强大的纹理,公开宣示干预的新性质与现有的。客厅与厨房、卧室之间的木墙和消失的门一起被设计出来,以便为起居室创造一个物质的舞台。
在谈话区放松是由Patricia Urquiola为Moroso设计的“爱我的投标”沙发获得的。一种柔和的触感与50年代的沙发线条形成对比,这些沙发是从他祖父母的房子里恢复过来的,他们混合着赫尔曼·尼奇(Hermannitsch)这幅宏大画面中强有力的绿色。
由于在起居区后面有一个小生境,因此可以建造一个小的研究区,其特点是墙壁的颜色和书架的设计,这是一种由三角支架制作的游戏。
客厅的宽木墙继续划出一个立方体,包围服务区:厨房和洗衣区。
斯堪的纳维亚风味松树的基本主题是柔软的质地,它的主题是在睡眠区,优先考虑实用的宽敞衣柜的需要。卧室的秩序和整洁是从床边的挂毯上摇动的,同样是由代表十字架的尼奇(Nitsch)所做的。
在一个角落,作为平静和放松的一个元素,由吉奥·庞蒂设计的小蓝厕所主要是在索伦托酒店。
在小女孩的房间里,装饰主题通过INSUNSIT制作的壁画得以保持。INSUNSIT是一个由曼图亚和维罗纳两位年轻插画家组成的团队。梦想般的环境有其完美的顶点,在柔和的光线,眩晕创造的小弗里特。
在浴室里继续提到庞蒂,那里的几何装饰品是由三角形和星形的绿色和白色水泥瓷砖所创造的千变万化图案中的极致。黄铜是在宝贵的细节的灯IC 1和IC W由Flos,设计阿纳斯塔西亚兹。
另一种涉及到同拱的环境是露台。被选中创建一个野生花园的米斯堪的斯和护理,实现了光学锥从室内到最优雅的本质,如龙舌兰和芳香花。
露台真正的灵魂是蔬菜墙,如今这是一种广受欢迎的元素,但通过安装由年轻的伊朗设计师马利克·陶瓷厂手工制作的陶瓷花瓶,在米兰重新来过。连接船只的白色船绳,除了保证结构的稳定性外,还用它们的几何设计创造了一个新的头韵。
Arch是一家年轻的建筑公司,由Andrea Pezzoli和Giulia Urciuoli组成,负责室内设计和景观设计,目前正在洛杉矶建造一家年轻的意大利团队的小店。它还积极参与贝尔加莫前造纸厂pigna的一个美丽的修复项目,这是一个20世纪初的自由工业综合体,将有一个大型的市场大厅,为创业和文化提供空间。
Arredi/家具
Divano“温柔地爱我”-Moroso
Tavolo e咖啡桌Sm22 di co.archstudio
Gio Ponti酒店
塞迪·托内原始疗养
Luci/灯光
史努比
托伊奥-弗洛斯
弦灯-Flos
IC1EICW-FLOUR
眩晕
Firm co.arch
Type Residential › Apartment Private House
STATUS Built
YEAR 2016
SIZE 0 sqft - 1000 sqft
BUDGET $50K - 100K
keywordsarchitecture, architecture news, interiors, interior design, portfolio, spec, brands, marketplace, products SM22
关键词建筑、建筑新闻、室内设计、组合、规格、品牌、市场、产品SM 22
客服
消息
收藏
下载
最近








































































