查看完整案例


收藏

下载
节目前后字幕:
首席设计师-Jason Weil:RetroFit Design LLC
室内设计师塔利·罗伯茨:阿拉德
总承包商-布拉德赖斯:领头羊设计建筑
结构工程师-Frank Ungert:Medlock and Associates
开发商:David Zimmerman
摄影师:David Dietrich
Privé(Ciel 10)是一个定制的开发人员规范,位于一个美丽的地段的高端山区社区,提供壮观的景观和许多挑战。开发商只规定,它是现代的,市场的,特别的。
南面的景点可以看到阿什维尔的天际线,还有蓝岭山脉的远距离景色。这批人需要一些富有戏剧性和雕塑性的东西。我从外面设计房子,就像在设计一件雕塑。通过在不同角度上移动一系列悬臂块体,并在视觉上和结构上用灰泥覆盖的垂直循环块将它们固定在山上,我创造了一个动态结构,同时结合了最佳的视图。
当你进入这所房子的时候,戏剧还在继续。大的地板到天花板的窗户,一个24英尺的滑动门,和膨胀的甲板在每一层融合了内部和外部捕捉到惊人的景观市中心阿什维尔和山脉以外。
整个上层是一个豪华的主套房,以悬臂式主卧室为高潮,其中有一个玻璃头直接指向阿什维尔的天际线。
这个网站提出了许多挑战。山遗址从道路上下降约320’,并落在几个受保护的山脊条例。指南限制了场地扰动量、树移除量、LRV值和结构等级的限制高度。另一个挑战是平衡隐私与可访问性。我们把房子从街上放得越远,就越难设计出一条可管理的车道。我们到达了一个愉快的媒介,给房子的隐私质量,开发商要求和能力,使汽车到中级车库在陡峭地段。
垂直柏木墙板的覆层选择是由开发商和设计团队决定完成的柏树与长荣,生态友好的完成,这将给板一个良好的陈年灰色完成。完成颜色背后的概念是,在落叶林的叶子脱落的时候,通过创造一个接近自然树干颜色的包层,使建筑物从下面的山谷中略为隐藏起来。在一年中的任何时候,这座房子都与山上的周围环境很自然地融合在一起。
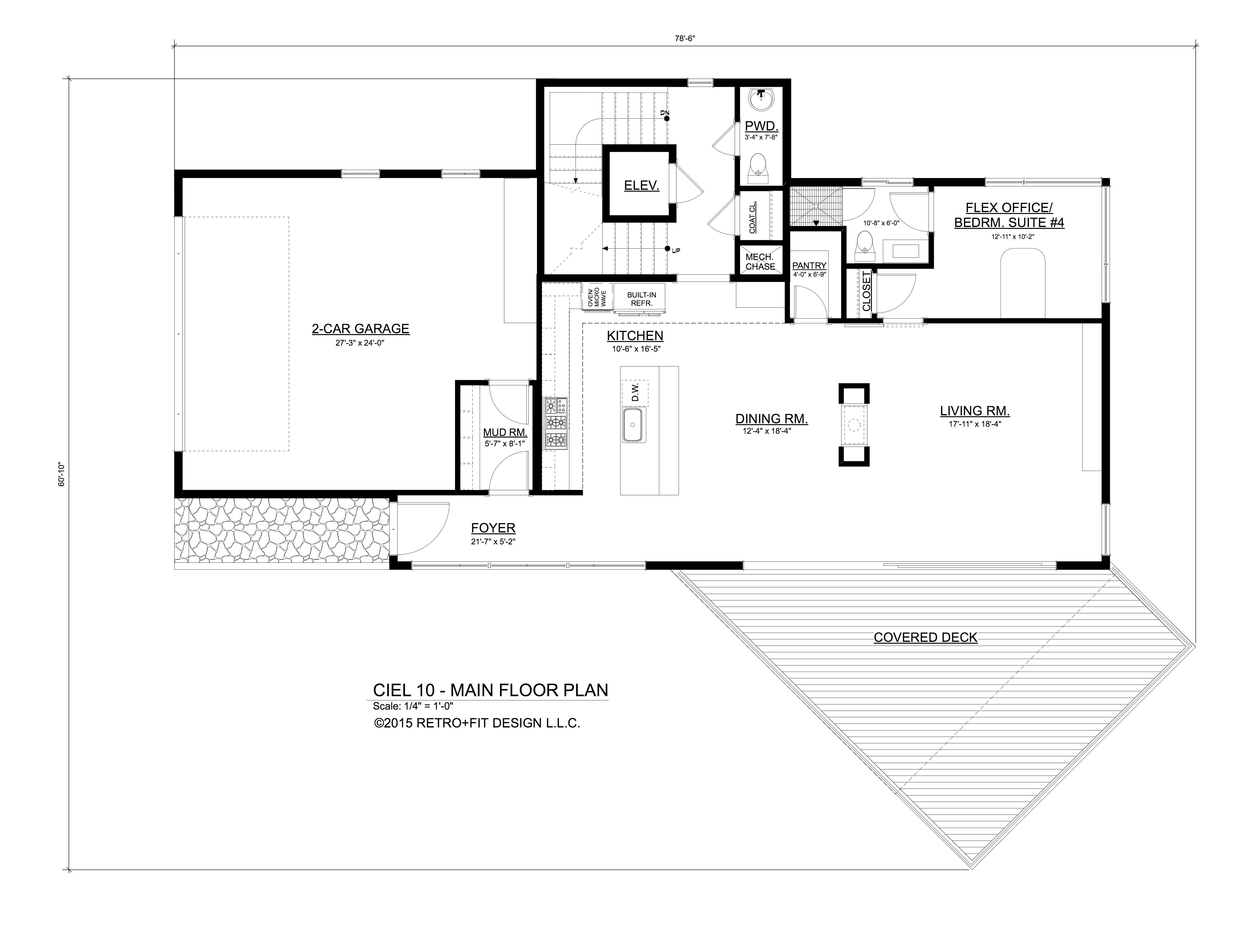
虽然这座房子是以雕塑的方式设计的,但我还是能够创造出一种高效的功能空间流动,这对各种潜在的买家来说是可行的。由于Privé原本是一座高档住宅,我不得不想出一个计划,让它适合退休人员、有孩子的年轻家庭或空巢者。实现这一目标的平面图具有固有的灵活性。
在Privé的内部概念是创造一个中立的调色板,不会带走房子周围的美丽景色。我们决定要现代的内饰,但是我们不希望它太冷,因为一些现代的内饰会出现。内部不得不回应网站的美丽性质,同时又不贬低它。阿拉德的室内设计师塔利·罗伯茨
总之,普里韦山与周围的山脉一样独特,令人叹为观止,坚实而鼓舞人心。
Firm Retro+Fit Design LLC
Type Residential › Private House
STATUS Built
YEAR 2015
SIZE 3000 sqft - 5000 sqft
BUDGET $1M - 5M
keywords:architecture, architecture news, interiors, interior design, portfolio, spec, brands, marketplace, products Ciel 10- The Privé
关键词:建筑,建筑新闻,室内设计,组合,规格,品牌,市场,产品Ciel 10-Privé
客服
消息
收藏
下载
最近






















