查看完整案例


收藏

下载
© Samuel Antonini
(c)SamuelAntonini
架构师提供的文本描述。选择住在CoLab的地方是一座旧联排别墅,位于Rua Fernandes Guimar es上,远离Botafogo的住宅区。原来是一个摩托车车间,有一个大的前开口,金属滚门和水泥地板。我们决定利用这一点,因为在客户的简报会上,我们的想法是要有一个街道延伸的空间,一个透明的环境来支持和鼓励手工生产,这是指“家庭车库”中的实验室的想法。
Text description provided by the architects. The place chosen to house the CoLAB was an old townhouse, in a residential area away from the buzz of Botafogo, on Rua Fernandes Guimarães. Originally a motorcycle workshop was in place, with a large front opening, metal roller door and cement floor. We decided to take advantage of this, since at the client's briefing the idea was to have a space that was an extension of the street, a transparent environment that enables and encourages artisanal production, referring to the idea of a laboratory of experiments in the "garage of home".
© Samuel Antonini
(c)SamuelAntonini
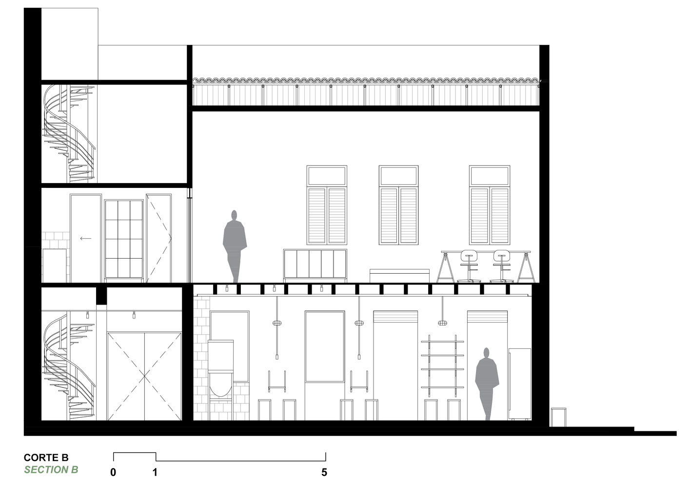
这栋房子有三层楼,共计140平方米,分布如下:一楼是公共服务部门,设有休息室和酒吧;一楼是最私人的活动,如协同厨房、储存/后勤和办公室;最后,在二楼,是手工制作的微型啤酒厂。
The house has three floors, which add up to 140m², distributed as follows: on the ground floor, the public service, with lounge and bar; On the first floor, the most private activities, such as collaborative kitchen, storage/logistics and offices; And finally, on the second floor, the handcrafted microbrewery.
© Samuel Antonini
(c)SamuelAntonini
内部空间又深又窄,所以我们决定维持正门,拆除舷窗,以便与外部区域更好地整合,这也让我们可以进入洗手间和连接其他楼层的楼梯。现有的侧门让位于一堵混凝土砌块墙,增加了外部/内部的视觉交流,使家具得到了更好的安排。在外观上,皇家蓝画获得了新的礼服,现在一半灰色,一半白色。
The internal space is deep and narrow so we decided to maintain the main entrance and demolish the side portholes, allowing a better integration with the external area, which also gives access to the restroom and the staircase that connects the other floors. The existing side entrance gave way to a wall of concrete blocks, increasing the external / internal visual communication and allowing a better arrangement of the furniture. On the façade, the royal blue painting gained new dress, now half gray, half white.
Axonometric Ground Floor
轴测底层
Axonometric First Floor
轴测一楼
在一楼,天花板衬里被拆除,留下裸露的木梁。然而,它的小的原始切割已被保持,产生了手动叉车,通过滑轮,绳索和钩系统,将产品迅速和实际地移动到一楼。在这个地方,墙壁被剥落,砖块很明显,还安装了一系列管状灯具,暗指连接两层楼的楼梯-以及它们各自的功能-生产和储存。
On the ground floor, the ceiling liner was removed, leaving the exposed wooden beams. However, its small original cutting has been maintained, giving rise to a manual forklift, which, through a pulley, rope and hook system, moves the products to the first floor quickly and practically. In this place, the wall was peeled, leaving the bricks apparent, and also installed a series of tubular lamps that allude to a staircase that connects the two floors - and their respective functions - production and storage.
© Samuel Antonini
(c)SamuelAntonini
这些家具是为了适应空间的布局及其各种用途而设计的。桌子有铁的结构,顶部有白色和绿色的陶瓷,在一个小马赛克,画出了CoLab的视觉特征。在大厅的中心,三个单位结合在一起,形成了一个大的集体桌,鼓励了公众的社会融合。为了补充高条形计数器和可伸缩表,它们可以有可变的高度,使它们的使用更加灵活。在酒吧的货架上放着瓶子、咖啡和器皿,也在大厅里,作为当地手工制品的橱窗。
The furniture was designed to suit the layout of the space and its various uses. The tables have their iron structure and top with white and green ceramics, which in a small mosaic, draw the visual identity of the CoLAB. In the center of the hall, three units combine to form a large collective table, encouraging social integration of the public. To complement, high bar-style counters and retractable tables, which can have variable heights, making their usage more flexible. Racks in the bar to hold bottles, coffee and utensils, and also in the hall, as a showcase of local handmade products.
我们将斯堪的纳维亚式菜单(菲卡菜单)转化为一种随意的职业,使用极简的材料,如瓷砖、松木和水泥。仙人掌和肉质植物也是太空概念的一部分,除了不需要维护,还拯救了北欧的气候。生产的工业语言也是存在的,要么通过将啤酒桶暴露在灯具的选择和其表面的管道和装置上。
We translate the Scandinavian approach of the menu (fika menu) into a casual occupation through minimalist materials such as tile, pinus and cement. Cactus and succulents are also part of the concept of space, which in addition to requiring little maintenance, rescues the Nordic climate. The industrial language of production is also present, either by exposing the beer casks to the selection of light fixtures and their apparent pipes and installations.
© Samuel Antonini
(c)SamuelAntonini
Architects MZNO
Location R. Fernandes Guimarães, 66 - Botafogo, Rio de Janeiro - RJ, Brazil
Category Interiors Architecture
Architect in Charge Michelle Jagger , Natalia Schmidt
Area 140.0 m2
Project Year 2016
Photographs Samuel Antonini
Manufacturers Loading...
客服
消息
收藏
下载
最近

























