查看完整案例


收藏

下载
项目概况项目名称:广州方纬装饰东莞设计中心项目地址:东莞市东城区设计单位:广州方纬装饰有限公司设 计 师:邹志雄建筑面积:600㎡主要材料:仿古砖、锈钢板、玻璃广州方纬装饰东莞设计中心设计说明简约是一种生活态度,简约是一种较高层次的生活品质,一种在喧嚣都市里,让我们的生活空间更自然、纯净、简洁、清新并且宁静的态度。广州方纬装饰东莞设计中心,建筑面积600㎡,位于东莞市东城区美新商业中心六楼,体现的就是这种现代简约主义的风格。大片的玻璃间隔,宽敞的落地窗,透明玻璃茶几,胡桃木旋转椅,黑色办公桌,完美的简约组合。天花保留了原来的钢筋水泥结构,流露一种本色的粗犷之美,墙上的牛头骨挂饰,走廊墙边切得整整齐齐的木头,整个空间无论是线条的简洁舒展或是细节品质的精到把握,都使人产生美的感受。灯光也是设计师注重的一个细节,结合大片玻璃的运用,制造了一种通透而独特的视觉效果,把整个空间融合了在一起。总经理办公室开敞明亮,落地玻璃窗带进满室灿烂的阳光,而在晚上,美丽的城市夜景则可尽收眼底。深棕色的原木桌椅,黑色沙发,灰色地毯,融合了现代简约主义理念,散发着清新原始美,满室盈满浓郁的简约情调。在整个空间缔造上,黑、白、灰是主打色,原本单调而枯燥的色彩,却被设计师搭配得天衣无缝滴水不漏。方纬的员工何其有幸,在这里,工作,也是一种享受吧!
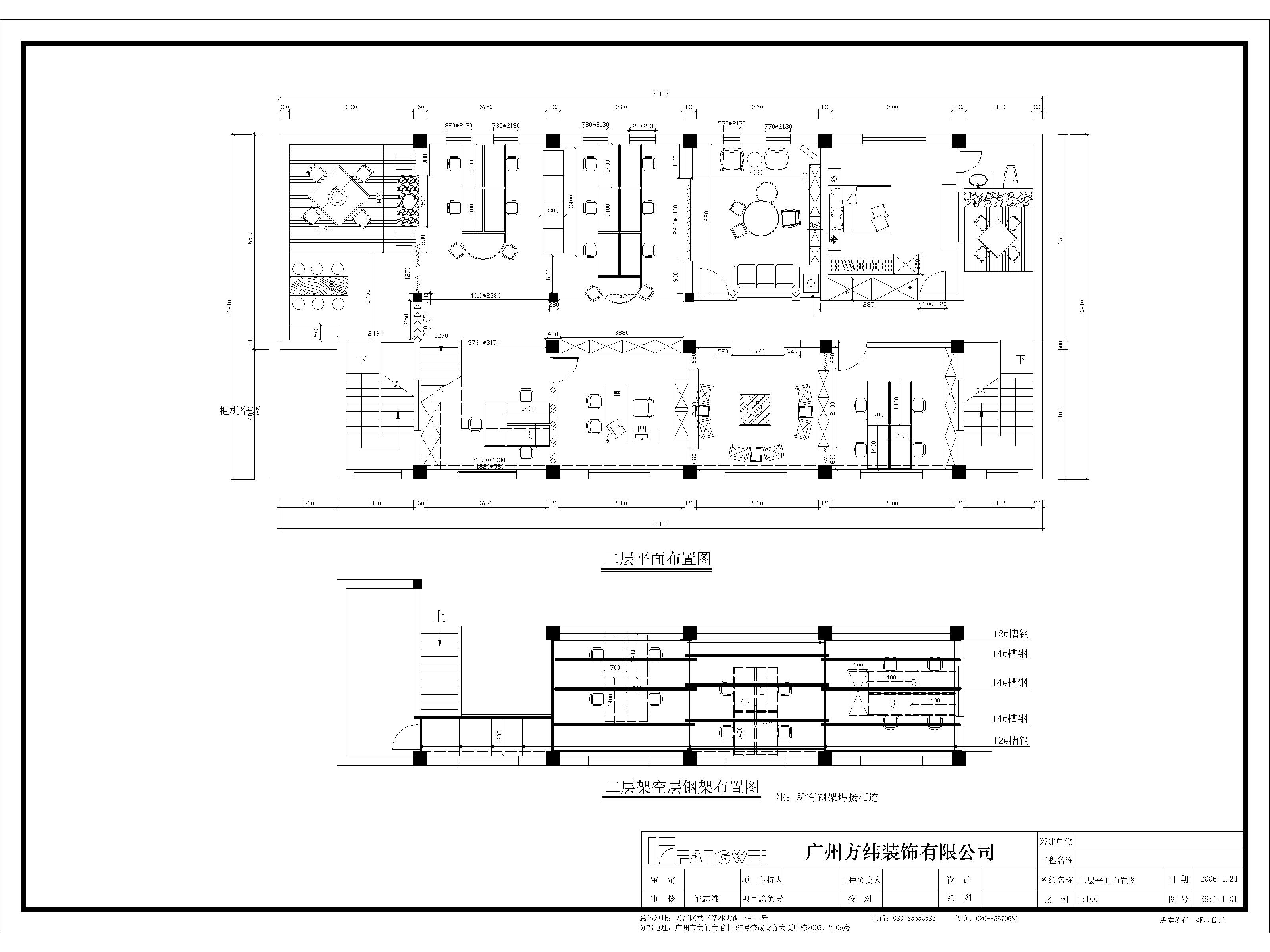
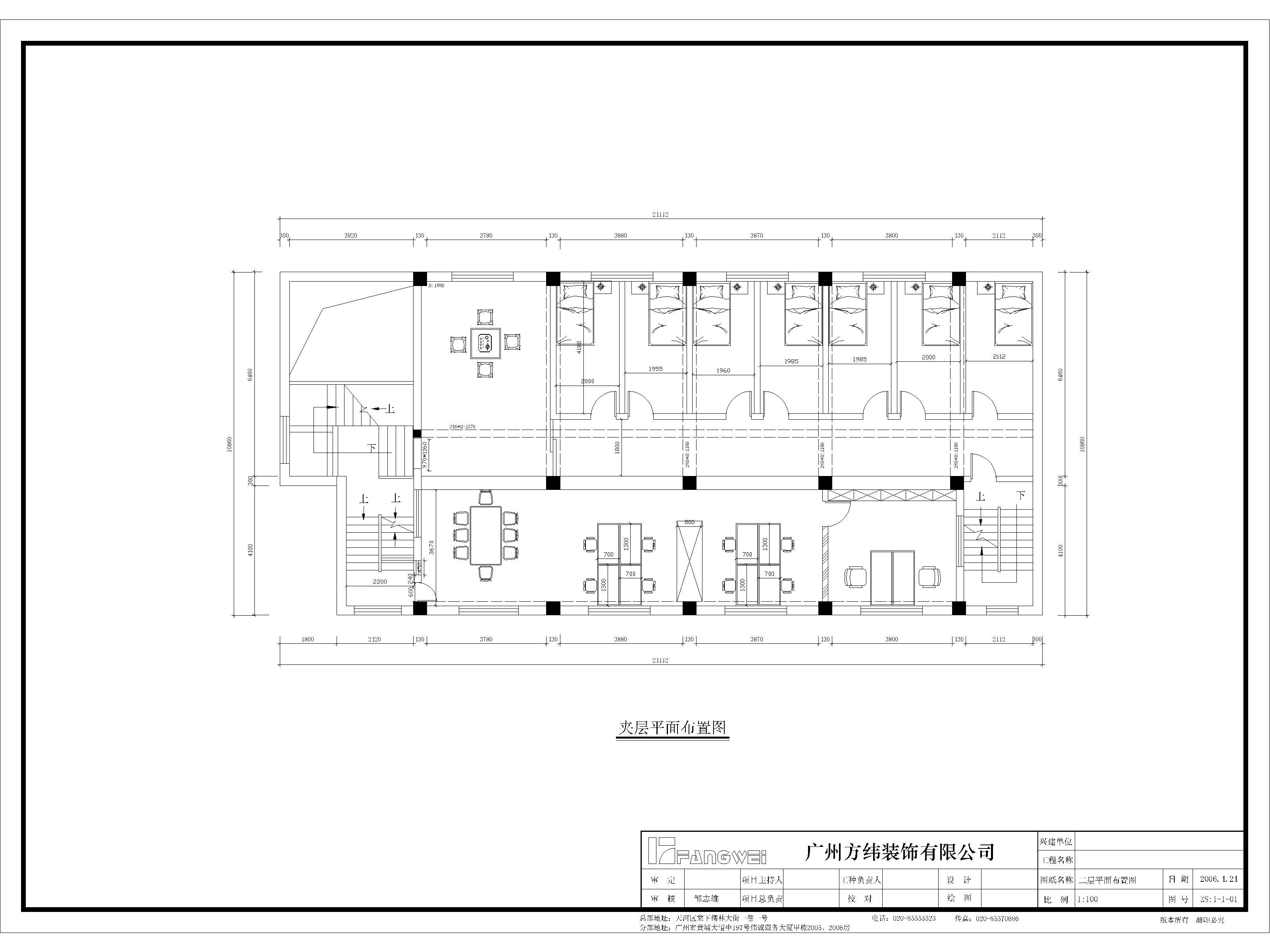
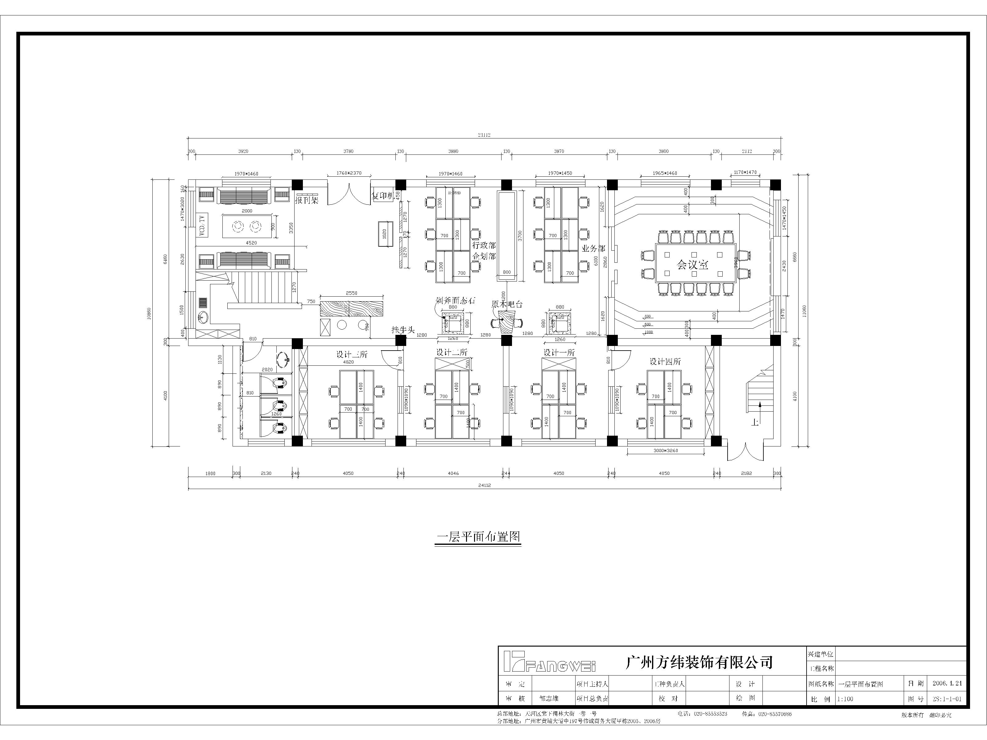
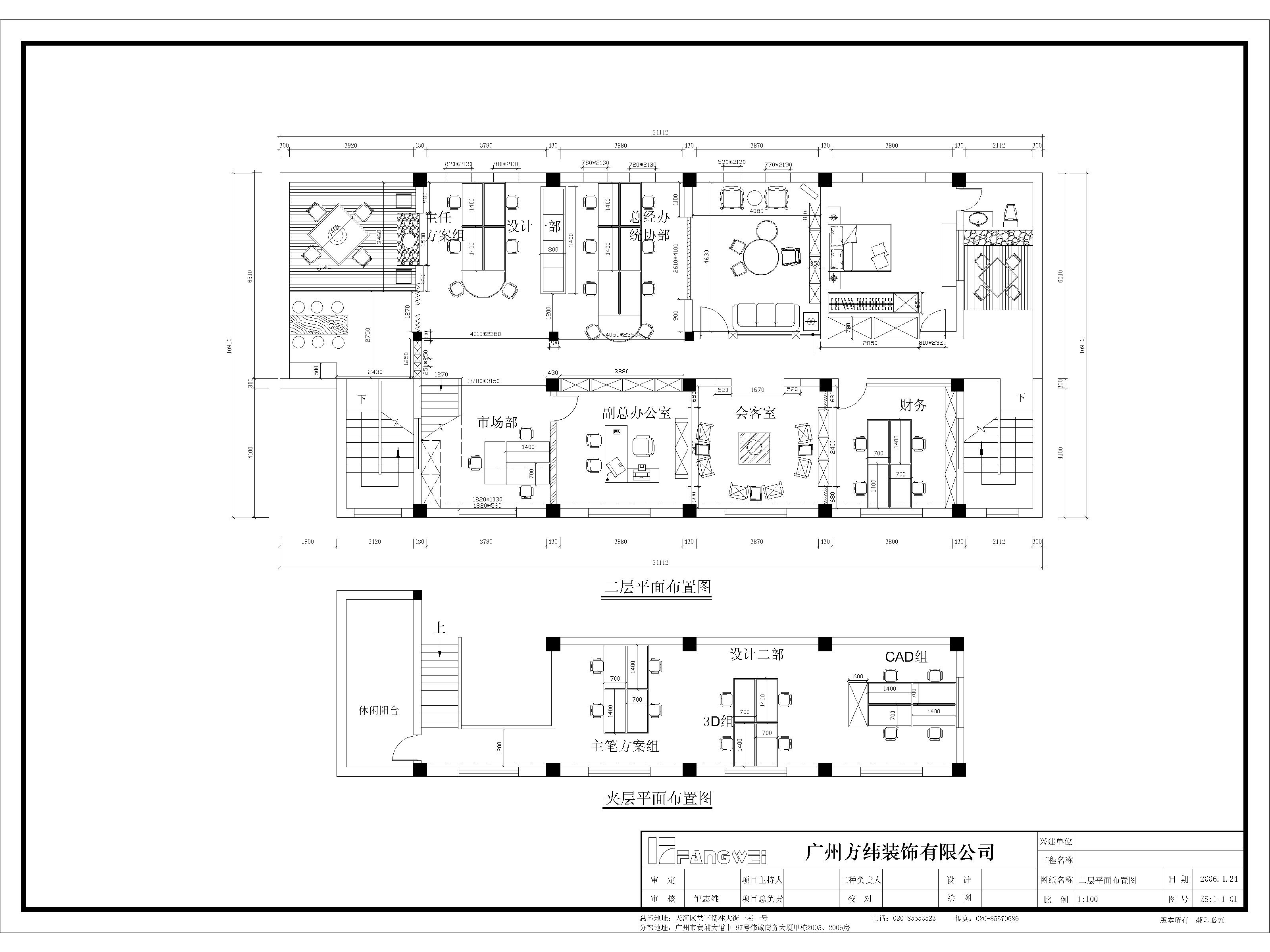
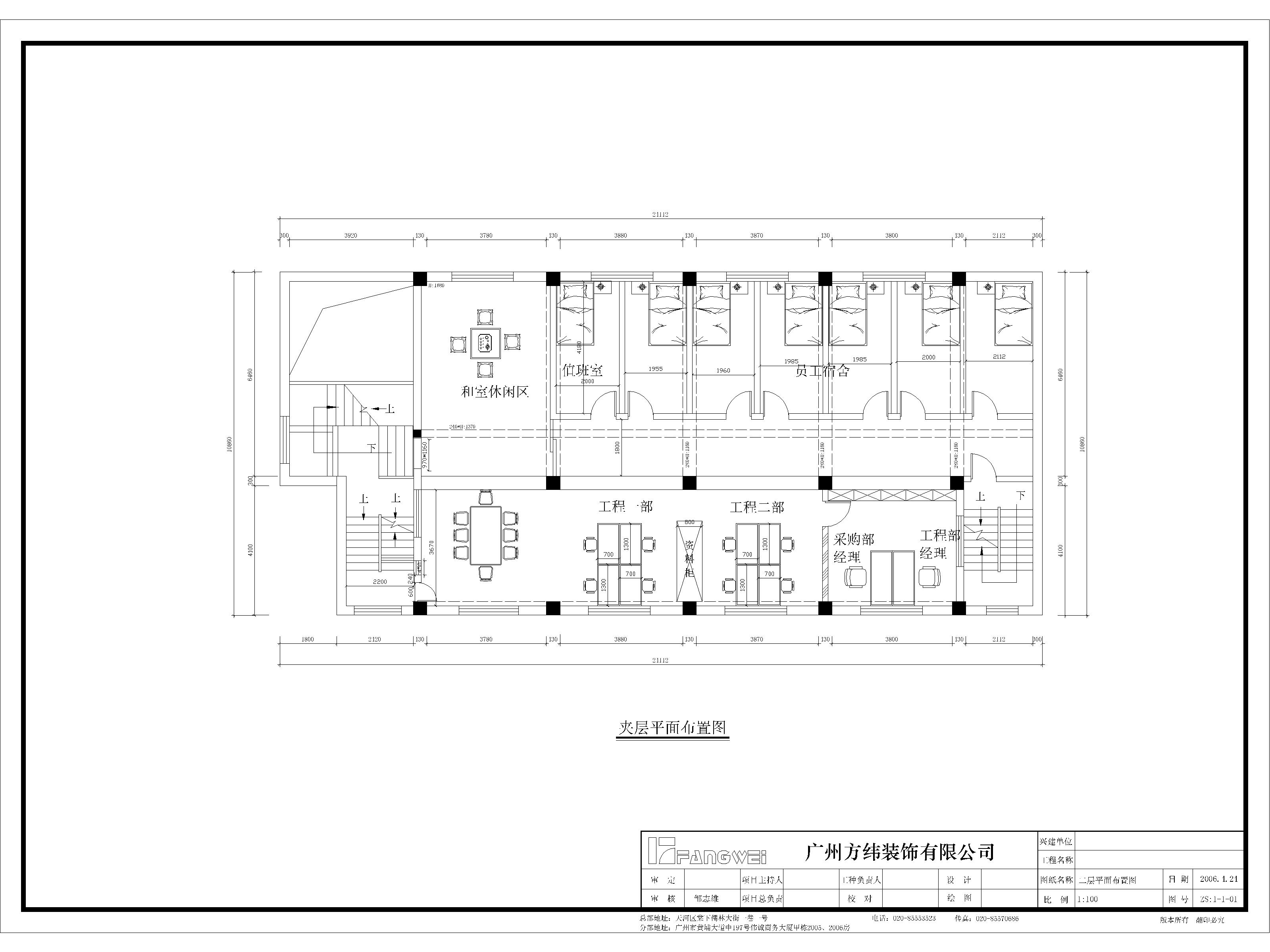
广州方纬装饰有限公司广州设计中心设计说明 项目名称:广州方纬装饰有限公司广州设计中心工程地点:广州市天河区设计单位:广州方纬装饰有限公司主设计师:邹志雄建筑面积:1000㎡ 装修主材:玻璃、槽钢、罗纹钢 广州方纬装饰有限公司广州设计中心是一个设计工作室,并且是环境工作室,是一个体现设计师自身的设计空间,使用的是简约、现代、自然的设计手法,通过对空间的巧妙利用、分隔,反映设计师的一种个性理念,反映企业的卓越优势。由于是自己所使用的工作室,在设计上更充分体现了对办公空间的一种理想化状态的设计,功能性与个性化结合,产生专业化的形象,体现务实、环保、生态、拼搏、和谐的企业文化。 广州方纬装饰广州设计中心的前身是一栋高米的破旧厂房,在其原有的布局上,为了使功能更加完善,规划了办公、接待、会议、洽谈、领导休息、员工休息、更衣室、吸烟区等各个区域,总面积将近1000多个平方米。为了更完美地体现原建筑的风貌,以及在设计中更多体现建筑语言,在装修上都没有刻意营造太多非功能性的装饰性造型,尽可能突出自然、生态,不做天花,墙面简单,裸露的钢筋、毛墙、结构柱,地面甚至是原厂房的水磨地面,这些无处不显示了用建筑语言体现空间原始性的美。在采光上,利用了周边环境以及独栋优势,大量采用自然光照明,灯光设备基本上是用来空间装饰点缀。 整栋建筑在风格上体现了一种后现代的时尚气息,崇尚自然、简约、生态、环保,以亮、白的浅色调子为主,将各种设计元素融合在一起,这是设计师对空间设计的一种尝试,由于未受甲方单位的意识干扰(设计师自身是甲方),无论是从功能还是形象,从设计元素还是设计风格,无论是从硬装修还是装饰上,设计师都能不受约束,尽情发挥。
邹志雄江西省九江市人,工艺美术装潢装饰专业毕业学历:法国国立工艺学院(CNAM)工程与设计项目管理硕士 清华大学建筑与设计创作专业研究生职称:国家注册高级设计师、国家注册高级室内建筑社会公职:广东省装饰行业协会理事 ︳广东省环境艺术设计行业协会理事 ︳广州市建筑装饰协会会员 ︳中国室内装饰协会会员 ︳IDA国际设计师协会秘书长 ︳广东省装饰行业协会专家组管理设计系列专家 ︳《设计之都》编委会委员主要经历:1991年入职广东省珠海市远大建筑装潢工程总公司,曾任主任设计师、设计总监、总监 ︳1996年创办江西九江金天室内设计工程公司、九江金天农业发展有限公司等多家企业,曾荣获“九江市十大杰出青年”称号 ︳1999年创建广州方纬装饰有限公司至今。公司荣誉:2005-2006年度广东省装饰行业5A企业 ︳2005年度广东省装饰行业诚信企业 ︳全国优秀装饰企业 ︳全国住宅装饰装修行业知名品牌企业 ︳中国家居业(05—06)年度十大设计机构 ︳广州环保宣言企业近期荣誉: 2007年度“广州设计界岭南十二名家”荣誉称号 ︳广州2004、2005、2006连续三年年度十大最具影响力室内设计师 ︳广州2005年度最具影响力五大室内设计师 ︳全国住宅装饰装修行业优秀设计师 ︳广东省装饰行业优秀企业家近期获奖:2007第三届国际室内设计大赛企业工程设计组别金奖,样板房工程设计组别银奖、铜奖,会所方案设计组别银奖,酒店工程设计组别铜奖,住宅工程设计组别铜奖第三届广东环境艺术设计手绘表现图大赛名师手稿展示范作品奖第二届广州建筑装饰设计大赛项目银奖、铜奖、优秀奖三项2007年“华耐.立家杯”中国室内设计大赛五项入围2007年中国(上海)国际建筑及室内设计节“金外滩”入围奖2007INTERIOR DESIGN CHINA 酒店设计奖提名奖“亨利.戴”杯《2006广东室内设计年鉴》优秀酒店设计奖第二届东鹏杯全国室内设计大奖赛全国优秀设计师奖2006年首届海峡两岸中南生态家居创意大奖赛金奖2006年第二届广东室内设计大赛五项优秀奖2006第二届中国室内设计艺术观摩展十大最具观摩展示作品奖2006年“华耐杯”中国室内设计大赛六项入围2006年(IDA)第二届国际建筑艺术作品大奖赛公共空间方案设计组别银奖全国第四届室内设计大展一项优秀奖中国第五届、中国第六届室内设计双年展三项优秀奖“欧神诺杯”瓷砖设计应用、款式花色大奖赛最佳空间公益大奖圆方装修设计联盟大展金奖2005年IFDA国际室内设计大奖赛企业组别金奖、企业组别银奖、会所组别铜奖2004年广州国际建筑装饰材料博览会国际商务空间设计金奖第三届中国国际(乐从)家具博览会空间设计大展优秀奖首届广州建筑装饰设计大赛优秀奖媒体推介:《名石.名师.名宅》︱《广州十杰》︱《金版装潢世界》︱《装点》︱《设计流》︱《建筑与室内设计年鉴》︱《全国第四届室内设计大展优秀作品集》︱《时尚家居》︱《生活元素空间》︱《现代装饰》︱《南方都市报》︱《广东设计师》︱《家在丽江》︱《新时空间》︱《广州国际房地产展览会 广州国际建筑装饰材料博览会》︱《家居装饰经典》︱《新别墅设计》︱《中国室内装饰信息》︱《中国装饰报》︱《海南省室内装饰协会》︱《国际风格餐厅》︱《第二届广州建筑装饰设计大赛获奖作品》︱《新居 2007家装设计师明星风云榜》︱《国魂.设计精英卷》……
客服
消息
收藏
下载
最近





















































