查看完整案例


收藏

下载
© JAG Studio
c.JAG 工作室
"La Casa como tema arquiectóNico, Recre Las iniciativas de los Arqutectos Contemoráneos por Pensar, Inventbir, proyectar y strucir una obra de Arqutectura que ha Ido 沉淀物ánmet como Isemema a lo Largo de la 现代派调查中心 de variados enfoques."
"La casa como tema arquitectónico, recorre las iniciativas de los arquitectos contemporáneos por pensar, concebir, proyectar y construir una obra de arquitectura que ha ido sedimentándose como problema a lo largo de la modernidad mediante investigaciones de variados enfoques."
© JAG Studio
c.JAG 工作室
Dan Testimonio de Tails búsquedas los trabajos de Mies, Le Corbuser, Alvar Aalto y lvaro Siza, entre Otros, Quenes Sentaron LasBases de los Modos de Ironar 中度 desde una Mirada múltiple y abierta a la invenciones e Innoaciones técnicas tano estéticas。(鼓掌)Dan testimonio de tales búsquedas los trabajos de Mies, Le Corbusier, Alvar Aalto y Álvaro Siza, entre otros, quienes sentaron las bases de los modos de habitar modernos desde una mirada múltiple y abierta a las invenciones e innovaciones técnicas tanto como estéticas.
Ellos han finido tradiciones proyectuales LAQUE, Acalizándolas Perentemente, los ArquArchtos de Lasjóvenes generaciones refieren como un Contexto de se alamientos Productivos psustentarse consu ejemplarda pero bi tamén parcentransderlos. Tal es el Caso de la obra de Juan Tohme, la que 呈现了一个 unas cualiddes Balbradas y Armónicas entre su propuesta disciinar y LAS potencialiddes ciliativas que la misma proone。
Ellos han definido tradiciones proyectuales las que, actualizándolas permanentemente, los arquitectos de las jóvenes generaciones refieren como un contexto de señalamientos productivos para sustentarse con su ejemplaridad pero también para trascenderlos. Tal es el caso de la obra de Juan Tohme, la que presenta unas cualidades equilibradas y armónicas entre su propuesta disciplinar y las potencialidades habitativas que la misma propone.
© JAG Studio
c.JAG 工作室
El acto Constructivo que ha devenido en“hogar”sabiamente ha Sabido conjugar Materides Poble, Parmentos de Memorias en una敏化 en la que timealidades se ecepeptan pardar a Luz condiciones quiarias que quententan la Noción ciativa:la vida misma。
El acto constructivo que ha devenido en“hogar”sabiamente ha sabido conjugar materialidades posibles, fragmentos de memorias en una sensibilidad en la que las temporalidades se interceptan para dar a luz las condiciones necesarias que fundamentan la noción habitativa: la vida misma.
© JAG Studio
c.JAG 工作室
ESTA Casa nos invita a ser habitada ya que seguramente ella nos ha de habitar, enriqueciendo nuestros sueños, recuerdos y el deleite de la recreación visual de un paisaje cultural que la distingue. Arq. Jorge Mele Profesor Titular de la Facultad de Arquitectura, Diseño y Urbanismo de la Universidad de Buenos Aires (FADU/UBA).
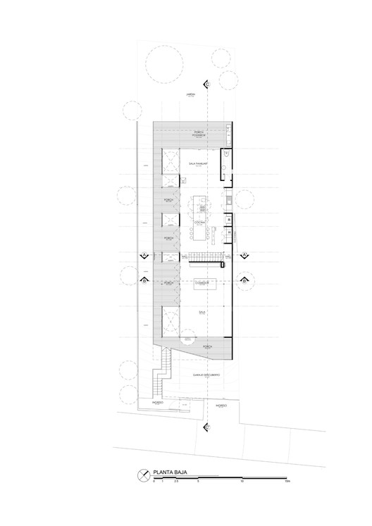
Descripción del Arquitecto: Ubicada en Zámbiza, parroquia rural situada al nor-este de la ciudad de Quito, la obra es implantada sobre un terreno rectangular en pendiente de 11m de ancho por 42m de largo, el cual, gracias al carácter tectónico de la casa, tensiona la relación con el paisaje y el lugar.
© JAG Studio
c.JAG 工作室
Como primera operación proyectual, se establece el plano horizontal plano como elemento predominante sobre el plano inclinado natural (requerimiento del cliente), el cual generará una intención de volar hacia el horizonte, como si de un muelle se tratase.
© JAG Studio
c.JAG 工作室
Eastas Strciones se 上上下下进行 Sistemas 概念性研究、una búsqueda de consistee y epacial que espacial que se manfiesta entre lo funcional y artístio、entre el orden y la presión、entre lo 比萨多 y lo ligero、lo opaco y transparente、protruendo asías i、congencias relo 水平 y lo 垂直。
Estas intenciones se remiten a sistemas conceptuales en este caso, una búsqueda de contraste y equilibrio espacial que se manifiesta entre lo funcional y artístico, entre el orden y la expresión, entre lo pesado y lo ligero, lo opaco y transparente, produciendo así, convergencias entre lo horizontal y lo vertical.
El Plano 水平 como epmiten dar un Nuevo Enfoque al Isema del espacio arquitectóNico y del 习惯性 Contemoráneo.=.en relación con esta IDEA,la femenología a través de la Percepción de los Objetos y del Lugar,nos da LAS cualiddes de la materia,del espacio que se genes de la 解释性塔基因特 (鼓掌)El plano horizontal como epistemología y el equilibrio como metodología permiten dar un nuevo enfoque al problema del espacio arquitectónico y del habitar contemporáneo. En relación con esta idea, la fenomenología a través de la percepción de los objetos y del lugar, nos da las cualidades de la materia, del espacio que se genera de la interpretación entre estos y el habitante.
© JAG Studio
c.JAG 工作室
Relacionando la forma, Fabión y espacio, la ArquArchtura eleva la Experiencia de la vida cotidiana a través de los múltiples fenómenos que Emergen de los entornos,为 y edificios Concretos。
Relacionando la forma, función y espacio, la arquitectura eleva la experiencia de la vida cotidiana a través de los múltiples fenómenos que emergen de los entornos, programas y edificios concretos.
Por un lado,存在的 UNIEA que Impsa la ArquArchtura;Por otro,la estructura,el Matter,el espacio,el color,la Luz y LasSombras intervienen en su 完形。
Por un lado, existe una idea que impulsa la arquitectura; por otro, la estructura, el material, el espacio, el color, la luz y las sombras intervienen en su gestación.
© JAG Studio
c.JAG 工作室
Un programa arquitectónico explotado al máximo y distribuido en relación a la composición de la casa sobre un suelo natural modelado permitiendo así, integraciones y creaciones de nuevas visuales. Esta composición se basa en tres operaciones: la primera, la generación de un volado de 6 metros hacia el horizonte a través de tres vigas ménsulas metálicas longitudinales, conformando así en el fondo, un espacio caja (subsuelo) donde estarán las máquinas y bodegas; la segunda operación, tres planos horizontales planos (suelos y cubierta) y entre estos, una estructura ligera modulada que permita ordenar y distribuir los espacios adecuadamente, ya sean en la primera planta donde se ubicará lo social y en la segunda planta lo privado; como tercera operación la perforación vertical de estos planos horizontales conformando a través del vacío espacios de luz y de paisaje y de manera concreta a través de la disposición central de las escaleras.
Encre otras epercciones, se destaca la concongación de Materiales正向金属公司,Hormigón,ladrillo,vidrio y la relación con unabamiento previamente establecido(Puerta Y Mueble),presenciando Asín,una 敏捷性 entre lo strucido y la Escala Humana:Una emoción arquipica。
Entre otras percepciones, se destaca la conjugación de materiales posibles como el metal, hormigón, ladrillo, vidrio y la relación con un equipamiento previamente establecido (puerta y muebles), presenciando así, una sensibilidad entre lo construido y la escala humana: una emoción arquitectónica.
un Plano 水平 Que Flota,que se levanta del Suelo parque se una al Horizonte,al Paisaje a través de una Plataforma 主,Otro Plano 横向 a la altura del Paisaje que pareciera la Cubierta de un Barco.un Plano 卧式公共汽车“lejanía y la Calma”。Una ArquArchtura Puesta siempre al servicio del hombre que vive,que sua y que piensa。
Una casa para vivir, para soñar, para pensar, para recorrer, para habitar, para tocar el cielo estando en la tierra.
Cabe destacar el lenguaje arquitectóNico y 文化 q se quiere 表示会:la Araulación de Materiales entre sícomo acto Constructivo,espacios 挠性的 ordenados y expresivos entre el Expresivos entre el External como acto proyectual y a través de la 穿孔 ión y búsqueda de luz y conconacn de patios y huertensados por el Recorrido como to 概念性,dedo de lado lo reatórico,Refllejando asíla Pensamientos medinos basados en la proia Disciplina arquitectónica。
Cabe destacar el lenguaje arquitectónico y cultural que se quiere expresar: la articulación de materiales entre sí como acto constructivo, espacios flexibles ordenados y expresivos entre el interior y el exterior como acto proyectual y una“horizontalidad verticalizada”a través de la perforación y búsqueda de luz y conformación de patios y huertos tensados por el recorrido como acto conceptual, dejando de lado lo retórico, reflejando así la posibilidad de actualización de pensamientos modernos basados en la propia disciplina arquitectónica.
Arquitectos Juan Tohme
Ubicación Zámbiza, Quito, Ecuador
Área 255.0 m2
Año Proyecto 2016
Fotografías JAG Studio
客服
消息
收藏
下载
最近






























