查看完整案例


收藏

下载
这座奇特而现代的建筑坐落在风景优美的保护区的脚下,这条小径通向韩国首尔北部的一座山-布坎桑,位于韩国容尼诺(Jongno)地区。它是由当地的Poly.m.ur工作室设计的,要记住,它将是一个既适合建筑师又适合他儿子的年轻家庭的家。
他们的主人希望有机会欣赏景观的美景,但由于当地条件的限制,只能建造一栋最高8米高的两层房子。
寻找一些方法给建筑的高度,它的内部设计的高双天花板,他们仍然可以得到他们想要的。
建筑,美妙的外景,有波纹的石头墙,似乎滑掉在地上,给它一个雄伟的外观。
茂密植被间结构的廊景视图
我们推荐这些项目IDMM建筑设计师事务所在韩国洪川的当代务虚会,韩国建筑之家翻修一座位于韩国蔚山的建筑
现代建筑廊道鸟瞰图
在画廊观看建筑细节
旁听边景,设有露台和停车场。
画廊中的视图
透过花园在画廊看到房子的景色
画廊中的视图
在建筑通道的画廊详细信息中查看
在顶层有一个平台,我们可以在那里和平地欣赏风景。
在画廊露台上可以看到硬木地板
廊内混凝土室外楼梯景观
廊内混凝土室外楼梯景观
它的内部,无可争辩的优雅,广阔的空间沐浴在透过玻璃的窗户和墙壁或软奶油渗透的自然光,创造了一个完美的结合,与美丽的地板精美的木材。
画廊内有宽敞的内饰和硬木地板。
画廊内有木地板和奶油墙的景观
画廊内有木地板和奶油墙的景观
它宽敞的内部楼梯,优雅的地板,和木制栏杆引导我们从一个水平到另一个水平通过照明空间。
有木栏杆的画廊楼梯
画廊中的视图
画廊内可欣赏到宽敞的房间,内有浴室。
从外部观看画廊夜景
画廊的外观夜景
画廊中的视图
画廊中的视图
画廊中的视图
画廊中的视图
画廊中的视图
画廊中的视图
画廊中的视图
画廊中的视图
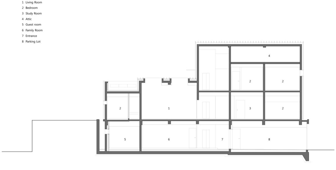
keywords:Bathroom Bedroom Concrete Walls Contemporary Interior Design Decorative Accessory Floor Plans Glass Walls Hall and Entrance Landscaping Lighting Living Room Skylights Staircase Terrace Wood Floors
关键词:浴室、卧室、混凝土墙、现代室内设计、装饰附件、平面图、玻璃墙、大厅和入口景观、照明、客厅、天窗、楼梯、露台、木地板。
客服
消息
收藏
下载
最近





























