查看完整案例


收藏

下载
架构师提供的文本描述。日本西三十码头总部大楼建于冈山县千喜市,是一家在日本各地经营餐饮设施的公司的主要办公大楼。这座大楼的场地包括行政办公场所和开发新菜单的厨房,以及作为试验厨房的各分店厨师的练习场所。
Text description provided by the architects. The PIER THIRTY Group's Western Japan HQ building, built in Kurashiki City in Okayama Prefecture, is a main office building of a company which runs eating/drinking establishments all over Japan. The venue of this building comprises the office space for administrative work and the kitchen for development of new menus as well as for practice by chefs from its each branch as test kitchen.
© Nacasa & Partners inc.
© Nacasa
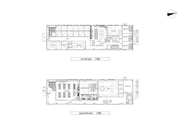
Floor Plans
平面图
© Nacasa & Partners inc.
© Nacasa
外立面由铝制而成,在面板内贴上发光二极管以发出光线。木制百叶窗的作用是在楼梯内部,从玻璃开口产生阴影。
The façade is comprised of aluminum with LEDs affixed within the panels to give off light. The wooden louvers serve to create shade within the staircase on the inside stemming from the glass openings.
© Nacasa & Partners inc.
© Nacasa
测试厨房构成了建筑的核心概念,它包含了一个以测试厨房为特征的方案,该厨房周围是玻璃,从入口可以看到。随着厨房柜台的安装沿走廊,人们会发现,味觉测试角落也安装了。连接到二楼的楼梯被设计成由木百叶窗环绕而成的轮廓。4种类型的木制百叶窗的形成带来了改变的光在外部照明。原来的吊灯采用的设计特点是在楼梯上部有带肋的日本纸。一个吊灯使用日本纸提供了一个软光源的空间。二楼由个别办公室和会议室组成。这一空间不是以行政办公概念为基础的;相反,它构成了一座办公大楼,其中包括主要用木制材料建造的饮食场所商业空间中使用的设计要素。
The test kitchen makes up the central concept of the building, which entails a plan characterized by a test kitchen that’s surrounded by glass and is visible from the entranceway. With kitchen counters installed along the hallways sides, one will find taste testing corners installed as well. The staircase connected to the second floor has been designed to present a silhouette resulting from of wooden louvers being wrapped around it. 4 types of wooden louver formations bring about changes in how light shines externally. An original pendant light employs a design characterized by ribbed Japanese paper on the upper part of the staircase. A pendant light using Japanese paper provides a soft light source for the space. The second floor is comprised of individual offices and meeting rooms. This space is not based on an administrative office concept; rather, it makes for an office building comprising space that encompasses design elements used in the commercial spaces of eating/drinking establishments built primarily with wooden materials.
© Nacasa & Partners inc.
© Nacasa
Architects Yoshihiro Kato Atelier
Location Kurashiki, Okayama Prefecture, Japan
Category Institutional Buildings
Architect in Charge Yoshihiro Kato
Area 443.81 m2
Project Year 2016
Manufacturers Loading...
客服
消息
收藏
下载
最近



















