查看完整案例


收藏

下载
© Hufton + Crow
赫夫顿乌鸦
© Hufton + Crow
赫夫顿乌鸦
© Hufton + Crow
赫夫顿乌鸦
© Hufton + Crow
赫夫顿乌鸦
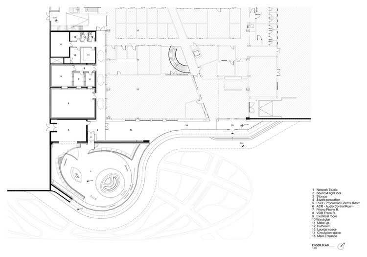
半岛电视台阿拉伯语新闻编辑室,这个开创性的混合空间包括一个广播演播室和制作工作场所画廊,提供出口到网站的其他部分。这个1100平方米的工作室包含三个独立的单元,毗邻开放的规划区域,有100个工作站的空间。该架构包含三维沉浸式图形和响应LED表面,重新配置照明水平和颜色色调,因为新的片段被广播。其他技术捕获在新闻收集过程中收集的上下文元数据,并将其与屏幕上的图形和视频剪辑同步,并集成到主要的35m视频墙安装中。
Al Jazeera Arabic Newsroom This ground-breaking hybrid space comprises a broadcast studio and production workplace galleries that provide egress to other parts of the site. The 1,100m² studio contains three individual sets adjacent to open-plan areas with space for 100 workstations. The architecture contains 3D immersive graphics and responsive LED surfaces that reconfigure lighting levels and colour tones as new segments are broadcast. Other technologies capture contextual metadata collected during newsgathering and synchronise it with on-screen graphics and video clips integrated into the main 35m video wall installation.
© Hufton + Crow
赫夫顿乌鸦
这些项目为建筑、演播室设计、广播媒体和数字技术如何使制作和分发更快、反应更快和效率更高提供了一个引人注目的新愿景。
These projects provide a compelling new vision for how architecture, studio design, broadcast media and digital technologies can make production and distribution faster, responsive and more efficient.
© Hufton + Crow
赫夫顿乌鸦
由Veech X Veech在多哈的Al Jazeera Studio 14获得了今年的“国际”奖。广播行业最重要的行业平台-纽卡斯尔演播室颁发的“年度最佳景观奖”,是对广播电视最佳风景设计的嘉奖。
SET OF THE YEAR AWARD The Al Jazeera Studio 14 in Doha by Veech X Veech won this year’s Set of the Year Award in the “International” category. The Set of the Year Awards, conferred by NewcastStudio, the most important trade platform for the broadcasting industry, honor the best scenic designs in broadcast television.
© Hufton + Crow
赫夫顿乌鸦
Floor plan
© Hufton + Crow
赫夫顿乌鸦
Architects Veech X Veech
Location Doha, Qatar
Category Institutional Buildings
Area 1650.0 m2
Project Year 2016
客服
消息
收藏
下载
最近




































