查看完整案例


收藏

下载
统一-卡弗韩国实验室。:获得“身份”在城市角。
统一是韩国化妆品公司Carver Korea的总部和研究中心。卡佛韩国公司想要做出一个出色的建筑设计,以显示公司最近的发展。
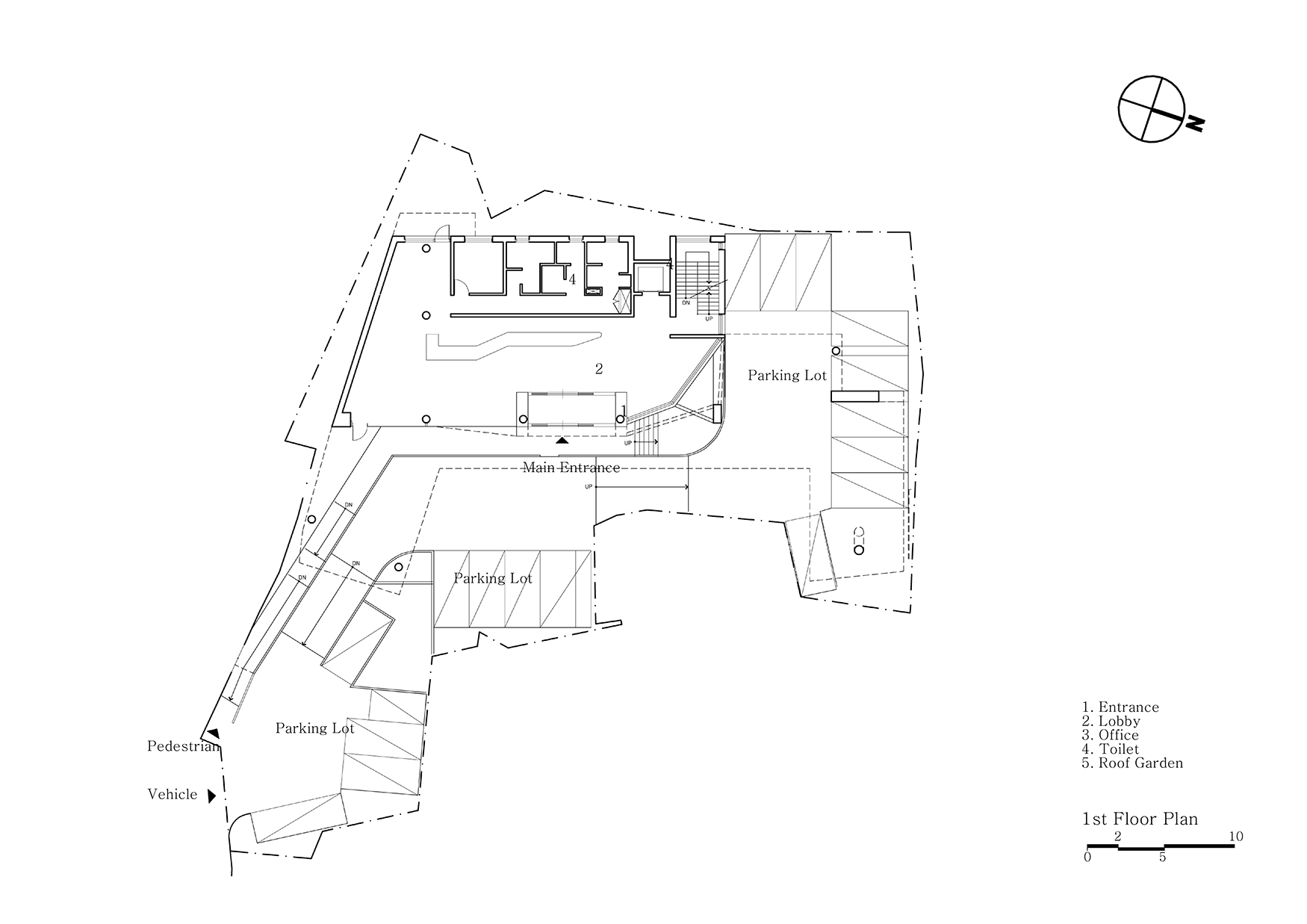
然而,位于首尔老城区之一的Mapo的遗址条件,使得设计出一座在城市风光中独树一帜的建筑变得困难。关于该地点的物理环境,明显不规则的场地位于由普通社区生活设施组成的建筑物后面。简单地说,这个地点在周围几乎看不到,特别是从城市的主要街道。此外,由于法律上的限制,建筑物只能建在场地的一小部分,地面必须规划停车场。因此,如何使建筑物在这些限制范围内有一个突出的形象,对我们来说是至关重要的。
在项目开始阶段,我们采取了“统一”的建筑策略,通过形成与周边城市景观相区别的独特形状,获得了建筑的“同一性”。根据法律条件所能确定的体积,对其进行调整,从街道的特定点产生视觉上的独特场景。随着建筑形式的改变,我们可以为每一层楼提供独立的外部空间,以反映研究中心的特点,这一点非常重要,必须与其他层一起自主。此外,它的目的是将无法在地面提供的绿地改为屋顶花园。
在材料方面,我们采用松木板暴露混凝土作为整体材料,可以显示建筑物的骨架。在某些方面,显示混凝土的未被覆盖的表面可以在揭示没有化妆的人类皮肤的相同上下文中被理解。另一种策略是塑造体现韩国特色的建筑,主要是开发美容产品,改善皮肤的本质。
从长远来看,形态特征和空间的统一性将成为一种媒介,通过给面对普通城市风景的人们提供视觉刺激来获得卡佛韩国的身份。
Firm D Werker Architects
Type Commercial › Office
STATUS Built
YEAR 2017
BUDGET Unknown
keywordsarchitecture, architecture news, interiors, interior design, portfolio, spec, brands, marketplace, products Unicity
关键词建筑、建筑新闻、室内设计、组合、规格、品牌、市场、产品统一性
客服
消息
收藏
下载
最近

























