查看完整案例


收藏

下载
© Alejandro Gómez Vives
(Alejandro Gómez Vives)
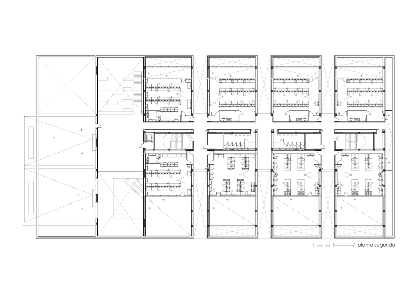
架构师提供的文本描述。新教学楼“Arenals”的建造满足了Elche的Miguel Hernández大学校园对教育空间的需求。这是一座8,671平方米的多用途建筑,三层楼有一个广泛的项目。底层是比较普通和公用的集中空间,如餐厅、礼堂、计算机和多用途房间。一楼有教学室,九间大教室,可容纳220人。所有这些教室都有一个预制的交错系统来安排桌子。二楼是教学实验室。
Text description provided by the architects. The construction of the new teaching block "Arenals" responds to the demand for educational spaces requiring by the Miguel Hernández University Campus of Elche. This is a multipurpose building of 8,671 m², with an extensive program spread over three floors. On the ground floor are concentrated spaces of more general and public use, such as the cafeteria, auditorium, computer and multi-purpose rooms. On the first floor are located the teaching rooms, nine large classrooms with capacity up to 220 people. All these classrooms have a prefabricated staggered system for the arrangement of the tables. On the second floor are located the teaching laboratories.
© Alejandro Gómez Vives
(Alejandro Gómez Vives)
Ground floor plan
© Alejandro Gómez Vives
(Alejandro Gómez Vives)
根据大学的规划,这座建筑的尺寸应该是90x40米。为了避免产生很大的体积,决定将第一层和第二层的封闭体积提高到一个自由和凹进的底层。
According to the University planning, the building should have a dimension of 90x40 meters. To try not to generate a very heavy volume, it was decided to raise the closed volume of first and second floor over a free and recessed ground floor.
© Alejandro Gómez Vives
(Alejandro Gómez Vives)
建筑的重要性应该与外层空间结合起来,这样我们才能把它们在校园内的影响降到最低。我们选择了一个预制系统的轻混凝土外观GRC钉-框架。通过该方案的正面和预制石膏板内墙,我们有适当的方法,以满足所有的热和声学要求。GRC的颜色和质地是由建筑物的落脚点决定的,土黄色和花园的颜色混合在一起,再加上混凝土衬里的人行道的粗糙。
The materiality of the building should be integrated with outer space, so we'd get minimize their impact within the Campus. We chose to use a prefabricated system of lightweight concrete facade GRC Stud-frame. With this solution for facades and a prefabricated plasterboard interior wall, we had the proper methods to satisfy all thermal and acoustic requirements. The color and texture of the GRC are given by the land where the building is settled, a mix between earth and the ochre colors of the gardens, combined with the roughness of concrete lined footpaths sits.
© Alejandro Gómez Vives
(Alejandro Gómez Vives)
Architects grupotec
Location Avinguda de la Universitat d'Elx, s/n, 03202 Elx, Alicante, Spain
Category University
Area 8680.0 m2
Project Year 2015
Photographs Alejandro Gómez Vives
Manufacturers Loading...
客服
消息
收藏
下载
最近


































