查看完整案例


收藏

下载
建筑设计:Emilio Magnone, Marcos Guiponi 地点:乌拉圭 主持建筑师:Emilio Magnone, Marcos Guiponi 建筑面积:1400㎡
照片版权:Marcos Guiponi
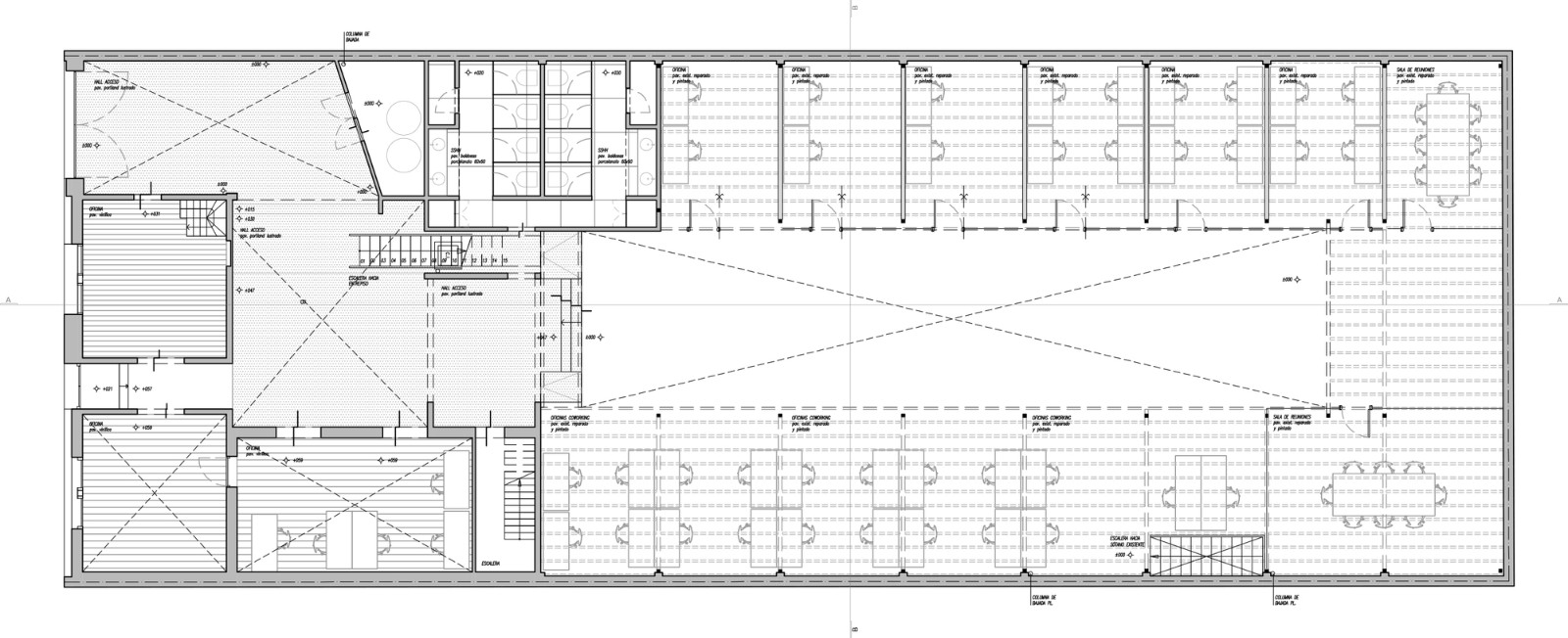
Sinergia Cowork起初作为一个房地产开发项目,有32个办公室和4个租赁会议室。只是在原来的工作地增加了木工厂、机械车间、电影制片厂和仓库。
办公充当着“合作空间”---这是现代办公室的最新概念。用户可以置身混合的合作环境,来增强它的工作以及社交技能。
该项目通过使用完全可移动的轻质结构---金属梁和结构绝缘板墙,并通过使用中性调色板(白色和浅灰色)---其中唯一的颜色由同事挑选,与植被和家具相称,以此来保持现有建筑的美学效果。
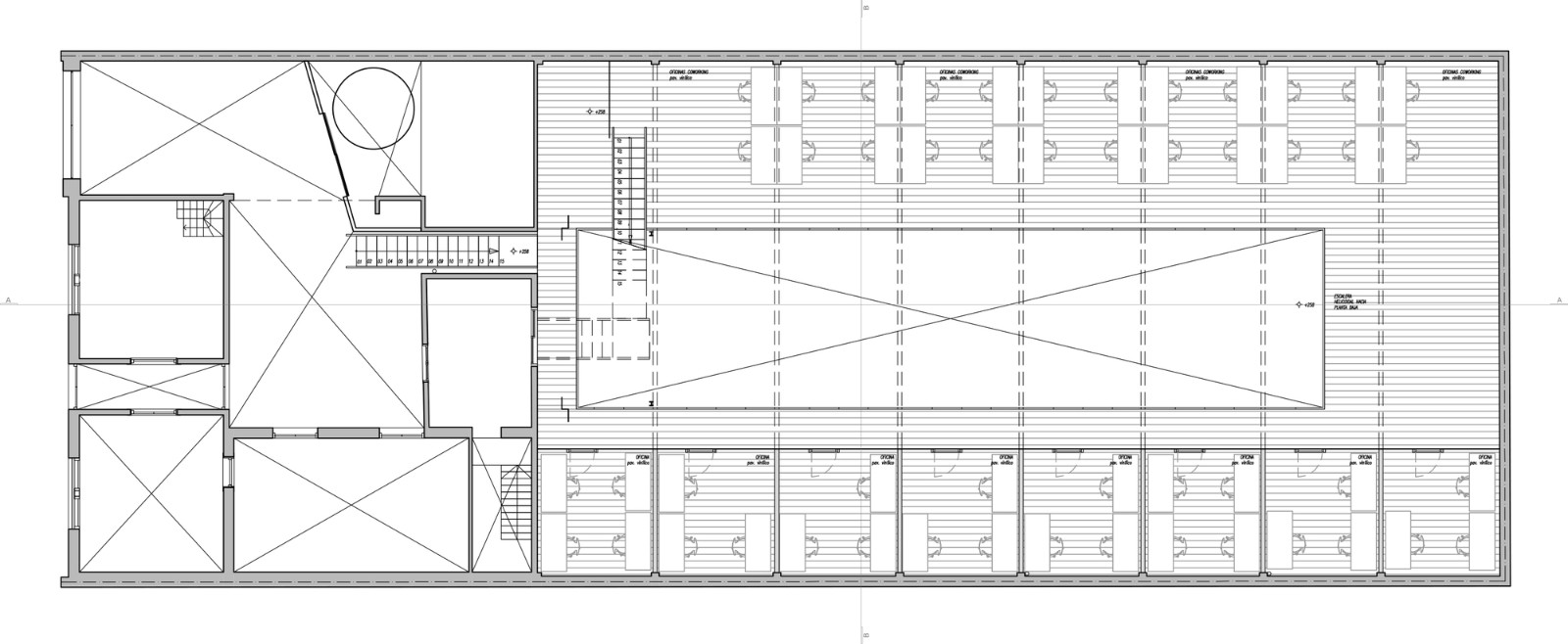
建筑的主入口是车库门,那儿醒目地印着公司的标志。一楼有个中央庭院,将办公室与合作空间及会议室连接起来。上层分布着小办公室、一个3d打印车间、灵活的合作空间、客厅和摄影工作室。
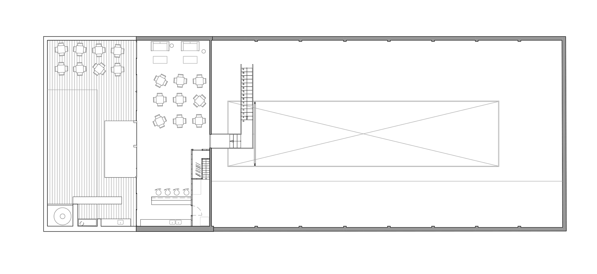
现存的地下室,建于20世纪初。用砖和石头砌成拱顶和墙壁,现在成了休闲室。里面有游戏室、餐厅、厨房和一个巨型屏幕。
通过原来的木桁架到屋顶上,你能看到一个带有室外甲板的活动室,这里是供同事在周末聊天放松的地方。
办公空间 现代 联合办公 MarcosGuiponi
客服
消息
收藏
下载
最近




















