查看完整案例


收藏

下载
© Tomaz Gregoric
托马兹·格雷戈里
架构师提供的文本描述。Villa位于斯洛文尼亚卢布尔雅那市中心的Trnovo。这是一座现存的小房子的翻新工程,可追溯到1934年。老房子是由建筑师埃米尔纳文塞克,著名的创新空间概念的学校非走廊计划。他为他的两个未婚的老姐妹设计了他的住所旁边的房子,他们住在一起,面积很小,每层只有50平方米。这座房子所处的街道大多建于60年代和70年代,典型的一个家庭住宅是由白色灰泥渲染和暗木覆盖而成的。
Text description provided by the architects. The Villa is located in Trnovo within the city center of Ljubljana, Slovenia. It is renovation of a small existing house dating from 1934. Old house was designed by architect Emil Navinsek, known for inovation space concepts of a school non-corridor plan. He designed the house next to his residence for his two unmarried eldery sisters who lived together in a small surface of only 50m2 per floor. The street where the house is situated was mostly built in the 60s and 70s with typical one family residential houses made in combination of white plaster render and dark wood cladding.
© Tomaz Gregoric
托马兹·格雷戈里
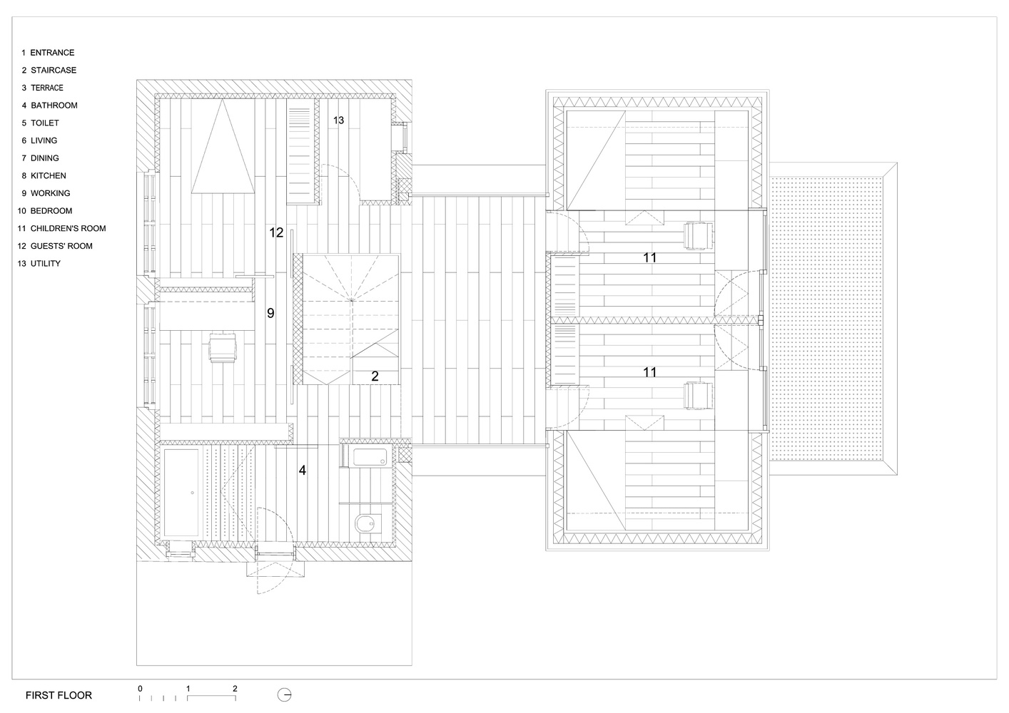
延伸在每一层的新旧部分之间形成了不同的交汇点.是由3个立方体卷组成,每一个在一个鞋盒的比例,就像现有的房子布局。箱子堆放着90度的移位,形成了悬垂和露台。在街道建筑的背景下,这些体积都是黑色的木材-云杉垂直格子。该结构由混凝土基层、金属框架和木结构组合而成。新零件的内部大部分是由墙壁包覆而成,创造了完整的衣柜和墙壁。
The extension is creating different intersection between old and new part on each floor ... is composed of 3 cube volumes, each in a proportion of a shoe-box like existing house floorplan. Boxes are stacked with 90 degrees shifts creating overhangs and terraces. The volumes are claded in dark wood – spruce vertical lattice - in the context of the street architecture. The structure is combination of a concrete base, metal frames and wooden substructure. Interior of the new part is formed mostly by wall cladding creating integrated wardrobes and walls.
Existing house plans
现有房屋图则
© Tomaz Gregoric
托马兹·格雷戈里
© Tomaz Gregoric
托马兹·格雷戈里
老房子只是简单地翻新,保留所有现有的纹理和材料。老房子的内部和新的延伸以不同的方式连接在一起-新的延伸穿过旧的墙壁,形成相关的设施:一楼作为一个起居室,一楼有孩子的房间和客房,顶层有主卧室和生活。
The old house is simply renovated keeping all the existing textures and materials. Interior of an old house and new extension are connected in different ways – new extension perforates through the old walls creating associated facilities: groundfloor as a living area, first floor with kids rooms and guest room, top floor with master bedroom and living.
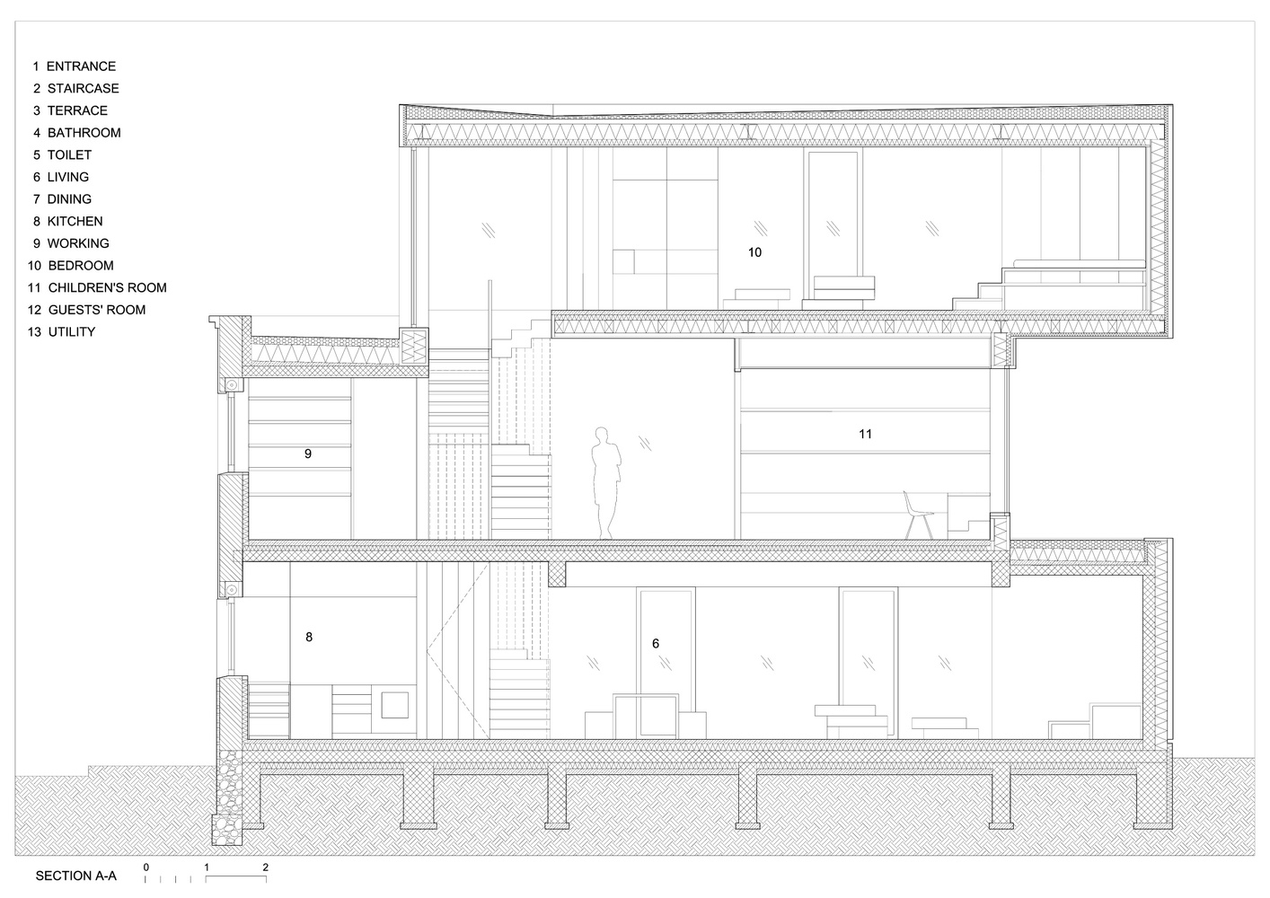
Section B-B
B-B节
房子的心脏-体积的交汇点和新旧的连接器是一个楼梯连接在一个主要的垂直混凝土墙。在阿道夫·卢斯的启发下,室内建筑形成了高架的露台、壁龛、衣柜、小休息区,并部分延伸到了房子现有部分的小空间,在每一层都形成了私人起居区。
The heart of the house – intersection of volumes and connector of old and new is a staircase attached to a main vertical concrete wall. Inspired by Adolf Loos interiors forms elevated podiums, niches, wardrobes, small sitting areas and is partly extended into small spaces in the existing part of the house creating private living areas on each floor.
© Tomaz Gregoric
托马兹·格雷戈里
Architects OFIS Architects
Location Ljubljana, Slovenia
Category Renovation
Area 228.0 m2
Project Year 2017
Photographs Tomaz Gregoric
Manufacturers Loading...
客服
消息
收藏
下载
最近
















































