查看完整案例


收藏

下载
Courtesy of concrete
混凝土
架构师提供的文本描述。在旺角熙熙攘攘的街道上,香港混凝土为所有的天空公园大厦的居民创造了一个欢迎的会馆。
Text description provided by the architects. Within the bustling streets of Mongkok, Hong Kong concrete created a welcoming clubhouse for all residents of the Skypark tower.
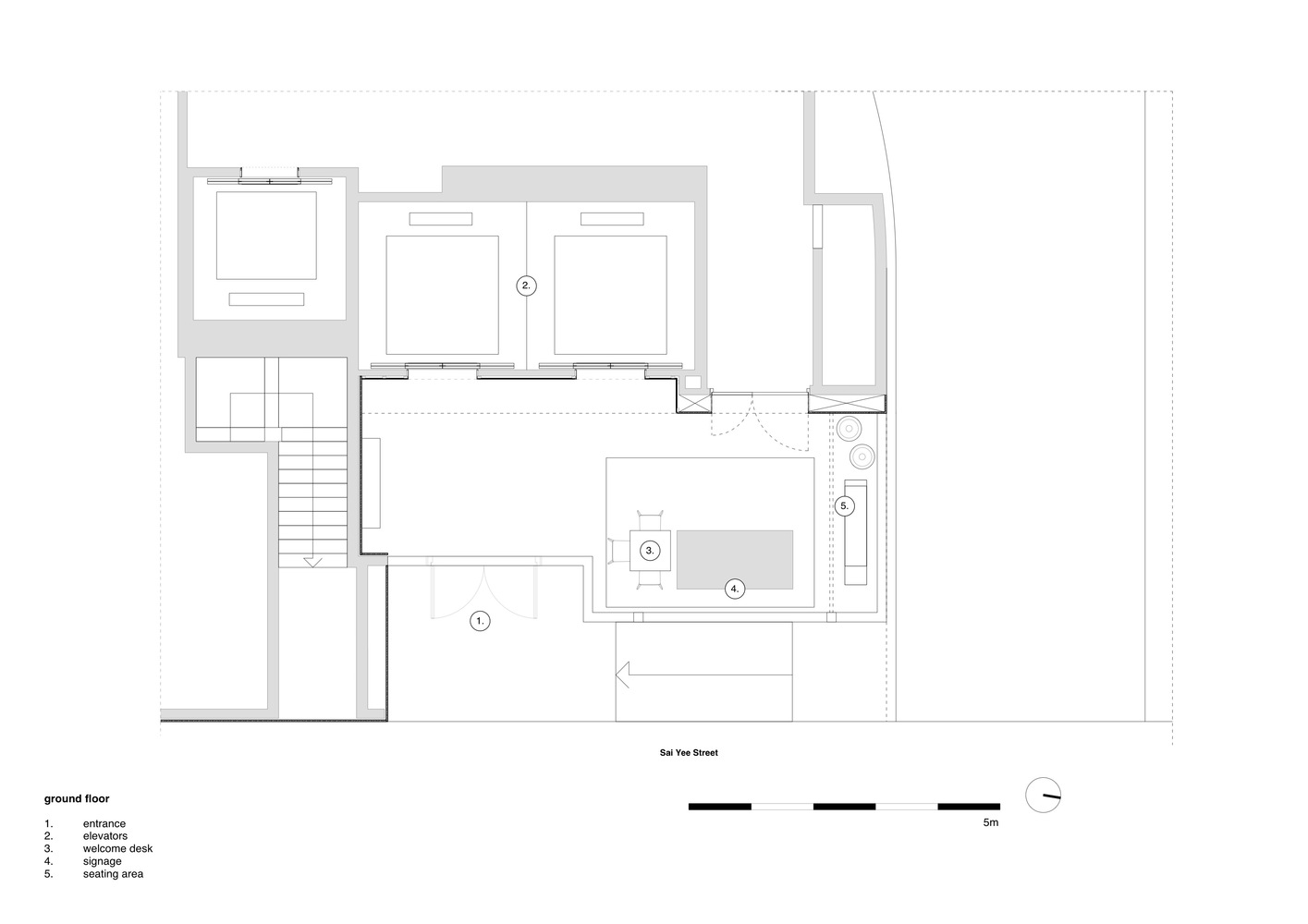
Third Floor Plan
三层平面图
SkyPark是一项大型住宅发展项目,由香港新世界发展有限公司(New World Development)牵头,由郑德良领导。在香港最密集的地区之一,这座塔适合在一个生机勃勃的社区里享受生活的人们。然而,SkyPark也提供了逃离城市的机会,它的公共会所和外面的公园位于大楼的最顶端。
Skypark is a large residential development by Hong Kong based New World Development, led by Mr Adrian Cheng. Within one of the densest areas of Hong Kong the tower is suited to people that enjoy life in a lively and vibrant neighborhood. However, Skypark also provides an escape from the city with its communal clubhouse and outside park on the very top of the building.
Courtesy of concrete
混凝土
混凝土设计了从街道入口到换乘礼宾层和顶层会所的所有居住区公共区域的建筑和内部。
Concrete has designed the architecture and interior of all residential public areas from the street entrance to the transfer concierge floor and top floor clubhouse.
Clubhouse Floor Plan
会所楼面图则
在旺角拥挤狭窄的街道上,空间有限,人与人撞在一起,混凝土为居民创造了一个逃离混乱,让人们真正连接的地方。几乎从字面上说,通过“打破墙壁”的一般会馆,一个开放和可改变的公共空间被创造出来。这创造了一个机会,重新设计一个居民的本质-俱乐部在这个密集和国际化的城市。
Inspired by the crowded and narrow streets of Mongkok, where space is limited and people bump into each other, concrete created a place for residents to escape the chaos and for people to truly connect. Almost literally, by “breaking down the walls” of a generic clubhouse, an open and transformable public space was made. This created an opportunity to redesign the essence of a residents-clubhouse within this dense and cosmopolitan city.
Courtesy of concrete
混凝土
通过与P密切合作
By working closely with P&T architects and landscape architects ALN, Concrete was able to make an integrated design that captures the “in-between spaces” and creates an architecture where interior and landscape designs merge.
Courtesy of concrete
混凝土
会馆由不同的功能区组成。厨房、图书馆和酒吧与健身房、游泳池和艺术画廊齐聚一堂。
The clubhouse consists of different function areas. Kitchen, library and bar sit together with a gym, swimming pool and art gallery.
Courtesy of concrete
混凝土
一个很大的外部楼梯连接俱乐部的地板和建筑顶部的景观公园,还有野餐和烧烤区。
A large outside staircase connects the clubhouse floor with the landscaped park on top of the building complete with picnic and bbq areas.
Courtesy of concrete
混凝土
楼梯,在那里花园下降,客厅爬上,成为一个室外电影院在周五晚上,或一个地方享受天空中的星星,并秘密亲吻你的女朋友…。
The staircase, where the gardens drop down and the living rooms climb up, becomes an outdoor cinema on Friday nights, or a place to enjoy the stars in the sky and secretly kiss your girlfriend...
Courtesy of concrete
混凝土
ARCHITECTURE
开放式平面图由四个平方空间组成,包括楼梯、电梯、结构、MEP、卫生间、储藏室、酒吧和厨房设备等所有必需品。这些街区与石灰华和突出天花板到美化屋顶。通过对角定位,中间的空间让位给不同的区域和功能室。这些空间保持透明和开放,有几个玻璃隔板和滑动门。这就产生了令人惊讶的空间,人们可以在每个角落找到最好的风景,以城市为背景的壮观景色。
The open floorplan is made by four squared volumes that house all the necessities like staircases, elevators, structure, MEP, restrooms, storage and bar and kitchen equipment. These blocks are cladded with travertine and protrude the ceiling into the landscaped roof. By positioning them diagonally the in-between space gives place to the different areas and function rooms. These spaces are kept transparent and open, with a few glass partitions and sliding doors. This results in surprising spaces, where one can find the best views in every corner with the spectacular view towards the city as your background.
Courtesy of concrete
混凝土
Architects concrete
Location 17 Nelson St, Mong Kok, Hong Kong
Category Housing
Design Architects concrete i.c.w. P&T architects & engineers Ltd.
Area 687.0 m2
Project Year 2017
Manufacturers Loading...
客服
消息
收藏
下载
最近


















