查看完整案例


收藏

下载
“构造是设计的主要元素,结构和材料代表着自身的本质和纯洁,结构是装饰的本质,美是未经磨光的材料的真谛”。
"The tectonic is used as the main element of design, the structure and materials speak for themselves to show their nature and purity, structure is the essence of ornamentation, beauty is in the truth of unpolished materials’’.
North-South Section
北南段
Casa Risco预计位于墨西哥城以南的Pedregal de San ngel。这个住宅区由路易斯·巴拉甘(Luis Barragán)设计,他是50年代参与这一项目的最杰出的建筑师和艺术家之一,该项目将墨西哥地区主义与建筑功能主义建筑相结合。
Casa Risco was projected in the Pedregal de San Ángel, south of Mexico City. This residential area designed by Luis Barragán, one of the most outstanding architects and artists who were involved in this project in the 50’s, the project combined Mexican regionalism with architectural functionalist architecture.
© Luis Gordoa
路易斯·戈多阿
和这个地区的第一批房屋一样,CasaRisco尊重场地的构造,并将其作为主要的设计元素之一。从挖掘中救出的石头在地基和明显的墙壁上被重新使用。天然石头美化了内部,因为它是遭受墨西哥城(西特尔火山喷发)这一自然现象的一部分。这就是为什么我们决定,该结构被脱去,并与装饰和材料,这些材料被保存在他们的自然状态,允许他们自己说话。
Like the first houses in this area Casa Risco respects the site tectonic and use it as one of the main design elements. The stone that was rescued from the excavation was reused in the foundations and apparent walls. The natural stone beautifies the interior, as it was part of the natural phenomenon that suffered this area of Mexico City (the eruption of the volcano Xitle). This is why it was decided that the structure was undressed and mimicked with finishes and materials that were preserved in their natural state, allowing them to speak for themselves.
© Luis Gordoa
路易斯·戈多阿
以其功能的简单事实回馈结构的美为目的,作为载体元素,结构可以从内部作为一种艺术和装饰来解读。因此,它扮演着结构建筑元素和艺术作品两种角色。表面上的混凝土结构墙讲述了建筑过程的故事;这样,它就变成了一种概念性的艺术。房间是人们交流思想和意识形态的交汇点;平行的大理石墙起着隐喻的作用,一张空白的画布等待着用户体现他们的想法。
With the purpose of giving back to the structure its beauty by the simple fact of its function, as the bearer element, the structure can be read from the interior as a piece of art and ornamentation. Therefore it plays two roles, as structural architectural element and as piece of art. The apparent concrete structural wall tells the story of the construction process; in this way it becomes a piece of conceptual art. The room is the meeting point of people, where thoughts and ideologies are exchanged; the marble wall that lies parallel plays the role of metaphor, in which a blank canvas awaits users embody their ideas.
© Luis Gordoa
路易斯·戈多阿
CasaRisco加强了人类的活动,因为每个房间都是指一个特定的活动;相比之下,它在与不同的空间和视觉层面玩耍时寻求振幅和连续性。客厅和餐厅,都保持着一种连续性的视觉,使人们能够从这些区域的任何一点看到花园,从而创造出一种振幅的感觉。通过使用可伸缩的玻璃窗,花园在餐厅和厨房都被整合在一起,使绿色成为两个空间的一部分,在内部和外部之间建立了一种连接。
Casa Risco strengthens human activities, since each room refers to a particular activity; in contrast it seeks amplitude and continuity when playing with different spatial and visual planes. The living room and the dining room, both maintain a vision of the continuity that allows to see the gardens from any point of these areas to create a feeling of amplitude. The garden is integrated in both the dining room and kitchen, through the use of retractable glass windows, allowing the green to integrate as part of both spaces, creating a connection between the interior and exterior.
© Luis Gordoa
路易斯·戈多阿
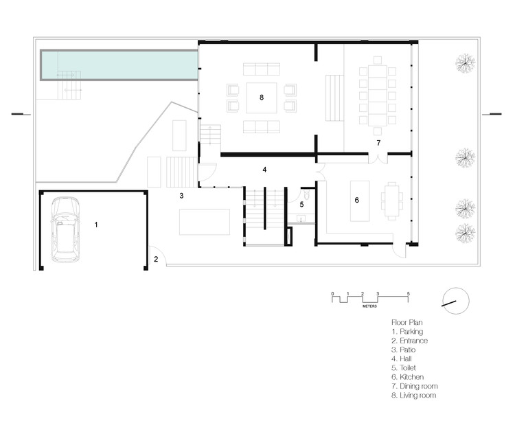
Ground Floor Plan
© Luis Gordoa
路易斯·戈多阿
立面是对光线、阴影的需求的反应,也是对房屋内部各空间热感的调节。例如,在卧室里,窗户的汇款提供了遮荫;而且,与底层相比,高度降低了,从而提供了更大的热舒适性。这是可以阅读所有不同的高度,在房子的正面楼梯。因此,立面作为房屋内部功能的图表。
The façade is the reaction to the needs of light, shade and regulation of the thermal sensation of each interior space of the house. For example in the bedrooms the remittance of the window provides shade; also the height decreases in comparison to the ground floor to providing greater thermal comfort. It is possible to read all the different heights used in the house on the façade of the stairs. Therefore the façade works as a diagram of the internal functions of the house.
© Luis Gordoa
路易斯·戈多阿
最初,该网站有一个3米高的天然斜坡,这允许提供亲密关系到水疗区内的房子,在那里一个健身房,桑拿,洞穴,膝池和花园创造了一个小绿洲在城市。同样地,自然地形的美丽也使火山石暴露在内部。
Originally the site had a natural slope of three meters height, this allows to provide intimacy to a spa area inside the house, where a gym, sauna, cava, lap pool and garden creates a small oasis in the City. In the same way the beauty of the natural terrain was kept leaving the volcanic stone exposed to the interior.
© Luis Gordoa
路易斯·戈多阿
Architects Estefanía Barrios & Silvana Barrios
Location Mexico City, Mexico
Category Houses
Area 600.0 m2
Project Year 2014
Photographs Luis Gordoa
Manufacturers Loading...
客服
消息
收藏
下载
最近


































