查看完整案例


收藏

下载
© Joshua White
乔舒亚·怀特
架构师提供的文本描述。IVRV住宅是南加州建筑研究所和人类生境研究所合作的结果。它代表了两个免费使命的融合;教育建筑师,他们将设想和塑造未来,并为所有人提供简单、体面、负担得起的住房。这套房子旨在从形式和内容上挑战可持续/可负担得起的住房的现状。学生设计和建造房屋,试图以一种意想不到的方式回答一个典型的住宅项目。合作始于2014年9月在SCI-ARC的一家工作室。通过一种竞赛过程,从16个学生项目中筛选出IVRV设计。这名学生设计、开发和建造了由教员达林·约翰斯通领导的项目,并于2016年春季完成。
Text description provided by the architects. The IVRV house is the result of a collaboration between Southern California Institute of Architecture and Habitat for Humanity. It represents the mergence of two complimentary missions; to educate Architects who will imagine and shape the future and to provide simple, decent, affordable housing for all. The house is intended to challenge the status quo of sustainable / affordable housing in both form and content. The student designed and constructed house strives to answer a typical residential program in an unexpected way. The collaboration began with a studio at SCI-Arc in September of 2014. Through a kind of competition process the IVRV design was selected from a field of 16 student projects. The student designed, developed and constructed project, led by faculty member Darin Johnstone, was completed in the spring of 2016.
© Joshua White
乔舒亚·怀特
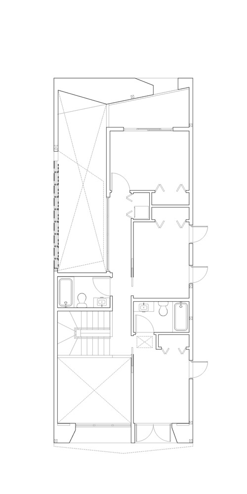
该网站位于洛杉矶南部,位于住宅周边的连锁围栏,以阻止犯罪。IVRV的主要功能概念是最大限度地保护宜居区域(内、外),同时保持hfHLA典型的单户住宅的面积。(3间卧室,2.5浴室,1200 S.F.)为了实现这一目标,这所房子将该地段的允许宽度作为一个两层高的门墙砌块,并从中“减去”了室外空间。传统的形式通过一系列的操作受到挑战,以使它的工作方式不同于传统的房子。南端(房子的后面)倾斜,以加厚墙壁,以增加绝缘,并为嵌入窗口提供遮阳。北端屋顶(房子的前部)被切割成一个阳台,卧室和入口庭院提供北顶照明。设计的独特性不仅仅是新颖性。它是通过过程来实现目的形式。
The site in South Los Angeles is in an area where chain link fences line the perimeter of homes to deter crime. The primary functional concept of IVRV was to maximize protected livable area (inside and out) while maintaining the square footage of HFHLA's typical single-family homes. (3 Bedroom, 2.5 Bath in 1200 s.f.) To achieve this, the house captured the allowable width of the lot as a two-story gabled block that outdoor spaces were ‘subtracted’ from. The traditional form was challenged through a series of operations to make it work differently than a conventional house. The south end (rear of the house) is tilted to thicken the wall for added insulation and to provide shading for the inset windows. The north end roof (front of the house) is cut to provide northern top light into a balcony, bedroom and entry courtyard. The resulting uniqueness of the design is not mere novelty. It is form following purpose through process.
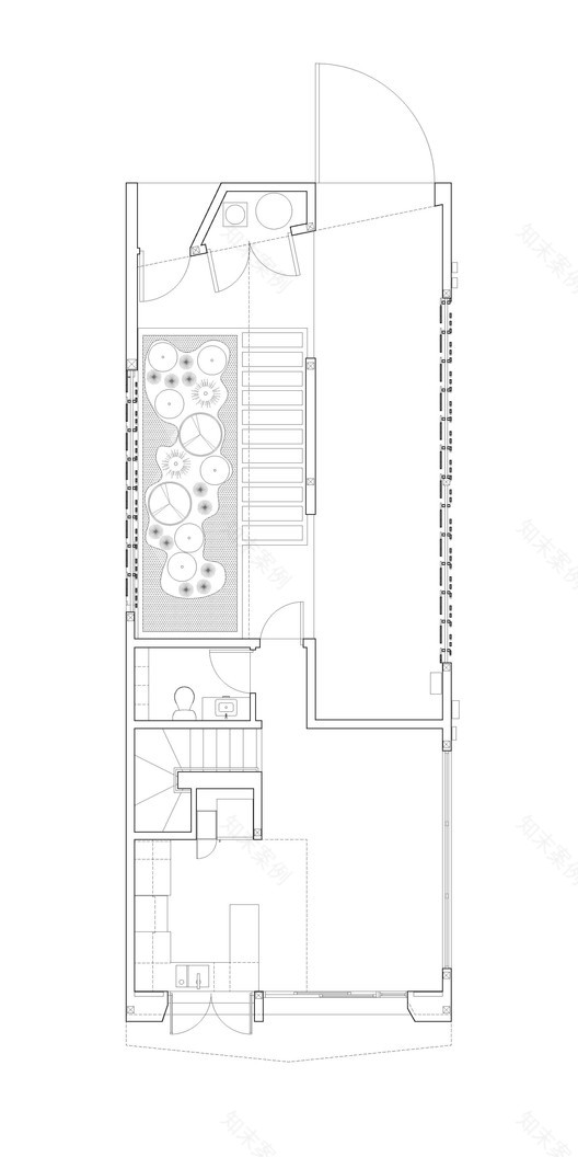
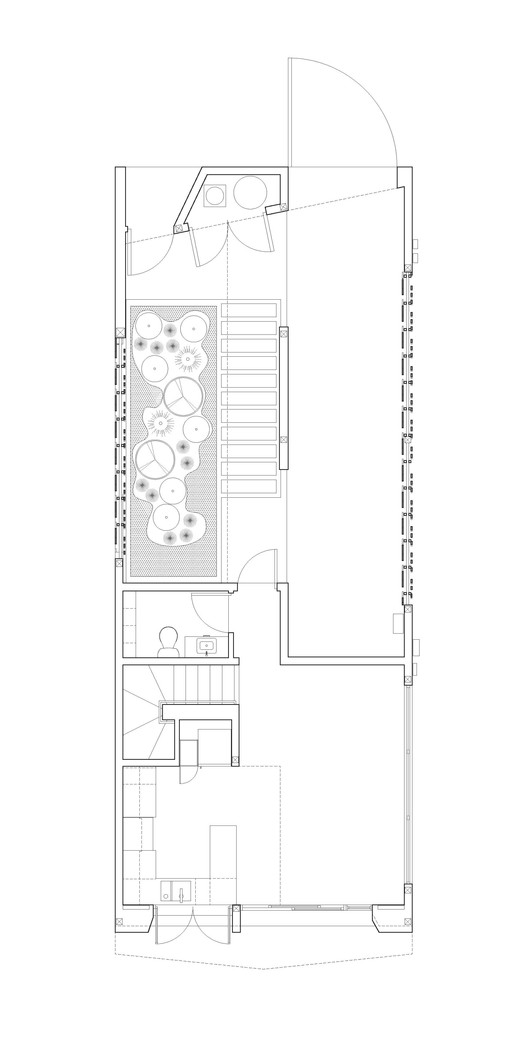
Gorund Floor Plan
猩猩平面图
在入口处,开发了一个多层的“生态屏幕”来包围花园空间,这是因为他们希望在房子的门廊范围内创造一个受保护的室外环境,这样家庭就能充分享受加州气候和生活方式的好处。该设计力求将可持续的特征综合成一个整体的美学;“生态屏幕”用一种新的格子保护进入法院,遮阳庭院,捕捉能量和清洁空气。
At the entry court, a multilayer ‘eco-screen’ was developed to enclose the garden space. This came from a desire to create a protected outdoor environment within the gabled volume of the house so the family could enjoy the full benefits of the California climate and lifestyle. The design strives to synthesize sustainable features into an overall aesthetic; The ‘eco-screens’ protect the entry court with a new kind of trellis that shades the courtyard, captures energy and cleans the air.
© Joshua White
乔舒亚·怀特
© Joshua White
乔舒亚·怀特
希望这个项目能以身作则,在城市中有所作为。这是一个很小的项目,体现了设计创新对于创造负担得起、可持续、安全和美丽的住房是必不可少的。根据“人类生境”的原则,“每个男人、妇女和儿童都应该有一个体面、安全和负担得起的居住地”。在想象未来,在SCI弧的学生开始思考超越体面的东西,也是令人愉快的,奇妙的和鼓舞人心的。
Hopefully the project can lead by example and make a difference in the city. It is one tiny project that embodies the idea that design innovation is imperative to creating housing that is affordable, sustainable, safe and beautiful. According to the principles of Habitat for Humanity ‘every man woman and child should have a decent, safe and affordable place to live’. In imagining the future the students at SCI Arc set out to think beyond decency to something that is also delightful, wondrous and inspiring.
© Joshua White
乔舒亚·怀特
Architects Habitat for Humanity Los Angeles, Darin Johnstone Architects
Location Westmont, United States
Category Houses
Design Team Deysi Blanco, Howard Chen, Sarah Mark
Area 1185.0 ft2
Project Year 2016
Photographs Joshua White
Manufacturers Loading...
客服
消息
收藏
下载
最近





































