查看完整案例


收藏

下载
© Boris Zeisser
鲍里斯·齐泽
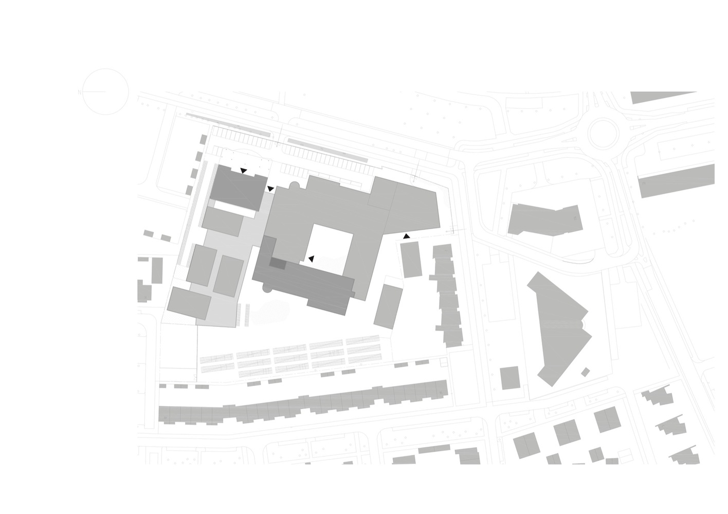
架构师提供的文本描述。在Markenhage学院的所在地,新校区Markenhage是通过现有的Markenhage学院实现的,这所学院被翻新并扩建,增加了技术教育的侧翼和两所新学校;新的Orion Lyceum和Michael学院是一所Waldorf学校。这三所学校共同组成了新的校园Markenhage。
Text description provided by the architects. At the site of the Markenhage college, the new Campus Markenhage is realized with the existing Markenhage college that got renovated and extended with an extra wing for technical education and two new schools; the new Orion Lyceum and the Michael college, a Waldorf school. Together the three schools form the new Campus Markenhage.
Markenhage是位于校园中央的一艘大型母舰,两边各有一艘新的两翼伙伴。这三所学校都有通往主街的立面和相连的公园,它们共同构成一个新的文化轴心,因为这三所学校的所有文化教学空间都在街道上彼此毗邻。
The Markenhage is the big mother ship in the middle of the campus with on each side one of the two new wing mates. All three schools have a façade to the main street and connected park, together they form a new cultural axis as all cultural teaching spaces of the three schools are located next to each other along the street.
© Boris Zeisser
鲍里斯·齐泽
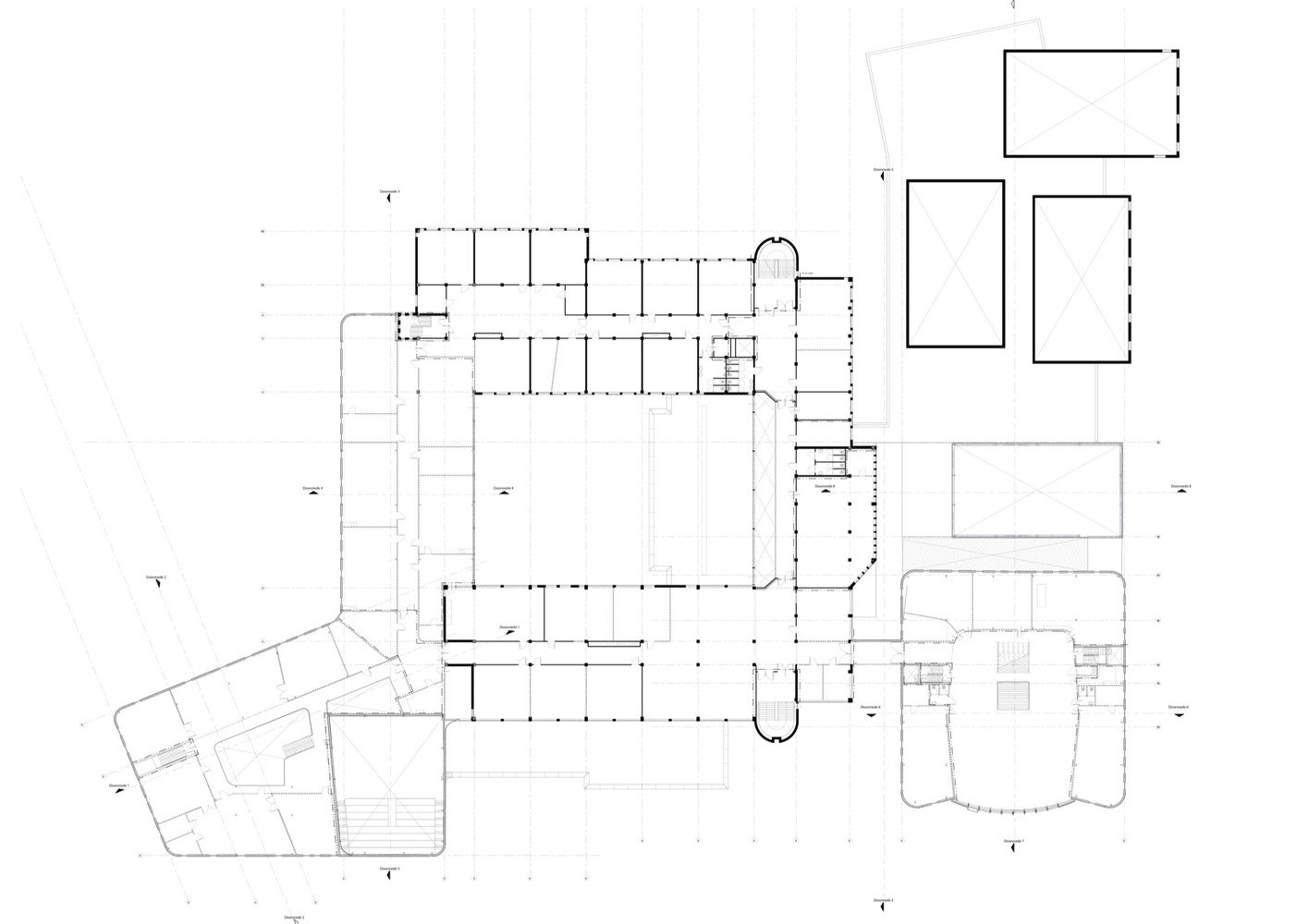
Markenhage学校已成为一个2层广场,中间有一个露台,增加了新翼,从而改善了现有建筑的循环,使1000名学生更容易找到自己的路。新的化学、物理和生物学教室为教授这些技术课提供了更多的可能性。
The Markenhage school has become a 2 level square with a patio in the middle by adding the new wing, with this the circulation of the existing building is improved so the 1000 students can find their way more easily. The new classrooms for Chemistry, Physics, and Biology provide more possibilities for teaching these technical classes.
为150名学生建造的新猎户座Lyceum位于Markenhage大楼的南面。这所学校的开放教育要求所有的教室相互连接。中央礼堂将两层连接起来,所有其他空间都围绕着礼堂,有不同程度的隐私。有些教室只能用竹棒隔开,有的则用玻璃墙或能完全打开的墙隔开。这样,所有的学生都尽可能多地联系在一起,但同时,如果有必要的话,他们会找到隐私。
The new Orion Lyceum for 150 students is located to the south of the Markenhage building. The open education of this school requires all classrooms to be connected to each other. The central Auditorium connects the two levels; all other spaces are placed around the Auditorium with different levels of privacy. Some classrooms are only disconnected by a screen of bamboo sticks, other with glass walls or walls that can be fully opened. In this way, all students are as much as possible connected together, but at the same time, they find privacy if necessary.
© Boris Zeisser
鲍里斯·齐泽
在Markenhage大楼的北侧,建造了新的Waldorf学校。350名学生将在中央礼堂周围的三层楼里找到自己的教室。以“头/心/手”为主题,所有的教室都布置好了。在一楼,“手放在”教室的位置就像木头和铜制的工作场所,包括一个外面的车间,还有一个新的健身房。用于语言、数学、历史和其他典型的集中教室的“头”教室都放在大楼的外面。围绕着中心核心,所有创造性的房间都被组织起来,如剧院、音乐、绘画和绘画。这些被称为“心脏”的房间。
At the northern side of the Markenhage building, the new Waldorf School is made. The 350 students will find their classrooms in a three story building around a central Auditorium. With the theme of Head/ Heart/Hands, all classrooms are placed. At the ground floor, the ‘Hands on’ classrooms are placed like wood and copper workplaces, including an outside workshop but also a new gym. The ‘Head’ classrooms for languages, math, history and other typical rooms for concentration are placed on the outside of the building. Around the center core, all creative rooms are organized like theater, music, painting, and drawing. These are known as the ‘Heart’ rooms.
© Boris Zeisser
鲍里斯·齐泽
从外部看,新旧建筑应该在视觉上共同成长。在现有的红砖和木窗框的基础上,在托盘(Jatoba和Louro Gamela)以及天然板岩和铝窗框中添加了两种不同的FSC木。
From the outside, the old and new buildings should grow together visually. With the existing red bricks and wooden window frames, two different kinds of FSC wood were added to the pallet (Jatoba and Louro Gamela) as well as natural slate and Aluminium window frames with a brown orange tone.
© Boris Zeisser
鲍里斯·齐泽
Architects Natrufied Architecture
Location Emerweg 29, 4814 NA Breda, The Netherlands
Category Extension
Area 5000.0 m2
Project Year 2017
Photographs Boris Zeisser
客服
消息
收藏
下载
最近















