查看完整案例

收藏

下载
现货是一家新的多品牌连锁高档服装店,目前位于塞尔维亚贝尔格莱德和诺维萨德的三个零售空间。
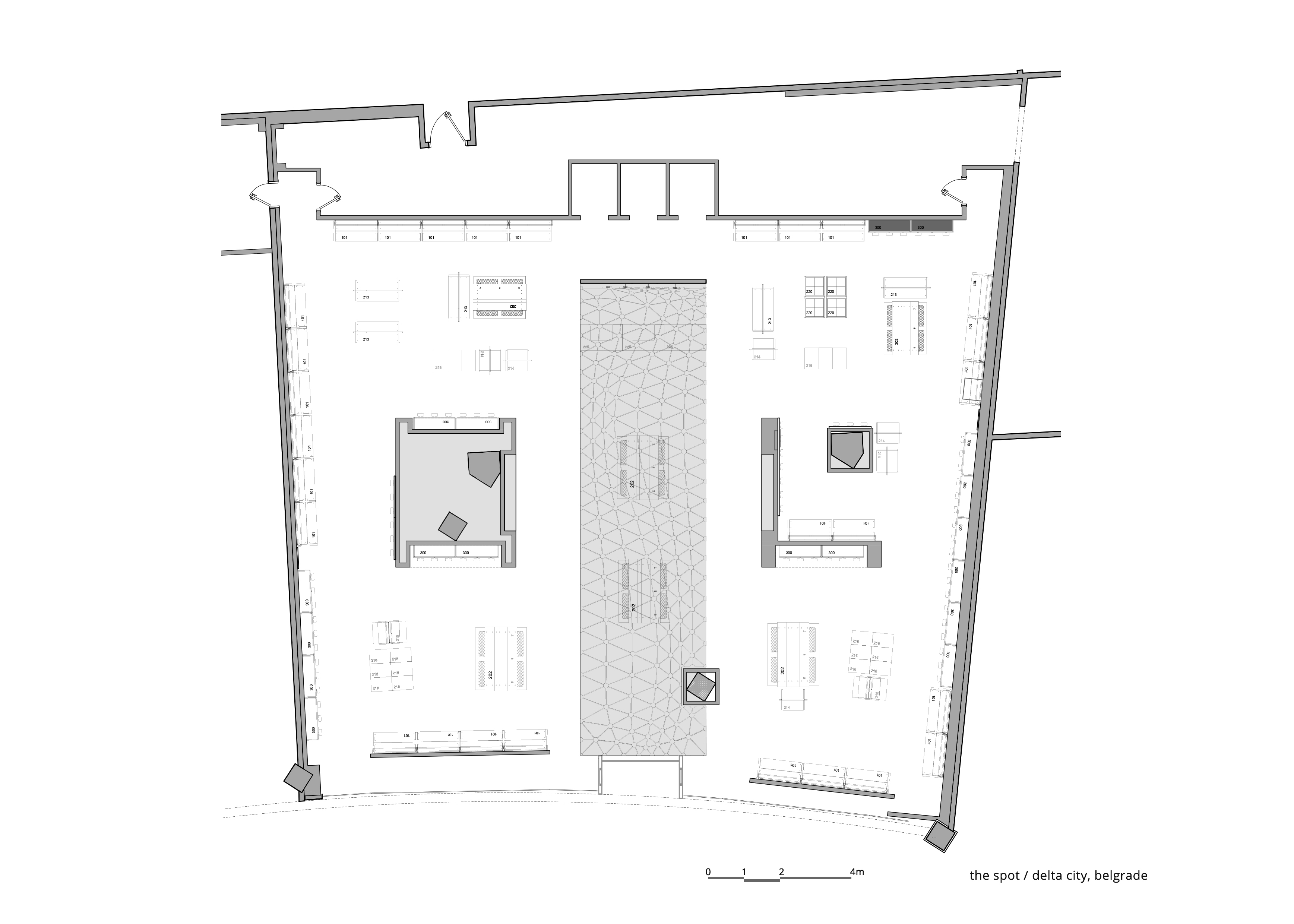
每个商店的入口区域都包含一个由三角形元素组成的“网络”结构。这种结构是一种几何形式,采用参数化建模和数字设计工具(数控加工)。设计基于两个关键词:动态和身份。根据空间的目的,形式与运动和运动有关。另一方面,这种结构在视觉上支配着空间,提供了身份和可识别性。
选择三角格式是因为它具有灵活性和对不同区域的适应性,同时又保留了概念和唯一性。因此,所选择的材料符合现货的溢价概念。高密度纤维板(HDF)与刷铜整理(高压层压板)被用来切割三角形,形成“有机”表面。反光的铜后饰结合背光强调现代、年轻的精神,也是优雅和永恒的价值。
项目组:
Modelart Arhitekti数字设计中心,技术科学系Novi Sad
设计和实现:
Bojan TepavčEvić博士,Dejan Mitov,Krsto Radovanović,Bojan Mitov,Jelena Mitov
与:ĐAK创意团队合作:
佩塔-布拉戈杰维ć-室内和家具设计师
Maja Sisojević-Architect
IgorKotarski-创意团队协调员
品牌和视觉传播:DNA通信
图片:Relja Ivanić
Firm Modelart Arhitekti
Type Commercial › Retail
STATUS Built
YEAR 2017
SIZE 1000 sqft - 3000 sqft
BUDGET $10K - 50K
keywordsarchitecture, architecture news, interiors, interior design, portfolio, spec, brands, marketplace, products The Spot
关键词建筑,建筑新闻,室内设计,组合,规格,品牌,市场,产品现场。
客服
消息
收藏
下载
最近



















