查看完整案例


收藏

下载
© Julien Lanoo
朱利安·拉诺
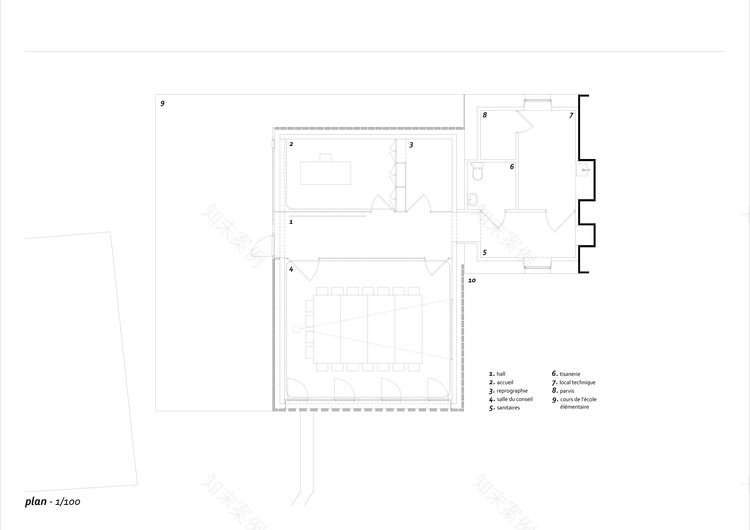
架构师提供的文本描述。泰坦已经完成了在Vendé地区Chaillé-sous-les-Ormeaux市政厅的扩建工作。新建筑的定义是一个简单的体积组成,同时保持其城市意义。设计的重点是规模、元素的精化及其与上下文的联系。拟议大楼的结构和外观都了解并尊重其方案和地点。扩建部分与公共大厅分开,向西开放,重新定义公共空间。这种间隙创造了与市政厅和市立学校大楼的视觉联系。
Text description provided by the architects. Titan has completed the extension of the Town Hall in Chaillé-sous-les-Ormeaux, in the region of the Vendée. The new building is defined by a simple composition of volumes while preserving its urban significance. The design focuses on scale, refinement of elements and its connections to the context. The structure and appearance of the proposed building are informed with an awareness and respect for its programme and location. The extension is detached from the communal hall and opens to the west and redefines the public space. This interstice creates a visual connection with the town hall and the municipal school block.
© Julien Lanoo
朱利安·拉诺
Facade Diagram
立面图
© Julien Lanoo
朱利安·拉诺
砖在当地生产,自然确立了自己作为项目的核心要素,使天然的材料质量赋予整体外观特征。这一想法因使用定制制造和实施而更加突出。这座建筑提供了高度的无源绝缘。该结构完全由混凝土制成,并包裹在一个穿孔的砖墙屏风中。与经济、生产和运输生态的关系也是该项目可持续性的决定性因素之一。
Produced locally, the brick naturally established itself as the core element of the project, allowing the natural material qualities to give character to the overall appearance. This idea is accentuated by the use of customized manufacturing and implementation. The building provides a high degree of passive insulation. The structure is entirely made of concrete and wrapped in a perforated brickwork screen. The relationship with the economy and the ecology of production and transportation was also one of the decisive factors for the sustainability of the project.
在婚姻殿堂和校园之间的南面,是砖皮上的一个奇点。为了提供亲密和不受阳光的保护,在墙的设计中引入了Mashrabiya的元素。砖的正面变成了陶土的铺路,轻轻地延伸到地面,创造了一个新的和旧的和谐的对比。
The south facade, between the marriage hall and the schoolyard, is a singular point in the brick skin. To provide intimacy and protection from the sun, elements of Mashrabiya were introduced in the design of the wall. The brick facade transforms into terracotta paving and gently extends towards the ground, creating a harmonious contrast between new and old.
© Julien Lanoo
朱利安·拉诺
该项目以诗意的方式反映了土地与建筑的象征重要性之间的关系,探讨了建筑如何将人与地结合在一起。
The project poetically reflects the relationship between land and the symbolic importance of the building, and explores the ways architecture weaves together people and place.
Architects Titan
Location Rue de la Mairie, 85310 Chaillé-sous-les-Ormeaux, France
Area 90.0 m2
Project Year 2016
Photographs Julien Lanoo
Category Extension
客服
消息
收藏
下载
最近


















