创作上传
VIP
收藏下载
登录 | 注册有礼
知末案例
/
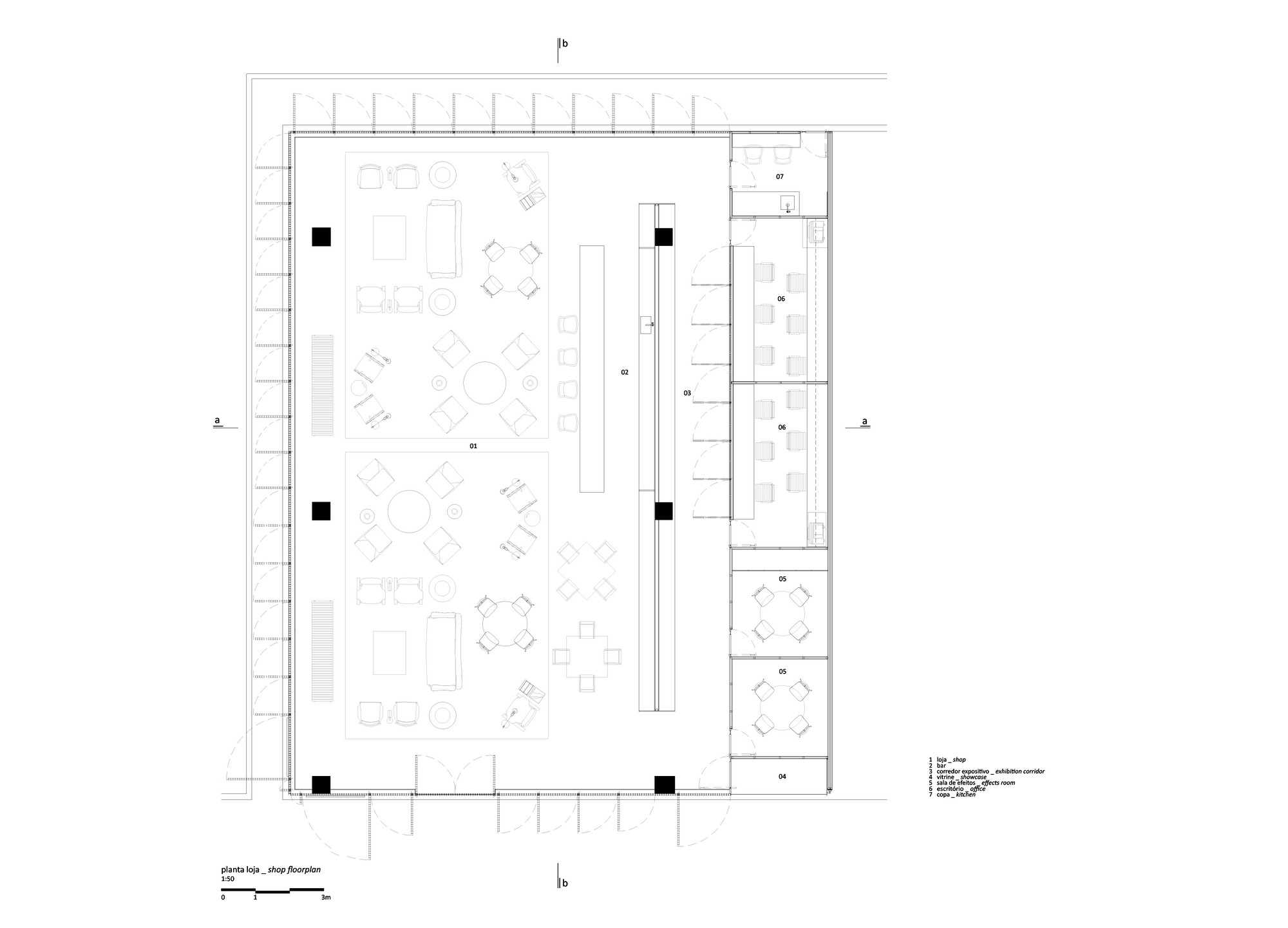
Studio MK27
Lumini力拓 里约热内卢州,巴西
2017/08/21 02:02:00
查看完整案例
微信扫一扫
收藏
下载
分享
你可能还喜欢
换一换
网红打卡地 Jackrabbit Wash | Aaron D'Innocenzo 的创意设计
贵州海龙囤遗址展厅
温尼伯无障碍雪橇滑道
巴西 Espaco 住宅 · 艺术家的绿色创意空间
Concetta D'Alessandro Foundation 公益康复中心
帕劳达里斯老年人之家
美国迈阿密 Canal 之家 · Studio MK27 的海景社交住宅
巴西 3V 住宅 | 混凝土与木质嵌板的和谐共生
奇异户型盘点,感受别样空间魅力
巴西 Ramp House 别墅
巴西豪宅艺术盛宴丨巴西圣保罗丨Sig Bergamin
帕斯夸之家丨巴西丨Studio MK27 Marcio Kogan
巴西 Catuçaba 可持续住宅设计丨Lair Reis,Studio MK27
巴西 Areia 度假别墅
沙屋
MK27 工作室的房子
弗朗塞斯克·马西亚 10
梦幻海景别墅丨Achim Marwitz,Terraza Balear
客服
消息
收藏
下载
最近