查看完整案例


收藏

下载
© Tim Crocker
提姆·克罗克
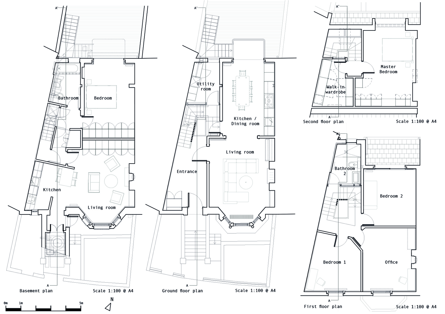
架构师提供的文本描述。在20世纪交替时期,一座令人印象深刻的大楼梯让这座房子的流通变得宽敞、明亮、通风,但它的主导地位损害了整个布局。挑战是更换这条曾经受到青睐的楼梯,提高以前的宽敞质量,同时容纳5间卧室,配有两个独立的厨房和生活/餐厅。
Text description provided by the architects. An impressive large staircase in a turn of the 20th century house made the circulation generous, light and airy, but its dominance compromised the entire layout. The challenge was to replace this once favoured staircase, enhancing this previous spacious quality whilst accommodating 5 bedrooms with two separate kitchens and livings /dinings.
© Tim Crocker
提姆·克罗克
穿孔木踏板和冒口,新楼梯的栏杆通过光和空气,但在一个更紧凑的整体结构和本质的Airines从原来的楼梯仍然可以体验。同时,它在一楼提供了更均匀的卧室。
The perforated timber treads and risers, and balustrade of the new staircase let through light and air, but in a more compact overall configuration and an essence of the airines from the original staircase can still be experienced. At the same time it provides more evenly divided bedrooms on the first floor.
© Tim Crocker
提姆·克罗克
客户和建筑师之间刻有电子邮件对话的痕迹出现在楼梯链和扶手上,也出现在屏幕内壁上,这表明当代的时间因素也支持为未来故事服务的楼梯结构。
Traces of engraved e-mail dialogues between the client and architect appear on the stair stringer and handrail, and also on the internal screen wall suggesting that the contemporary time factor also supports the stair structure that serve future stories. Following the texts by eye, voices echo in one's mind as if the sounds resonate in the air passing through the perforated structure.
© Tim Crocker
提姆·克罗克
© Tim Crocker
提姆·克罗克
我们保留了一个楼梯落地窗,与其他原始窗户和新胶合板框架一起为两个新浴室和公共事业室创造了一个屏风墙。光线继续通过这面屏风墙和新的外部窗户流入楼梯井。
We retained a stair landing sash window, and together with other original windows and new plywood framework created a screen wall for two new bathrooms and utility room. Light continues to flow into the stairwell via this screen wall and new external windows.
© Tim Crocker
提姆·克罗克
Section AA
AA节
© Tim Crocker
提姆·克罗克
通过重新组合这些旧的物体,我们的目标是保持过去时的新形式,赋予它新的生命,而不仅仅是保存旧的。
By recomposing these old objects, we aim to keep the past tense in a new form, giving it new life rather than just conserving old.
© Tim Crocker
提姆·克罗克
一个大的,悬臂式阳台锚定厨房和餐厅到后面的花园,但登记的只是一个普通的钢栏杆细节。新的干预措施提高了砖石时代的重力,并重新平衡了自己的重量。
A large, cantilevered balcony anchors the kitchen and dining to the back garden but registers as no more than an ordinary steel railing detail. The new intervention lifts the age of the masonry against gravity and rebalances itself in its own weight.
© Tim Crocker
提姆·克罗克
© Tim Crocker
提姆·克罗克
揭示物质状态和刻有文字的概念是希望与事件和地点的联系超过一个终止日期。
Revealing the notion of the material states and the engraved texts are the hope for association with the event and place beyond an expiry date.
© Tim Crocker
提姆·克罗克
Architects Tsuruta Architects
Location London, United Kingdom
Area 214.0 m2
Project Year 2016
Photographs Tim Crocker
Category Refurbishment
客服
消息
收藏
下载
最近


























































