查看完整案例


收藏

下载
架构师提供的文本描述。坎伯兰圣汤屋位于纽约布鲁克林格林堡附近的一个公园街区。屋主买下这座大楼时,房子已经破败不堪;后墙正在倒塌,水已经进入建筑物好几年了。
Text description provided by the architects. The Cumberland St Townhouse is located on a park block in the neighborhood of Fort Greene in Brooklyn, NY. The house was in a dilapidated state when the owners purchased the building; the rear wall was falling down and water had been entering the building for several years.
© Dustin Aksland
达斯汀·阿克斯兰
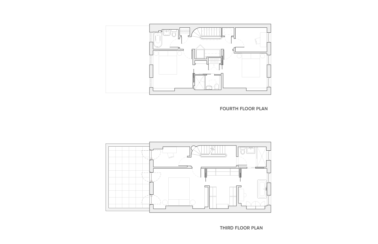
Ground and Second Floor plans
地下及二楼图则
© Dustin Aksland
达斯汀·阿克斯兰
这所房子被彻底改造了,在房子的后面有一堵新的后墙和一个两层楼高的建筑。附加是开放的客厅上面,并连接通过内部钢和玻璃窗,模仿两层外窗。花园的门完全打开,在厨房/餐饮层和花园之间建立了一个无缝的连接。葡萄藤种植在餐厅的2层聚会墙壁上的凹式种植园里-这个房间被设计成一个室内-室外空间,花园与室内空间结合在一起。现在藤蔓覆盖了两层的聚会墙,并为连通的室内空间增添了有机的品质。增加的顶部用作主卧室的私人阳台。
The house was completely transformed with a new rear wall and a two-story addition at the back of the house. The addition is open to the living room above and is connected through interior steel and glass windows that mimic the two-story exterior windows. The doors at the garden open completely to create a seamless connection between the kitchen / dining level and the garden. Vines were planted in recessed planters along the 2 story party walls in the dining room--the room was designed to be an indoor-outdoor space where the garden melds with the interior spaces. The vines now cover the double-story party walls and add an organic quality to the connected interior spaces. The top of the addition serves as a private balcony for the master bedroom
© Dustin Aksland
达斯汀·阿克斯兰
Architects Elizabeth Roberts Architecture and Design
Location Brooklyn, United States
Lead Architects Elizabeth Roberts, Josh Lekwa
Area 2750.0 ft2
Project Year 2014
Photographs Dustin Aksland
Category Refurbishment
Manufacturers Loading...
客服
消息
收藏
下载
最近


























