查看完整案例


收藏

下载
丹尼斯帕宾街北部位于潘田的“四化工区”,由破败的仓库组成,而南方则主要由20世纪初的住宅建筑组成。他们的立面有着独特而具有历史意义的邻里建筑文字,使用的灰色砖块被陶瓷、飞檐和天窗的装饰所强化。该项目位于这两个工业区和住宅区的交界处,周围是街道和花园边的工业建筑,以及一栋工人阶级住宅和最近在山墙上的一处社会住宅。
为了确保很好地融入这一独特的背景,建筑项目自愿强调了以下几个方面的强大重要性:
-木包层,在建筑物的身体上,是当代和环境的反应,砖块覆盖在周围的建筑物。
-以更现代的版本,用黑色木车床随机放置在外墙上。
-红色,沿街道侧的凹槽和花园侧的百叶窗使用。
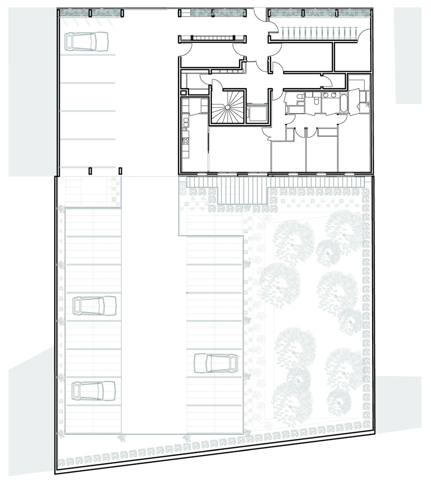
与周围有沉重的基础的建筑相反,建筑物漂浮在一楼的空隙上,那里是大厅、公共场所和停车场。这个在门廊下的停车场延伸到院子的一侧,上面覆盖着一个长廊。它被木制的包层覆盖,如外墙,成为建筑的一部分。
这个庭院的花园部分是由一条雨水保持沟和半水生植物组成的,允许环境符合2升/公顷的要求。
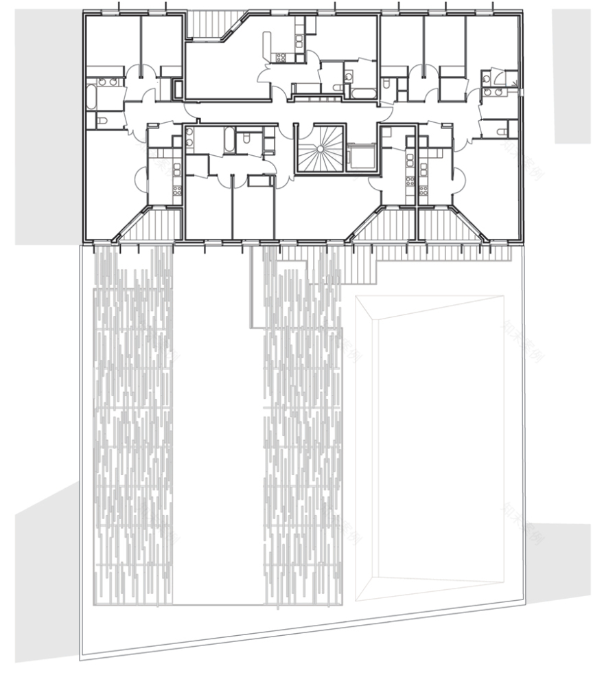
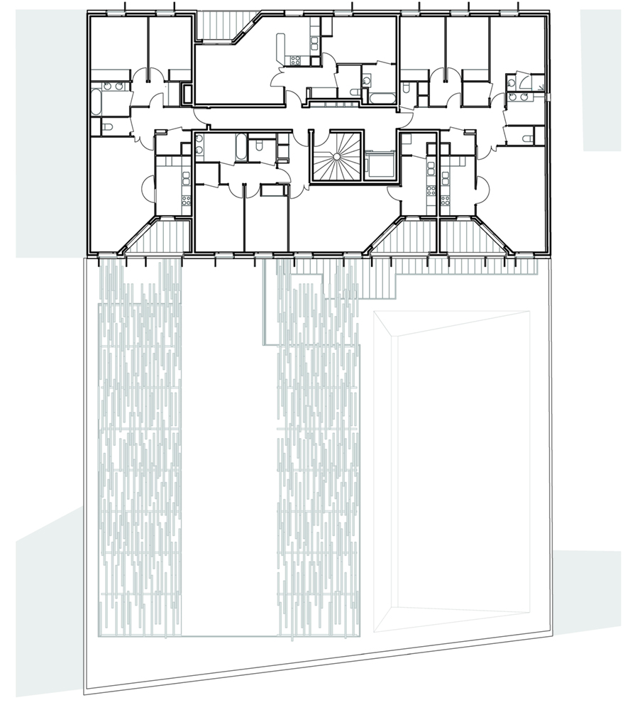
朝南的大型公寓配备了生物气候日志。每个起居室都开放到这些半室外的空间和一个海湾,直接给花园。生物气候日志是关闭双低发射率玻璃,可以慷慨开放在夏季。它们的好处是在冬天和夏天一样被用作自然温度调节器。作为温室运行,他们允许控制低成本的热舒适性的单位,并大大减少取暖费用。在花园里安装百叶窗和落叶树也参与了夏季这些树木的温度控制。
Firm Atelier Benjamin Fleury
Type Residential › Apartment Multi Unit Housing
STATUS Built
YEAR 2017
SIZE 10,000 sqft - 25,000 sqft
BUDGET $1M - 5M
keywords:architecture, architecture news, interiors, interior design, portfolio, spec, brands, marketplace, products 20 Housing in Pantin
关键词:建筑,建筑新闻,室内设计,组合,规格,品牌,市场,产品20在潘田
客服
消息
收藏
下载
最近
























