查看完整案例


收藏

下载
卡萨·梅兹奎特
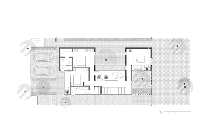
当大自然在一个地方扮演主角的时候,保护的设计方法是关键,有六棵梅兹科特树和一棵仙人掌树(NOPAL)的巨大姿态。房子的概念标准是通过一系列的庭院来保护这些自然元素,因为它们周围的房屋交织在一起,产生了强烈的内部外部关系,这些庭院作为视觉主角,对现有的植被形成了看法。
一个中央庭院被创建,以分配仙人掌树(NOPAL)作为一个重要的中心核心的房子,所有的空间都有一个视觉关系。通过一个有盖的户外空间,诺帕尔被框架以及后面的露台和侧面,大梅斯科特树。
这些卷被组织成两个群体,与生活、楼梯和走廊相互连接,将节目从一卷到另一卷交织在一起。从上面的艺术家工作室中可以看出,客厅是厨房-就餐区和户外娱乐露台之间的连接,而在较低的层次上,客厅则是连接厨房-就餐区和户外娱乐露台的纽带。这两卷书有庭院和凹体,它们分配了树木,发挥了不同的深度,并通过季节和阳光路径的变化,以不同的方式看到了这两卷书。不同的材料用于房屋,木板混凝土,木栏杆枕木和石灰石大理石的内部创造了不同的色调和深度与像素的传统粘土瓷砖在上面的音量,使外观可以发挥阳光。
Firm AS/D ASOCIACION DE DISENO
Type Residential › Private House
STATUS Built
YEAR 2016
SIZE 1000 sqft - 3000 sqft
BUDGET $50K - 100K
keywords:architecture, architecture news, interiors, interior design, portfolio, spec, brands, marketplace, products CASA MEZQUITES
关键词:建筑,建筑新闻,内饰,室内设计,组合,规格,品牌,市场,产品CASA Mezquite
客服
消息
收藏
下载
最近
















