查看完整案例


收藏

下载
© Emma Cross
埃玛·克罗斯
架构师提供的文本描述。这座60年代仓库的改造背后的精神是尽可能多地保留和重用现有建筑,同时仍将其改造成一个舒适、节能的家庭住宅。
Text description provided by the architects. The ethos behind the conversion of this 1960's warehouse was to retain and re-use as much of the existing building as possible while still transforming it into a comfortable and energy efficient family home.
© Emma Cross
埃玛·克罗斯
保留和重复使用材料的理念在整个项目中得到了应用。除了保留建筑围护结构外,还重复使用了许多原始元素。
The philosophy of retaining and re-using materials was applied throughout the project. In addition to the building envelope being retained, many original elements were re-used.
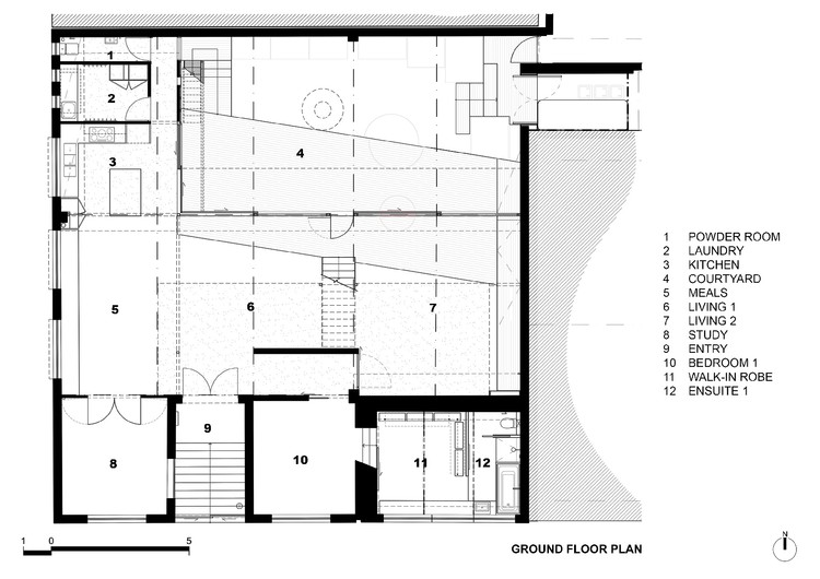
Ground Floor Plan
现有的仓库楼板也被保留下来,部分原因是场地进出受到限制,但也因为其固有的体现能量。
The existing warehouse floor slab was also kept, partially due to restricted site access, but also for its inherent embodied energy.
© Emma Cross
埃玛·克罗斯
北面庭院的增加在冬季提供了大量的光和热量,在其他不良的方向的建筑。交叉通风是通过新的高水平百叶窗。阁楼房间漂浮在原来的体积和仓库的结构内。一个新的凸起的甲板把起居室和院子连接起来。
The addition of a north-facing courtyard provides a generous amount of light and heat in winter in an otherwise poorly oriented building. Cross ventilation is achieved through new high level louvres. Mezzanine rooms float within the original volume and structure of the warehouse. A new raised deck links the living areas with the courtyard.
通过把花园和灯光插入现有的仓库,我们创造了一个温暖和宜居的家庭家园。
By inserting a garden and light into an existing warehouse we have created an warm and liveable family home.
© Emma Cross
埃玛·克罗斯
Architects Zen Architects
Location Richmond, Australia
Category Refurbishment
Architect in Charge Ric Zen, Penny Guild
Area 240.0 m2
Project Year 2013
Photographs Emma Cross
Manufacturers Loading...
客服
消息
收藏
下载
最近






















