查看完整案例


收藏

下载
这座房子是由建筑公司JunIgarashi建筑公司在2016年设计的,而项目本身则是由JunIgarashi亲自负责的。公司占地面积137平方米,位于日本港口城市Tomakomai。
有了一个非常特别的设计,并考虑到设计团队的某些方面和想法,这个独特的空间,具有非常显着的原始魅力已经被创造出来。
它清澈的木质外壳,有白色框架的门窗,以及高高的天花板,使它在社区的其他房屋中脱颖而出。
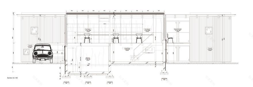
在它的内部,创造了几个不同的层次来识别每一个空间,每个层次使用一个轻薄的木头与天花板和漂亮的横梁从一边到另一边。
家具以及墙壁和楼梯都是白色的,这建立了一个非常柔软的组合,创造了一种和平的氛围。一些房间被白色窗帘隔开,窗帘是柔软的、薄的、有蒸气的织物,可以让一些光线穿过它们。
我们推荐这些项目-一座独特的木屋,位于日本镰仓,泰国现代住宅,由Julsamano Bhongsatiern设计
夜晚的外表看起来非常可爱,就像一个玩偶的房子。
木制外观的画廊视图
木制外观的画廊视图
木制外观的画廊视图
木制外观的画廊视图
木制外观的画廊视图
木制外观的画廊视图
木制外观的画廊视图
画廊主入口白色窗框门窗和木墙
画廊主入口白色窗框门窗和木墙
画廊主入口白色窗框门窗和木墙
画廊内有宽敞的室内景观,有木制地板,天花板有墙壁和白色家具。
画廊内有宽敞的室内景观,有木制地板,天花板有墙壁和白色家具。
画廊内有宽敞的室内景观,有木制地板,天花板有墙壁和白色家具。
画廊内有宽敞的室内景观,有木制地板,天花板有墙壁和白色家具。
画廊内有宽敞的室内景观,有木制地板,天花板有墙壁和白色家具。
画廊内有宽敞的室内景观,有木制地板,天花板有墙壁和白色家具。
画廊内有宽敞的室内景观,有木制地板,天花板有墙壁和白色家具。
画廊内有宽敞的室内景观,有木制地板,天花板有墙壁和白色家具。
画廊内有宽敞的室内景观,有木制地板,天花板有墙壁和白色家具。
画廊内有宽敞的室内景观,有木制地板,天花板有墙壁和白色家具。
画廊内有宽敞的室内景观,有木制地板,天花板有墙壁和白色家具。
画廊内有宽敞的室内景观,有木制地板,天花板有墙壁和白色家具。
画廊内有宽敞的室内景观,有木制地板,天花板有墙壁和白色家具。
画廊内有宽敞的室内景观,有木制地板,天花板有墙壁和白色家具。
画廊内有宽敞的室内景观,有木制地板,天花板有墙壁和白色家具。
画廊的外观夜景
画廊中的视图
画廊中的视图
画廊中的视图
画廊中的视图
keywords:Bookshelf Contemporary Interior Design Decorative Accessory Dining Room Exposed Ceiling Beams Glass Walls Hall and Entrance Kitchen Landscaping Lighting Living Room Staircase Wood Floors Wood Walls
关键词:书架,现代室内设计,装饰附件,餐厅,暴露天花板,梁,玻璃墙,大厅和入口厨房,景观美化,客厅,楼梯,木地板,木墙
客服
消息
收藏
下载
最近
































