查看完整案例


收藏

下载
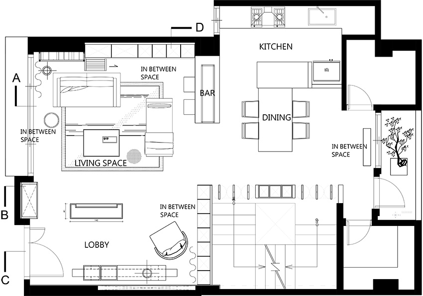
屋主因为朋友多,常会有一大群朋友造访聚会,所以空间及家具的弹性使用性非常重要。我们尝试打破既有空间感、材料、饰品及生活,放大中介空间让生活形式有更多层次及可能性,增加空间弹性,并让身体的及自然环境的 (阳光与空气) 所有感觉流畅的在空间中流动。材料运用生铁板、橡木及回收木料,呈现原始却又温暖的空间氛围,重新定义家的质感。乍看之下充满实验性的空间却是经过无数次与工班讨论及试做的结晶。
客厅主墙及玄关端景墙都以黑铁板组合的书柜墙 (可随意变换层板调整造型) 作为主要造型,呈现比一般木作书柜更利落的质感。同时利用了许多回收木,订做一些家具,这些家具也同时具备中介性,是茶几但同时朋友多时可以是座凳。依循着中介及多样性的设计主轴,我们让所有订做家具都是可拆开可移动的,包括沙发可拆成三张单椅,大茶几可随意移动,让生活及居家布置可以随着心情及活动更换。客厅窗边角落因为有一支较大的柱子,运用手劈柴软化柱子的生硬感,实木的手劈柴除了会散发香味,还会固定空间中的湿气,窗边的阳光打在木头上为室内带来多一点温润的质感。
客服
消息
收藏
下载
最近














