查看完整案例


收藏

下载
架构师提供的文本描述。在比利时的佛兰芒阿登是著名的鹅卵石,国际自行车巡回赛佛兰德斯和它惊人的风景。正是在这种环境下,我们被委托设计一个漂亮的建筑住宅。
Text description provided by the architects. The Flemish Ardennes in Belgium is renowned for cobblestones, the international cycling race Tour of Flanders and its astonishing scenery. It is in this setting, that we were commissioned to design a sleek architectural home.
© Yannick Milpas
扬尼克·米帕斯
客户心中有一个明确的目标:以纯正的线条和开放的容量将令人惊异的景致带入屋内。他们要求建造一座非常现代化的建筑,里面有许多白色的表面和黑色的细节。
The clients had one clear aim in mind: to bring the astonishing views inside the house with pure lines and open volumes. They requested a very modern construction with lots of white surfaces and black details.
2横向放置的积木和大面积的玻璃区域是该计划的起点,目的是捕捉最有趣的风景。
2 crosswise positioned blocks and large glass areas were the starting point of the plans, with the aim to catch the most interesting views.
© Yannick Milpas
扬尼克·米帕斯
第一层的悬垂量在入口处形成了一个车库,在南侧形成了一个露台。悬垂的体积也表现为一个巨大的防晒霜。
The overhanging volume on the first floor creates a carport at the entrance and a terrace at the south side. The overhanging volume is also performing as a large sunscreens.
© Yannick Milpas
扬尼克·米帕斯
较低的空间几乎完全是用玻璃建造的,在街对面的国家公园提供了很好的风景,在南面的有盖的露台上和后面的花园上都有很好的风景。顶部是完全封闭的面向街道和完全向北的玻璃,与河流和城市的看法。
The lower volume is almost entirely built in glass, offering a great view on the national park across the street, a nice view on the covered terrace on the south and on the garden in the back. The top volume is fully closed facing the street and fully glazed facing north, with views towards the river and city.
© Yannick Milpas
扬尼克·米帕斯
建筑物的墙壁被隔离和完成白色灰泥,结合灰色抛光混凝土和黑色窗框。‘白色与黑色口音’的主题继续在内部与极度关注细节。
The walls of the building are covered in isolated and finished with white plaster, in combination with grey polished concrete and black window frames. The ‘white with black accents’ theme continues in the interior with extreme attention to detail.
© Yannick Milpas
扬尼克·米帕斯
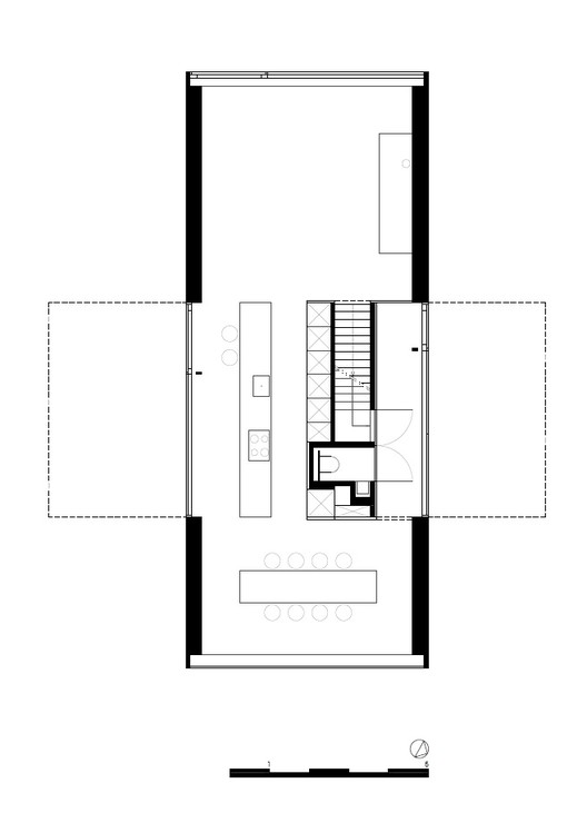
底层是一个开放的空间,从起居室流经6米长的优雅厨房进入餐厅。所有的实用元素都包含在与厨房岛平行的定制块中。这个街区可容纳入口、楼梯、厕所和许多橱柜。
The ground floor is an open space, flowing from living area into dining thru the 6 metre long elegant kitchen. All practical elements have been incorporated in the tailored block parallel to the kitchen isle. This block accommodates the entrance, staircases, toilet and many cupboards.
© Yannick Milpas
扬尼克·米帕斯
然而,这是一项极具挑战性的工程,主要是因为地势的梯度,由街道层面的1.6米至后花园的3米不等。
Yet it was a challenging project mainly because of the gradient of the plot, ranging from 1.6 metres at the street level to 3 metres in the back garden.
© Yannick Milpas
扬尼克·米帕斯
整个建筑有一个混凝土地下室,在佛兰芒地区的典型土壤中是必要的。
The entire building has a concrete basement, a necessity in the typical soil of the Flemish Ardennes.
© Yannick Milpas
扬尼克·米帕斯
这座房子是一座低能耗建筑,具有地板采暖、太阳能安装、高效玻璃、高端通风系统和热调理功能,但最重要的是,它能最大限度地利用现场和绝佳的景观。
This house is a low-energy building, with its floor heating, solar installation, highly efficient glass, high-end ventilation system with heat recuperation, but most of all, it makes the most of the site and the superb views.
Architects Tom Mahieu Architect
Location Oudenaarde, Belgium
Architect in Charge Tom Mahieu
Area 158.0 m2
Project Year 2016
Photographs Yannick Milpas
Category Houses
Manufacturers Loading...
客服
消息
收藏
下载
最近































