查看完整案例


收藏

下载
© Marc Goodwin
c.马克·古德温
架构师提供的文本描述。我们的设计过程是受客户希望拥有“冬季景观中的夏季小屋”的启发。
Text description provided by the architects. Our design process was inspired by the client’s desire to have “a summer cabin in a winter landscape”.
该遗址位于Kvitfjell滑雪场内最高可建的地块之一。它向东南方向连续观察,那里的地形急剧下降。植被由桦树和松树组成,位于公路沿线,向东南方向。该地块的中心部分,以前已被清除的植被,也是它最平坦的部分。现有的树木创造了一种过滤器的道路和冬季度假胜地,更远的山。
The site is located at one of the highest buildable plot within the Kvitfjell Ski Resort. It has uninterrupted views towards southeast, where the topography drops dramatically. The vegetation consists of birch and pine trees, located along the road and towards southeast. The central part of the plot, which had been previously cleared of vegetation, was also its flattest part. The existing trees created a sort of a filter towards the road and towards the winter resort, further down the mountain.
© Marc Goodwin
c.马克·古德温
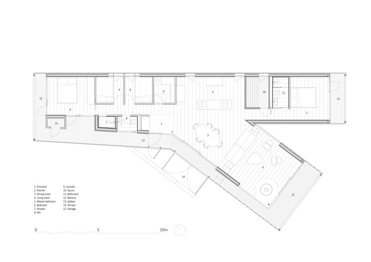
Main Cabin Floor Plan
主舱楼平面图
© Sam Hughes
萨姆·休斯
通过将两卷书放置在邻近的范围附近,形成了一种庭院。这样,在复活节和夏季,户外空间可以从邻居的隐私中受益,同时仍然受益于西/晚的阳光。
By placing two volumes close to the neighbouring limits, a kind of a courtyard was created. This way, the outdoor spaces could benefit from privacy from the neighbours, while still benefiting from the west/evening sun, during Easter and summer.
© Marc Goodwin
c.马克·古德温
主木屋和附件建在高跷上,从地面升起,以便以“最轻”的方式接触地面。
The main cabin and the annex were built on stilts, raised from the ground, in order to touch the ground in the "lightest" manner possible.
© Sam Hughes
萨姆·休斯
为了继续建立在山上的夏季小屋的想法,卷被包裹在薄薄的垂直百叶窗中。鉴于这些百叶窗后面的大玻璃平面,画廊所在的地方,外墙获得了一个“面纱般的”质量的庭院。
To continue to build on the idea of the summer cabin in the mountain, the volumes were wrapped in thin, vertical louvers. Given the large planes of glass behind these louvers, where the gallery is, the external walls acquired a "veil-like" quality towards the courtyard.
© Sam Hughes
萨姆·休斯
主木屋的设计有Y字形,从公共区域和主卧室两方面,悬臂都可以在山上形成壮观的景色。
The plan of the main cabin has a Y-shape, that cantilevers to frame the remarkable views over the mountains, from both the common areas and the master bedroom.
© Marc Goodwin
c.马克·古德温
Architects Lund Hagem Architects
Location Norway
Architects in Charge Einar Hagem, Nelson Ferreira
Area 120.0 m2
Project Year 2016
Photographs Sam Hughes, Marc Goodwin
Category Houses
Manufacturers Loading...
客服
消息
收藏
下载
最近





























