查看完整案例


收藏

下载
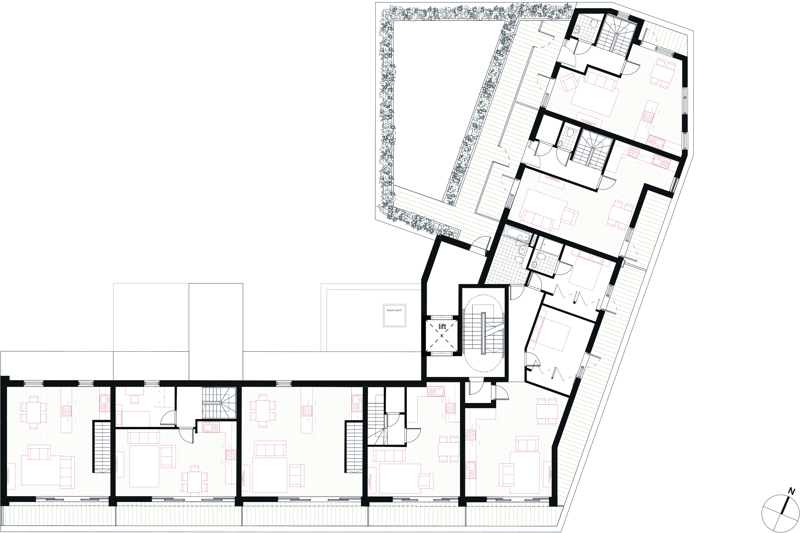
VynYard已经恢复了一个城市的布朗菲尔德的土地,在一个欣欣向荣的艺术街道在摄政运河保护区,与23套公寓和商业空间的混合使用方案。
维纳街曾经是葡萄酒商的贸易中心,现在也是东伦敦创意人的聚集地。维纳街定期举办画廊展览,并每月举办一次街头艺术节。我们的目标是通过增加该地区的工业特性来认识当地丰富的历史背景。实现这一目标的方法是恢复街道,在周边有住宅和工作空间入口,带来
活动和生活。该方案的实心砖基础是由一个更轻和更暗的红色棕色砖,以反映工业仓库的砖块方法。独特的锌锯齿形屋顶、重新照明的玻璃楼梯间和铝制店面结构是增加工业美学的较小元素。这些元素似乎是对一座坚固的建筑的当代的补充,它属于它周围的环境。这些高地反映了沿瓦德逊路的格鲁吉亚阶地和维纳街维纳画廊的当代建筑。
在里面,拱形天花板、暴露的钢梁和砖砌体给公寓带来了原始的工业感觉。所有公寓都是智能家居与平板控制照明,音响系统和地板下加热。除了一个和两个卧室的公寓和三个卧室的双工,该计划包括重新提供的工作空间,以前在网站上有很多改进的街道正面和访问。
Firm Stockwool
Type Residential › Multi Unit Housing
STATUS Built
YEAR 2017
SIZE 5000 sqft - 10,000 sqft
BUDGET $1M - 5M
keywords:architecture, architecture news, interiors, interior design, portfolio, spec, brands, marketplace, products Vyn Yard
关键词:建筑,建筑新闻,室内设计,组合,规格,品牌,市场,产品VynYard
客服
消息
收藏
下载
最近



















