查看完整案例


收藏

下载
设计总监:李简梅
项目地点:河南省开封市
面积:300平方米
完成时间:2017年
开发商:开封中联昌房地产开发有限公司
设计的减法与寿命的增加
生活是一种体验。
有两种人有丰富的经验。另外,这种人有童心和对事物的极大依恋。他们的每一件藏品都代表着一种记忆和一种心情。他们拥有的收藏越多,他们过的生活就越充实,越有成效。另一种则更喜欢减法,随着经验的增加,他们对人变得更加温柔,但对自己却更加严格。多年来,知识、原则和品味都建立了稳定和明确的界限。
正楷橄榄城是专为后者设计的。
在这个项目中,钱训赋予了空间独特的个性,大胆而不华而不实,冷酷典雅,低调自信。这是一个普通的工程,有着非凡的设计。
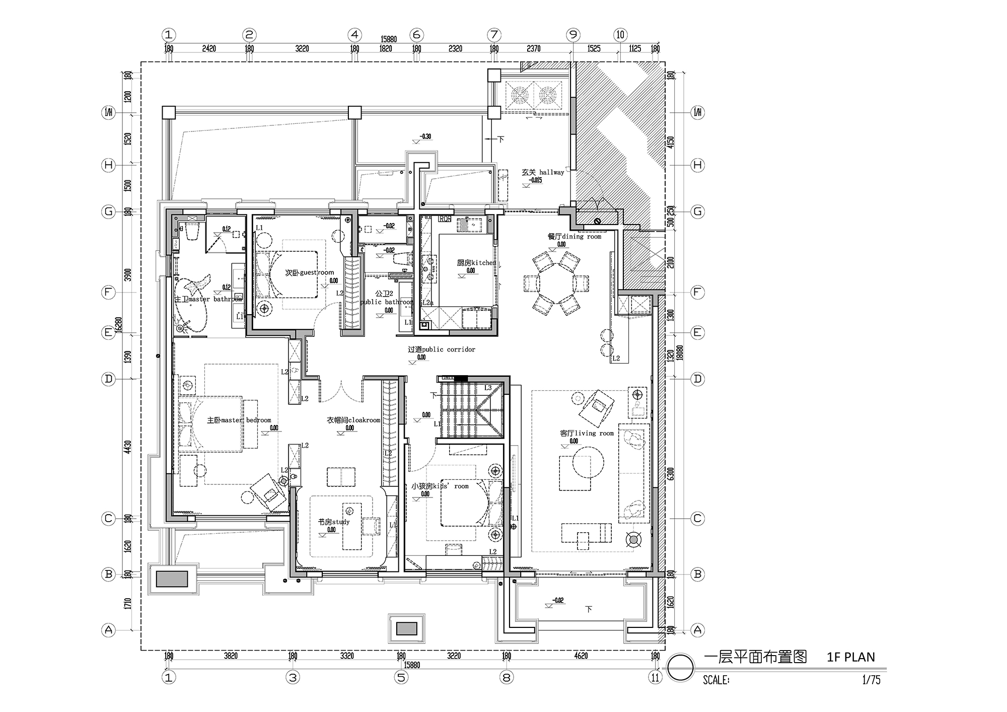
简单的风格,灰色和白色的色调,空间看起来干净整洁。独特的地毯有精致的条纹和个性化的几何图案与柔和的深橙色,创造了优雅的魅力。生动的绿色装饰使空间与寒冷和温暖融为一体。一般来说,整个空间并不缺少温度,也不缺乏优雅。
酒吧柜台设计是一种生活情趣,它模糊了餐厅与客厅之间的界限,使整个空间融为一体。餐厅采用经典的圆桌,以及柔和的漫射光源,黑色木纹与白色垫子的碰撞甚至变得非常温暖和甜蜜。
主卧室的色调遵循起居室简单、柔和、和谐的视觉效果。白色,灰色和深橙色相互混合。加上点缀,它带来了一些神秘的感觉。衣帽间与主卧室相连,但巧妙地与其隔开,有一个地板式的书架,衣帽间有一个书房空间,主人可以在那里享受他们的私人阅读时间。
房间整体感觉舒适庄重,部分艺术细节中和气氛,提高放松感。
公主房的设计要生动得多。马卡龙半透明的装饰奠定了可爱和愉快的感觉的整体基础。一面墙用可爱的壁纸装饰,与挂墙装置相互作用,形成二维和三维的梦幻感;相反的墙纸则采用灰色、白色和橙色的对比色线,以避免过于幼稚的空间。
与起居室相比,地下接待室的装修更加丰富,使这里的娱乐和交流更加轻松。
在界定空间功能时,设计师设计了一个感兴趣的空间,让业主展示自己的艺术素养和品味。这样,虽然它是一个展示空间,它有一股强烈的生命气息。
Firm Shenzhen Qianxun Decorative Art and Design Co., Ltd
Type Commercial › Showroom
STATUS Built
YEAR 2017
SIZE 3000 sqft - 5000 sqft
BUDGET Undisclosed
keywordsarchitecture, architecture news, interiors, interior design, portfolio, spec, brands, marketplace, products House project in Building No. 67 of Zhengkai Olive City
关键词建筑、建筑新闻、室内设计、组合、规格、品牌、市场、产品屋项目在郑凯橄榄城67号楼
客服
消息
收藏
下载
最近
































































