查看完整案例


收藏

下载
© Sergio Araneda
c.Sergio Araneda
架构师提供的文本描述。该遗址位于Rupanco湖的岸边,在一个面向南面的斜坡上,在Olivelo,Tepa和Coigue的森林中。考虑到树种的价值,该项目是在现有树木布局中整合所需空间的基础上开发的。
Text description provided by the architects. The site is laid out along the shore of Lake Rupanco, on a southern facing slope, within a forest of Olivillo, Tepa and Coigue. Given the value of the tree species, the project is developed on the basis of integrating the required spaces within the layout of the existing trees.
Floor Plan
该项目是第二个家,分三卷,分为两组,这两套都是在北太阳照射长度的湖面和森林之间的水平关系中布置的。其中的第一栋房子是通道和公共区域,而另外两间卧室则集中在一间太阳房周围,里面有一棵来自百年前的森林里的一棵树。
The Project, a second home, is structured in three volumes grouped in two sets, both of which are laid out in a horizontal relation between the lake and forest along the length of the northern sun exposure. The first of these houses the access and common areas, while the other two contain the bedrooms grouped around a sunroom that features a tree from the century-old forest.
© Sergio Araneda
c.Sergio Araneda
在该提案中,使用大窗户的定义是将森林理解为第一个受欢迎的空间,在这里,房子的内部流通使人们能够“走出”完全属于景观的走廊,然后返回生活空间。
The use of large windows is defined in the proposal as understanding the forest as a first welcome space, where the internal circulation of the house enables “going out” toward hallways given completely to the landscape which then come back into the living spaces.
© Sergio Araneda
c.Sergio Araneda
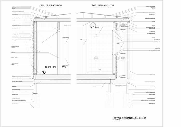
材料由钢桩和基座组成,其上的活结构是在SIP板上建造的,有一个可见的木结构。墙和窗台的尺寸大小取决于面板的大小。尺寸松材用于家具饰面,少绒毛木用于家具覆盖物。
Materiality consists of steel pilings and base over which the living structure is built in SIP panels, with a visible wooden structure. The dimensioning of walls and sills is determined by the size of the panels. Dimensioned pine was used for finishing and olivillo wood for furniture coverings.
© Sergio Araneda
c.Sergio Araneda
在处理雨水时,提出了一个封闭的体积,简单,没有屋檐,产生阴影和潮湿地区。水从铁皮屋顶流出,顺着通风的外墙流下。
In dealing with rain water, a hermetic volume is proposed, simple and without eaves that generate shadows and damp areas. The water runs off the tin roof and down the walls of the ventilated façade.
特别注意到锡板的具体详细设计,其中一个系统不断地将水移向外部:屋顶、外墙端面整理、每个窗台上和下面的水陷井、接头饰面、所有面板接头上的内角修补,以及窗户的内部锡预框架。
Special attention was given to specifically detailed design of the tin sheets, where a system continuously removes water toward the exterior: rooftop, façade-end finishing, upper and lower water traps on each sill, joint finishes, interior corner tinwork on all panel joints, as well as interior tin pre-frames for windows.
© Sergio Araneda
c.Sergio Araneda
Architects SAA arquitectura + territorio
Location Puyehue, Chile
Architect in charge Sergio Araneda
Area 185.0 m2
Project Year 2016
Category Houses
Manufacturers Loading...
客服
消息
收藏
下载
最近






















