查看完整案例


收藏

下载
架构师提供的文本描述。这座小屋是一家人经营的小屋,位于智利中部山脉圣费尔南多附近的安第斯山麓。
Text description provided by the architects. The roost is a family-run cabin lodge located in the Andean foothills near San Fernando, in Chile’s central mountain range.
© Sergio Araneda
c.Sergio Araneda
珠穆河、毛竹林和橡树林的河流和大檐篷构成了一个具有巨大生态和景观价值的自然环境,使其成为发现洞穴鹦鹉等鸟类的重要场所。
The presence of rivers and large canopies of peumo, quillay and oak forest constitute a natural environment with large ecological and landscape value, making this spot an important place for spotting birds such as the Burrowing parrot.
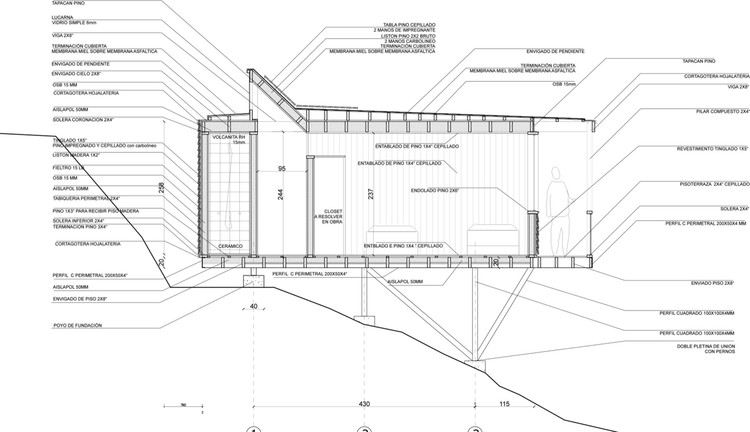
Section Details
章节细节
架构概念将站点位置定义为布局所依据的主要策略。一个故事是沿着陡峭地向河倾斜的一座山的南面展开的。这使人看到山谷,从北到后。
The architectural concept defines the site location as the primary strategy on which the layout is based. One story is laid out along the southern-facing side of a hill that slopes steeply toward the river. This gives off a view toward the valley, with the north to the rear.
© Sergio Araneda
c.Sergio Araneda
卧室向南投影,包括主要的景观,而卫生服务是在北部和山坡,留下一个内部走廊的屋顶,面向北的水平天窗,为所有房间带来自然光。
The bedrooms are projected toward the south and incorporate the primary vistas, while the sanitary services are toward the north and the hillside, leaving an interior hallway which features a horizontal skylight in the roof that faces north, bringing natural light to all the rooms.
© Sergio Araneda
c.Sergio Araneda
Floor Plan
© Sergio Araneda
c.Sergio Araneda
更常见的区域被整合在一个空间内,连接着山谷的坡地和地理范围。
The more common areas are integrated within one space that links the sloped ground and geographical expanse of the valley.
© Sergio Araneda
c.Sergio Araneda
房子的外部有3个与景观相关的空间。南,高架走廊悬挂在河和山谷。面向东方的通道甲板面向安第斯山脉的巨大岩层,甲板/俯瞰对整个环境和开阔的天空开放。
The exterior of the house features 3 landscape-related spaces. The southern, elevated hallway hangs toward the river and mountain valley. The eastern-facing access deck looks toward the large Andean rock formations, with the deck/overlook open to the entire surroundings and open sky.
© Sergio Araneda
c.Sergio Araneda
建筑是由当地劳动力使用基本的、低成本的材料进行的.该结构由金属基座组成,舱室在标准尺寸松木的结构和外部壁板上提升,层合胶合板用于内部单板和装饰。
Construction was undertaken by local labor using basic, low-cost materials. The structure is comprised of a metallic base on which the cabin is raised in standard-dimension pinewood for the structure and exterior siding, with laminated plywood sheeting used for the interior veneer and finishing.
© Sergio Araneda
c.Sergio Araneda
Architects SAA arquitectura + territorio
Location San Fernando, Chile
Category Houses
Area 100.0 m2
Project Year 2016
Photographs Sergio Araneda
Manufacturers Loading...
客服
消息
收藏
下载
最近



















