查看完整案例


收藏

下载
© Louis Prud‘homme
路易斯·普鲁德·霍姆
架构师提供的文本描述。业主们在拉马拜的一片僻静的湖边土地上买了一所小房子。在最初的三十年里,这所房子被用作狩猎小屋,后来它成了慈善修女的避暑之所。城市居民的业主在那里偶尔住了六年,以适应自然环境,并确定他们的需求。因为装修房子很贵,他们很快就决定选择新的建筑。现在的房子仍然是“大姐姐”,见证了这个地方的历史。它将成为客人的地堡。
Text description provided by the architects. The owners purchased a small house on a secluded lakeside lot in La Malbaie. For its first three decades, the house was used as a hunting lodge, then it became the summer home for the Sisters of Charity. The urbanite owners lived there sporadically for six years to acclimate themselves to the natural setting and define their needs. Because it would have been very expensive to renovate the house, they soon decided to opt for new construction instead. The existing house would remain standing as the “big sister” bearing witness to the history of the place. It would become a bunkhouse for guests.
© Louis Prud‘homme
路易斯·普鲁德·霍姆
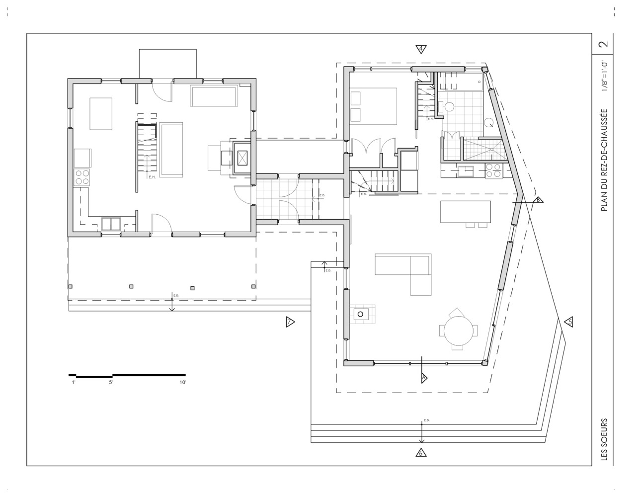
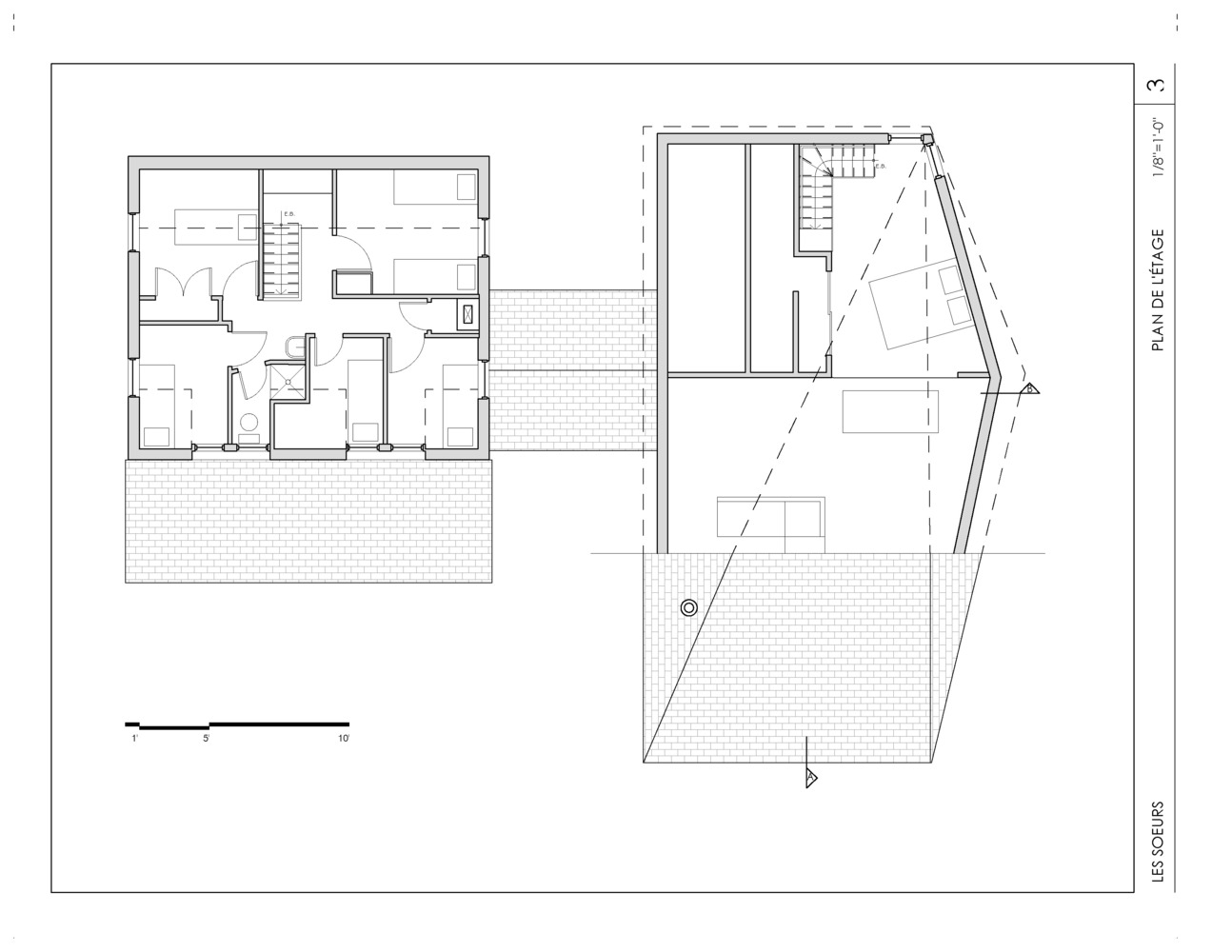
新房子-“小妹妹”-穿着塔马拉克衣服。它有两个卧室,一个浴室,厨房和休息区。为了确保强有力的整合,体积是在内部布局之前确定的。它的大小是适度的,独特的形状屋顶满足业主的要求,同时与大姐和景观。在西侧和南侧,屋顶的悬垂使得保持外墙低与老房子的规模一致成为可能。这些比例也与湖面和远岸的树线相一致。
The new house – the “little sister” – is clad in tamarack. It has two bedrooms, a bathroom, kitchen, and lounge areas. To ensure strong integration, the volume was defined before the interior was laid out. Its size is modest, and the unique shape of the roof meets the owners’ requirements while harmonizing with the big sister and the landscape. On the west and south sides, the roof’s overhang makes it possible to keep the outside walls low, consistent with the scale of the older house. The proportions are also in line with the lake and the tree line on the far shore.
© Louis Prud‘homme
路易斯·普鲁德·霍姆
在东面和北面,屋顶陡峭地耸立在离地面25英尺的山脊板上,呼应着周围的树木和教堂的尖塔,让人想起了遗址的历史。在里面,由屋顶定义的边缘塑造了客厅和主卧室的体积,这是二楼唯一的房间。白色的松树柔和地散发着光芒。这个项目是对将一座新建筑融入自然环境的一种反思。它并不是想主宰整个景观,而是成为它的一部分。这卷,适当地缩放到网站,成为一个理想的环境,在这里展开的生活,无论在室内和外面。
To the east and north, the roof rises steeply to the ridge board, more than 25 feet off the ground, echoing the surrounding trees and a church steeple, evoking the site’s history. Inside, the edges defined by the roof shape the volumes of the living room and the master bedroom, the only room on the second floor. White-stained pine softly diffuses the light. The project is a reflection on the integration of a new building into a natural setting. It is not intended to dominate the landscape, but to be a part of it. The volume, scaled appropriately to the site, becomes an ideal setting for the lives that unfold here, both indoors and out.
© Louis Prud‘homme
路易斯·普鲁德·霍姆
© Louis Prud‘homme
路易斯·普鲁德·霍姆
Architects Anik Péloquin architecte
Location La Malbaie, Canada
Lead Architects Anik Péloquin
Area 1100.0 ft2
Project Year 2017
Photographs Louis Prud‘homme
Category Extension
Manufacturers Loading...
客服
消息
收藏
下载
最近



























