查看完整案例


收藏

下载
© Tatjana Plitt
(Tatjana Plitt)
架构师提供的文本描述。桑伯里住宅是一个低成本,紧凑的家庭住宅,设置在一个安静的,内郊区的环境。该设计的基础是其有趣的屋顶形式,这参考了周围的背景,并被拉伸和拉力,以容纳一个双层住宅,似乎是一个单层住宅。
Text description provided by the architects. The Thornbury House is a low cost, compact family home set within a quiet, inner-suburban context. The design is underpinned by its playful roof form which references its surrounding context and is stretched and pulled to accommodate a double story residence in what appears to be a single story dwelling.
© Tatjana Plitt
(Tatjana Plitt)
该项目在其整体表现和细节方面都牢牢地植根于其上下文的规模、重要性和形式。该建筑参考和重新解释屋顶形式和轻量级覆层的毗邻性质。倾斜屋顶形式可立即识别为一个扭曲版本的邻近屋顶。当相邻的房产使用覆盖条来隐藏熔覆接头时,桑伯里豪宅采用了硬木板来隐藏包层中的接缝,并为外墙增添了纹理。其结果是一所房子,它既是参考的,也是不同的流行街道特征。
The project is firmly embedded in the scale, materiality, and form of its context both in its overall expression and detailing. The building references and reinterprets the roof forms and lightweight cladding of adjoining properties. The pitched roof form is immediately recognizable as a distorted version of neighboring roofs. Where adjacent properties employ cover strips to conceal cladding joints, the Thornbury house utilizes hardwood battens that conceal joints in the cladding and add texture to the façade. The result is a house that is simultaneously referential and divergent from the prevailing street character.
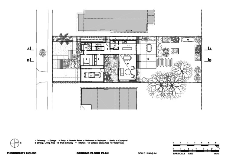
Ground Floor Plan
在内部,该项目借鉴庭院类型,提高了房子的环境性能,并确保充足的光线被传递到所有的居住空间。通常用来容纳高层卧室的倾斜屋顶体积是在起居室内部表示的,提供了空间规模的解放性变化,以及房屋内外表达之间的连续性。
Internally, the project draws on the courtyard typology which enhances the environmental performance of the house and ensures abundant light is delivered to all living spaces. The pitched roof volume which is generally utilized to accommodate upper-level bedrooms is expressed internally over the living area offering a liberating shift in the scale of the space and a continuity between the internal and external expression of the house.
© Tatjana Plitt
(Tatjana Plitt)
Architects BENT Architecture
Location Thornbury, Australia
Porject Team Paul Porjazoski, Alice Davies, Merran Porjazoski
Area 176.0 m2
Project Year 2016
Photographs Tatjana Plitt
Category Houses
Manufacturers Loading...
客服
消息
收藏
下载
最近
















