查看完整案例


收藏

下载
房屋,澳大利亚墨尔本
设计师:BENT Architecture
年份:2017
摄影:Tatjana Plitt
建造商:CDK stone, Dulux, Rusto Concreting Pty. Ltd., Urban Salvage, Ventech
建筑公司:Greg Scott Constructions
结构工程:Keith Long and Associates P/L
景观设计:Ben Scott Landscape Design
城市:Melbourne
国家:Austrália
设计师描述 | Designer description:
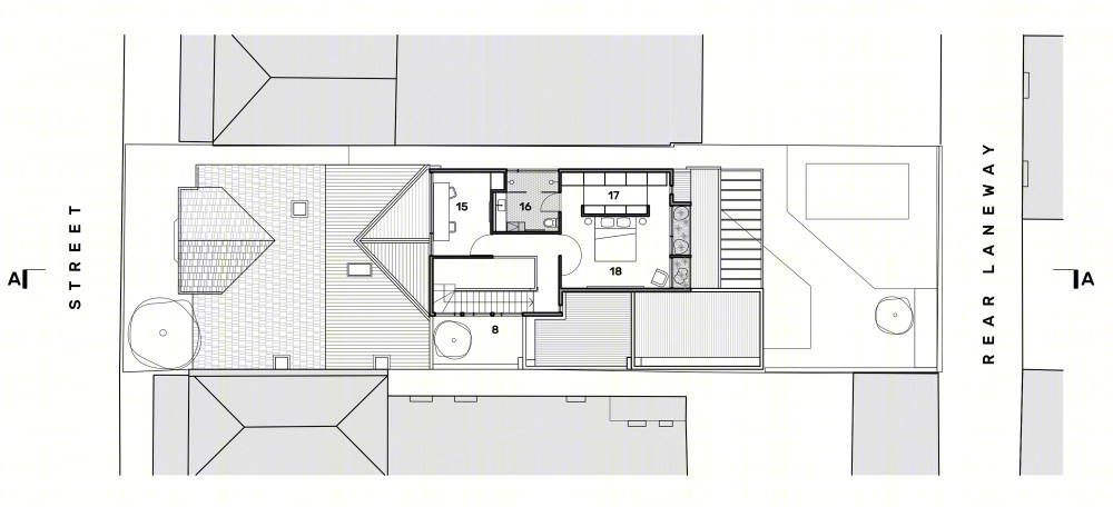
该项目的目的是翻修和扩建澳大利亚Fitzroy North的一座eduardiana双子房屋。扩大并重新配置了居住区,以利用地形北部提供的丰富自然光。
庭院里,新旧房屋的结合确保了日光深深地渗透到房屋中。大型门窗会在室内空间和室外空间之间建立无缝连接。内外建筑图元和材质之间的连续性进一步加强了这种关系。
复盖层向外流动以形成外侧边缘,在天然木材元素和深色涂层之间建立的外部对话在内部材质选项板中得到反映。就餐区上方的天花板提供了剧烈的高度变化,在平面休闲区提供了空间清晰度。
顶层提供了一个单独的主卧室和专用卫生间,以及一个单独的工作室。设计的概念原则在材质中的这些空间以及内部和外部构造元素之间的关系中流动。全高窗和连续的高大建筑沿房间宽度延伸,模糊了室内空间向室外的过渡,吸引人们透过植被眺望开阔的天空。
项目完工照片 | Finished Photos
设计师:BENT Architecture
分类:Casas
语言:葡萄牙语
阅读原文
客服
消息
收藏
下载
最近

























